EasyManua.ls Logo

Engine distributors WSG-1068 - Page 286

Default Icon
331 pages
Print Icon
To Next Page IconTo Next Page
To Next Page IconTo Next Page
To Previous Page IconTo Previous Page
To Previous Page IconTo Previous Page
Loading...
270
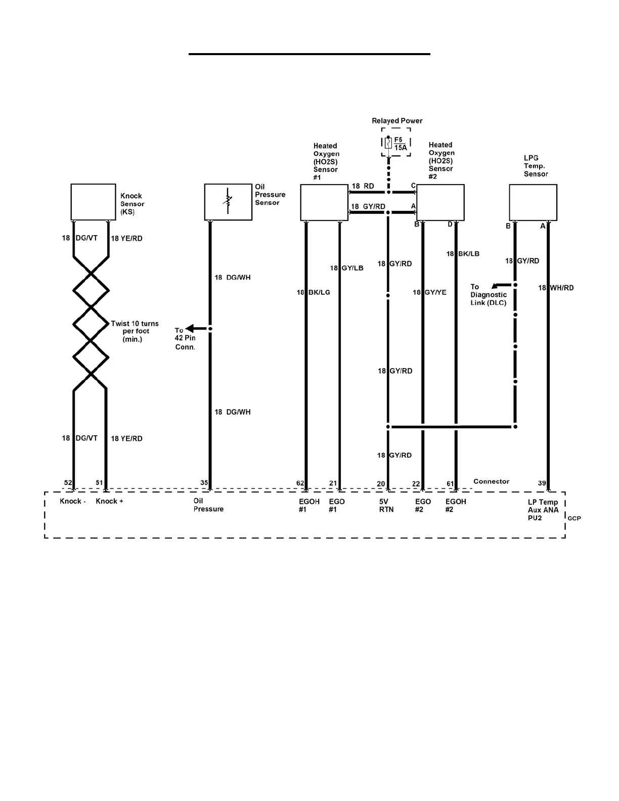
WSG-1068 ENGINE CONTROLS
Engine Controls - Sensors (2 of 2)

Table of Contents

Related product manuals