EasyManua.ls Logo

Faraday MPC-6000 - Page 97

Faraday MPC-6000
108 pages
Print Icon
To Next Page IconTo Next Page
To Next Page IconTo Next Page
To Previous Page IconTo Previous Page
To Previous Page IconTo Previous Page
Loading...
MPC-6000 / MPC-7000 / RND-2 INSTALLATION, OPERATION AND MAINTENANCE MANUAL
91
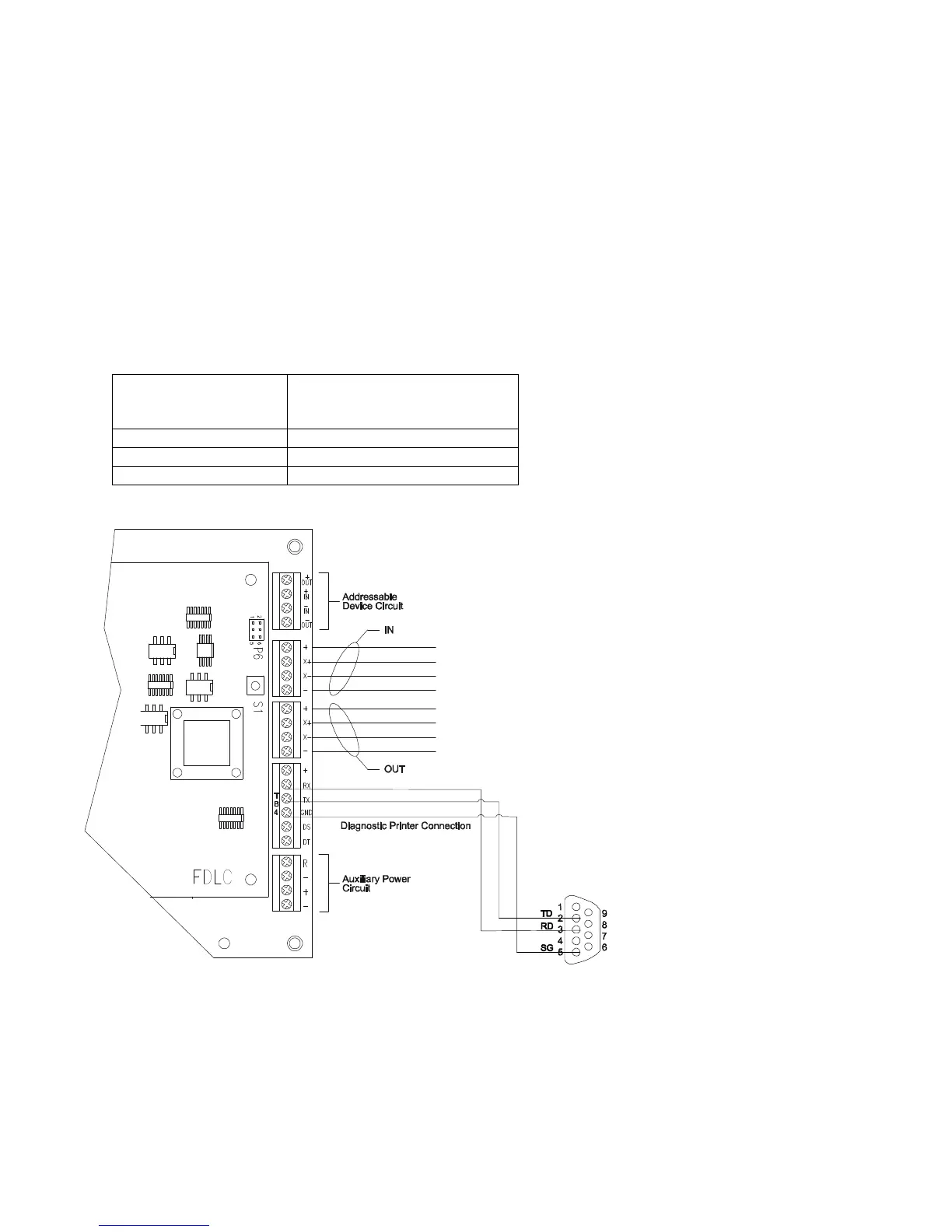
MPC-6000/-7000 panels can also be connected to a computer running terminal emulation
software using an RS232 DB9 serial cable. Terminal emulation software is a communication
program that is designed to emulate various types of text terminals configured to be connected
through a modem or directory over a serial port. HyperTerminal is a terminal emulation
program that is typically bundled with Microsoft
®
Windows operating system. See Figure 2
below for wiring connections. Its communication parameters must be as follows:
Baud Rate: 19200
Data Bit: 8
Parity: None
Stop Bit: 1
Flow Control:None
Following are the pin connections to connect the computer serial connector:
Main Board
Terminal TB4
RS232 DB9
(computer serial connection)
Pin Number
RX 3 RXD
TX 2 TXD
GND 5 SG
Figure 2
RS232 Connection for HyperTerminal

Table of Contents

Other manuals for Faraday MPC-6000

Related product manuals