EasyManua.ls Logo

FCI FS10A - Page 61

FCI FS10A
76 pages
Print Icon
To Next Page IconTo Next Page
To Next Page IconTo Next Page
To Previous Page IconTo Previous Page
To Previous Page IconTo Previous Page
Loading...
FS10 Series
Fluid Components International LLC 57
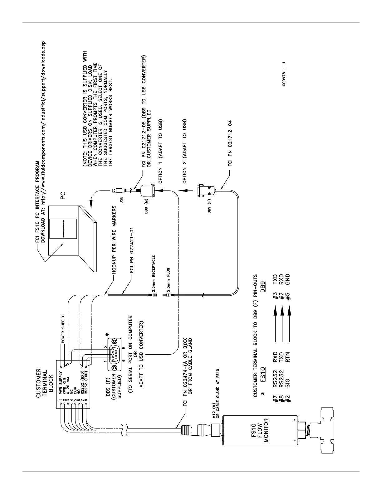
RS232 to Computer Hookup Using Installed Power and Wiring

Table of Contents

Related product manuals