EasyManua.ls Logo

Festo MPS 2000 - Project - Basics of I;O- Communication

Festo MPS 2000
174 pages
Print Icon
To Next Page IconTo Next Page
To Next Page IconTo Next Page
To Previous Page IconTo Previous Page
To Previous Page IconTo Previous Page
Loading...
Programming
© Festo Didactic GmbH & Co. • MPS 109
Please complete the following graphics according the description.
Information
Work out the basics of input/output communication together with the instructor
first.
Instructor: Please explain the basics of I/O-communication.
Planning
Please plan your project step by step first within the team. The time to finish this
project should be around 1,0 hour.
Execution/Documentation
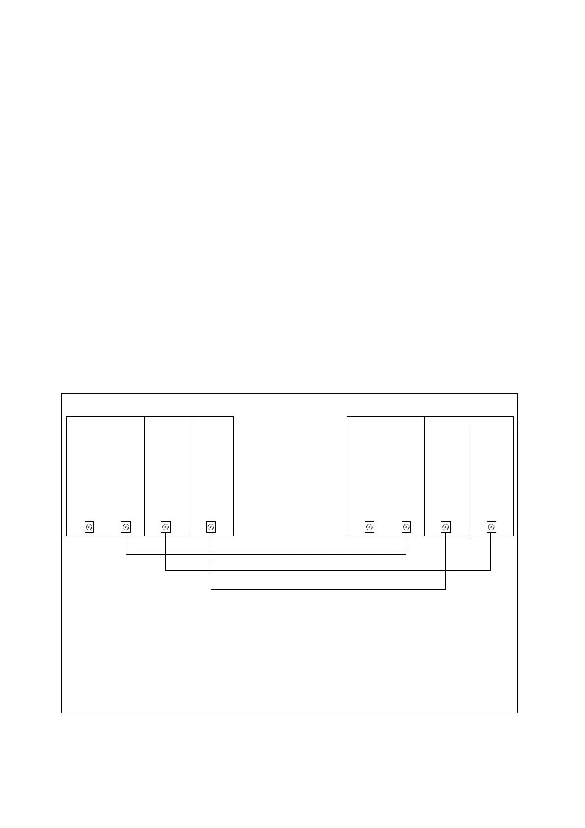
Please define a 1 Bit bidirectional communication network:
24 VDC
0 V Input Output
PNP
24 VDC
Input:
0-12 VDC=0-Sig.
12-30 VDC=1-Sig.
Output:
1-Sig.=24 VDC
PLC
24 VDC
0 V Input
Output
PNP
24 VDC
Input:
0-12 VDC=0-Sig.
12-30 VDC=1-Sig.
Output:
1-Sig.=24 VDC
PLC
2.16 Project
Basics of I/O
communication

Related product manuals