EasyManua.ls Logo

Festo VTSA-FB - Page 134

Festo VTSA-FB
164 pages
Print Icon
To Next Page IconTo Next Page
To Next Page IconTo Next Page
To Previous Page IconTo Previous Page
To Previous Page IconTo Previous Page
Loading...
A. Technical appendix
A−6
Festo P.BE−VTSA−44−EN en 0509NH
Pneumatic components
Medium Compressed air, filtered (< 40 µm), lubricated (oil: VG 32) or
non−lubricated/vacuum, inert gases
Design Spool valves
Operating pressure/pilot pressure
With pilot air branched internally
from connection 1
With externally supplied pilot air
Pressure range
Operating and pilot pressure 1:
5/2−way valve identifier M52−M and all 5/3−way valves:
3...10 bar
all other valves: 2...10 bar
Operating pressure at connection 1:
all 2x3/2−way valves: 2...10 bar
all other valves (also reversible 3x3/2−way valves):
0,9...10 bar
Pilot pressure at connection 14:
5/2−way valve identifier M52−A, B52 and D52: 2...10 bar
all 2x3/2 and reversible 2x3/2−way valves: see diagram
5/2−way valve identifier M52−M and all 5/3−way valves:
3...10 bar
Manual override Non−locking or turning/locking
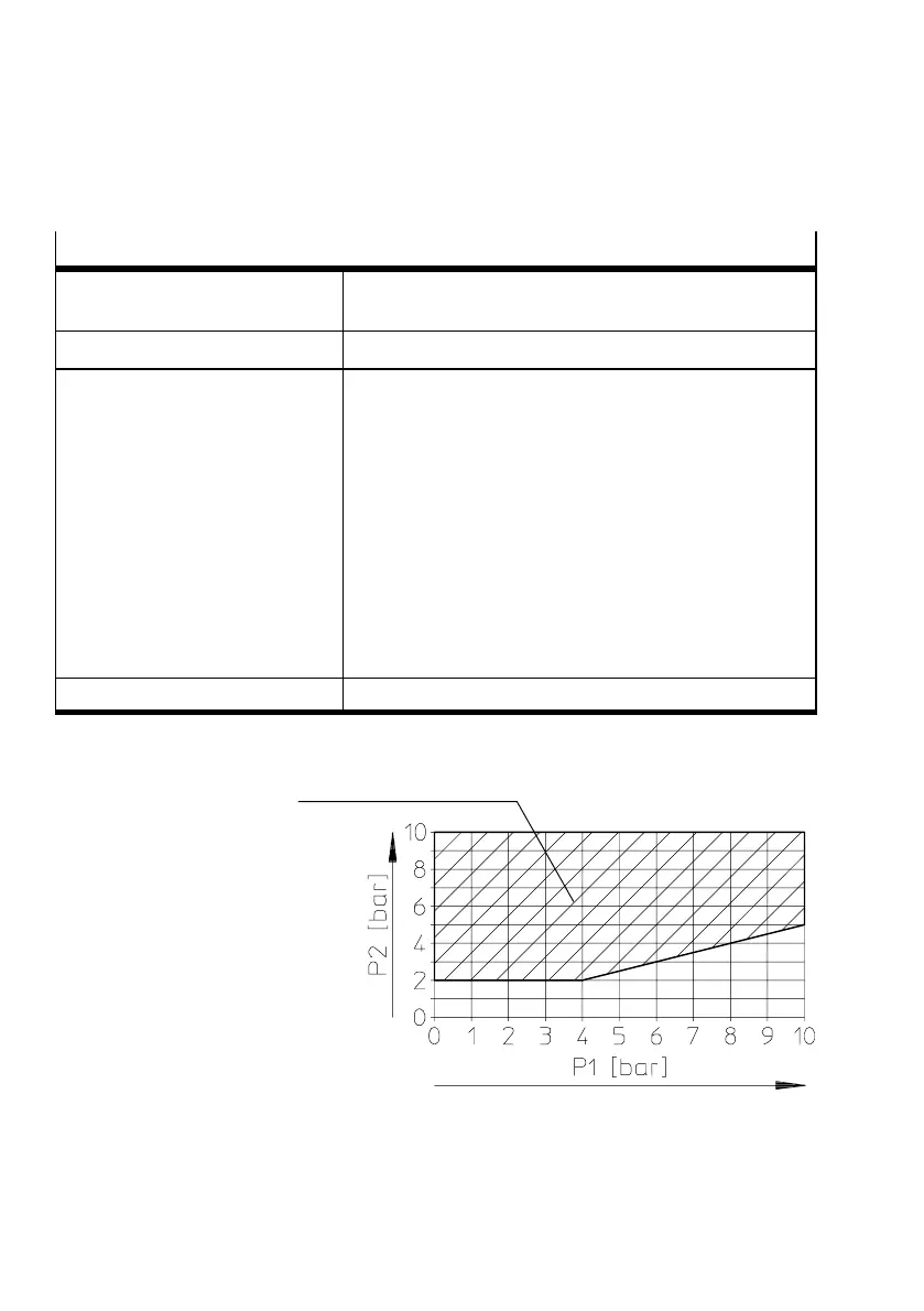
Tab.A/4: Medium and pressure range of the VTSA valve terminal
1 Pilot pressure at
connection 12/14
[bar]
2 Working range for
valves with
external pilot air
3 Operating
pressure at
connection 1
[bar]
1
2
3
Fig.A/1: Diagram: Required pilot pressure related to the operating pressure with
external pilot air and with 2x3/2−way valves

Table of Contents

Related product manuals