EasyManua.ls Logo

Fike 10-071 - Connect Field Wiring

Fike 10-071
76 pages
Print Icon
To Next Page IconTo Next Page
To Next Page IconTo Next Page
To Previous Page IconTo Previous Page
To Previous Page IconTo Previous Page
Loading...
4.0 INSTALLATION
4-12 Cheetah Xi 50 Installation Manual UL S2203
Rev 6, 09/2015 P/N: 06-369 FM
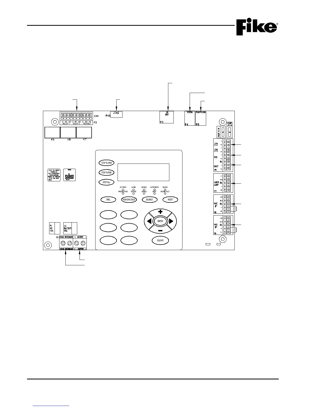
4.13 CONNECT FIELD WIRING
The Cheetah Xi 50 Controller is equipped with terminal block connectors, which facilitate easy connection of
field wiring to the appropriate terminals. See Exhibit 4-12 for terminal block designations and their general
function for reference purposes.
(P6) 24VDC AUXILIARY
POWER #1
(P1) BATTERY CONNECTIONS
(P1) AC POWER CONNECTIONS
(P6) DACT INTERFACE
(P7) SIGNALING LINE
CIRCUIT
(P9) NOTIFICATION
APPLIANCE CIRCUIT #2
(P5) NOT USED
(P4) VESDA HLI INTERFACE
RS232
(P3) PANEL PROGRAMMING
INTERFACE
(P10) FIKE USE
ONLY
(P2) DRY CONTACT RELAYS
10-2620 REV
02-11544 REV A
F1
F2
F3 F6
F5
F4
CHEETAH Xi 50
FIKE CORPORATION
01:39:37A 06/14/2011
AL:000 SU:000 TR:000
(P8) NOTIFICATION
APPLIANCE CIRCUIT #1
(P6) 24VDC AUXILIARY
POWER #2
Exhibit 4-12: Cheetah Xi 50 Board Terminal Connections

Table of Contents

Related product manuals