EasyManua.ls Logo

Fike 10-071 - Addressable Loop Wiring (P7)

Fike 10-071
76 pages
Print Icon
To Next Page IconTo Next Page
To Next Page IconTo Next Page
To Previous Page IconTo Previous Page
To Previous Page IconTo Previous Page
Loading...
4.0 INSTALLATION
UL S2203 Cheetah Xi 50 Installation Manual 4-15
FM P/N: 06-369 Rev 6, 09/2015
4.13.6 ADDRESSABLE LOOP WIRING (P7)
Communication between the control panel and each intelligent, addressable device takes place through the
Signaling Line Circuit (SLC). The SLC is supervised and power-limited. The SLC loop can be wired to meet
the requirements of NFPA Class B, Class A, or Class X circuits (See Exhibit 4-18 and 4-19). For details on
how to wire each addressable device to the SLC loop, refer to the installation instructions supplied with each
device.
Be aware of surrounding environment when installing the addressable loop, looking for possible sources of
electrical interference. All SLC wiring should be segregated from such sources for optimum operation.
Conduit and shielded cable help prevent electrical interferences from being induced. Shielded wire is not
required, but if used install the outgoing drain wire at the panel. Connect it through and insulate at each
junction box and leave unconnected and insulated at the last device.
FM Approved Deluge and Pre-action Sprinkler operation requires that initiating device circuits be
Class A and wired to FM Listed/Approved devices.
I Caution
If using a High voltage device to verify ground isolation of
loop wiring, do not expose devices or modules to the high
voltage. Damage to the devices will occur.
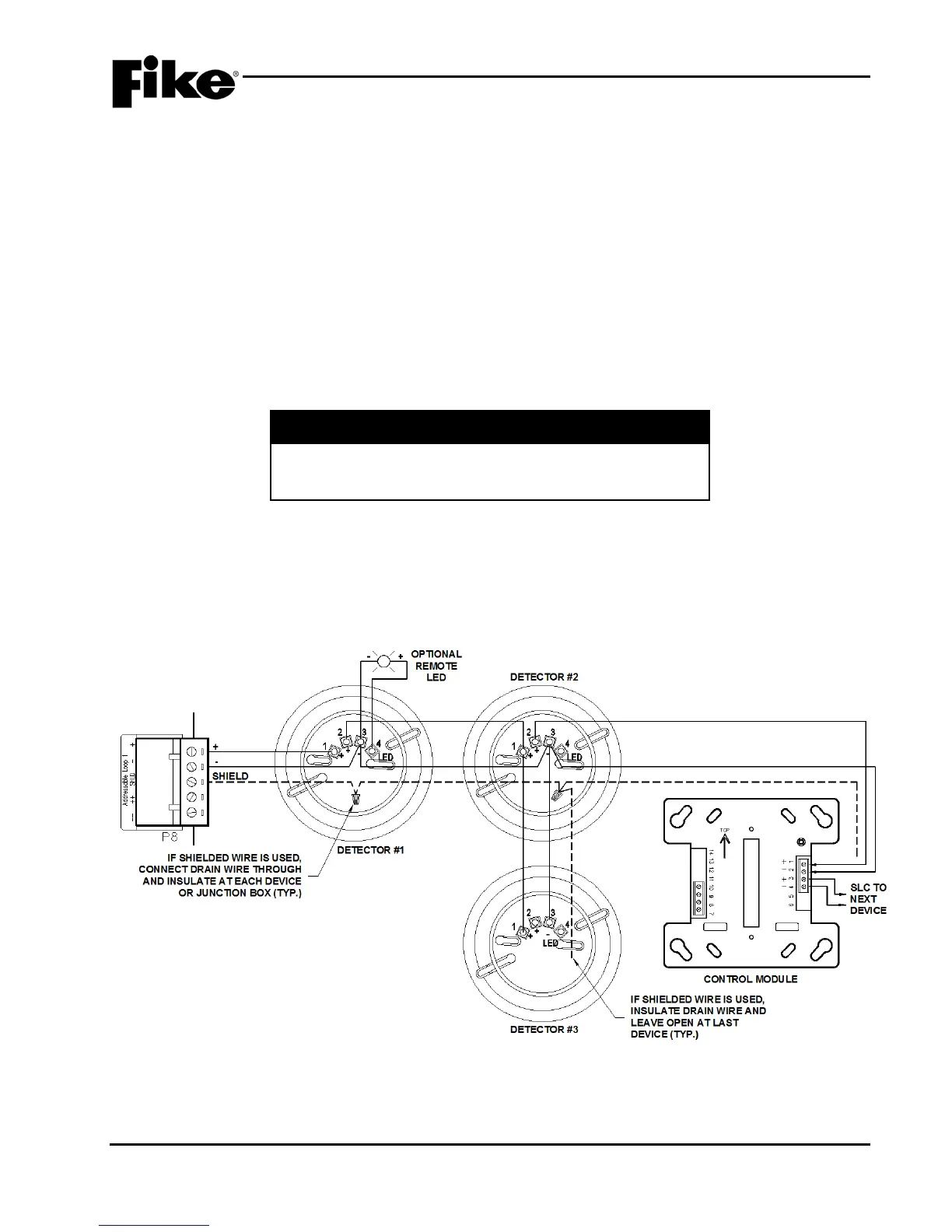
4.13.6.1 CLASS B WIRING
Exhibit 4-18 shows the typical wiring of a supervised and power-limited two-wire SLC that meets NFPA 72,
Class B requirements. This wiring method does not include a redundant pach. In the event of a single wire
break, the communication to devices after the break is lost. This wiring method will support t-tapping
(Detector #3 is T-Tapped off Detector #2).
Exhibit 4-18: Class B SLC Wiring

Table of Contents

Related product manuals