EasyManua.ls Logo

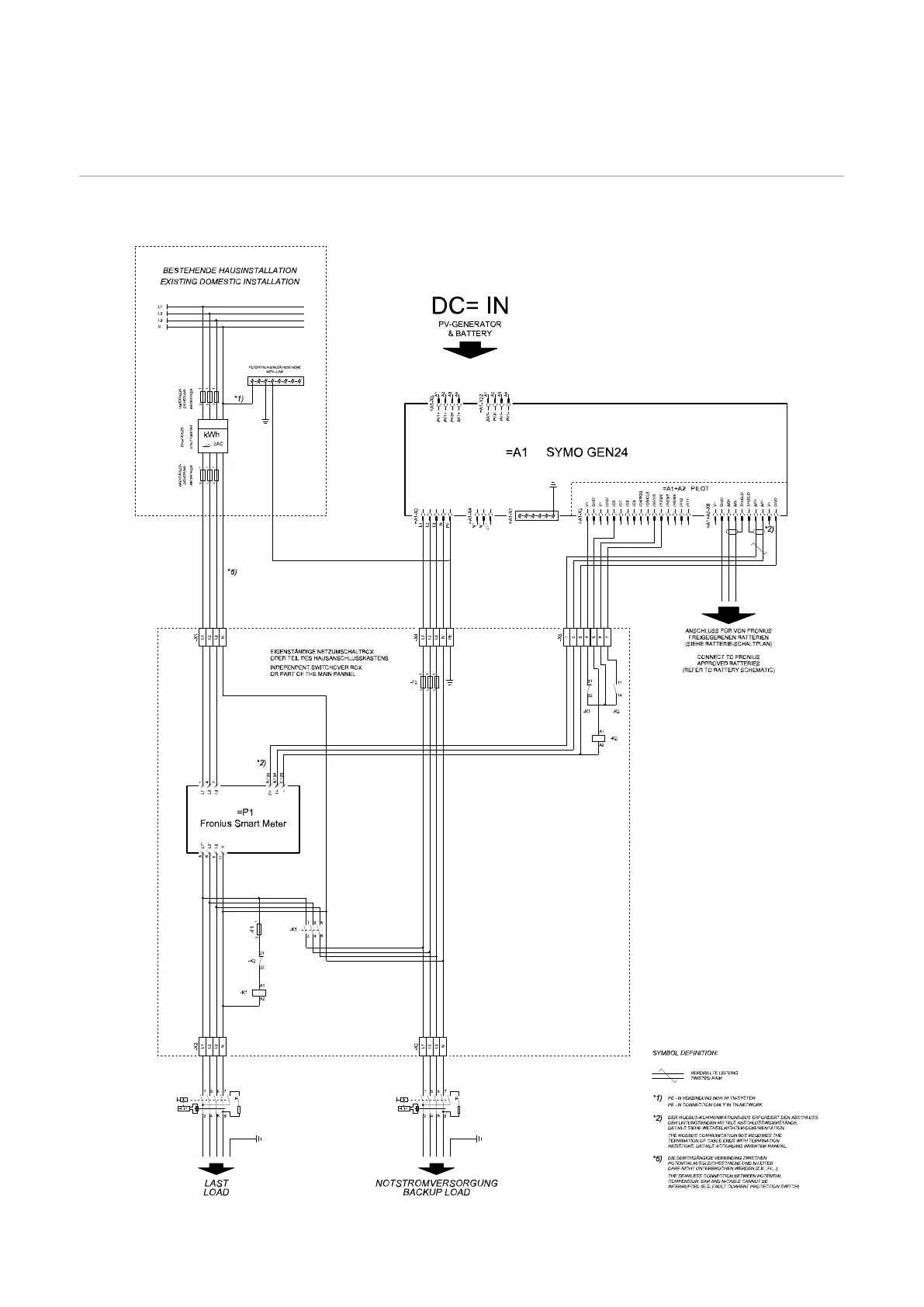
Fronius Symo GEN24 6.0.Plus - Automatic Switch to Backup Power 3-Pin Single Separation- E.g. Australia; Circuit Diagram

Fronius Symo GEN24 6.0.Plus
172 pages
To Next Page IconTo Next Page
To Next Page IconTo Next Page
To Previous Page IconTo Previous Page
To Previous Page IconTo Previous Page
Loading...
Automatic switch to backup power 3-pin single
separation- e.g. Australia
Circuit Diagram
162

Table of Contents

Related product manuals