EasyManua.ls Logo

Fujitsu SPARC Enterprise M3000 - Page 143

Fujitsu SPARC Enterprise M3000
144 pages
Print Icon
To Next Page IconTo Next Page
To Next Page IconTo Next Page
To Previous Page IconTo Previous Page
To Previous Page IconTo Previous Page
Loading...
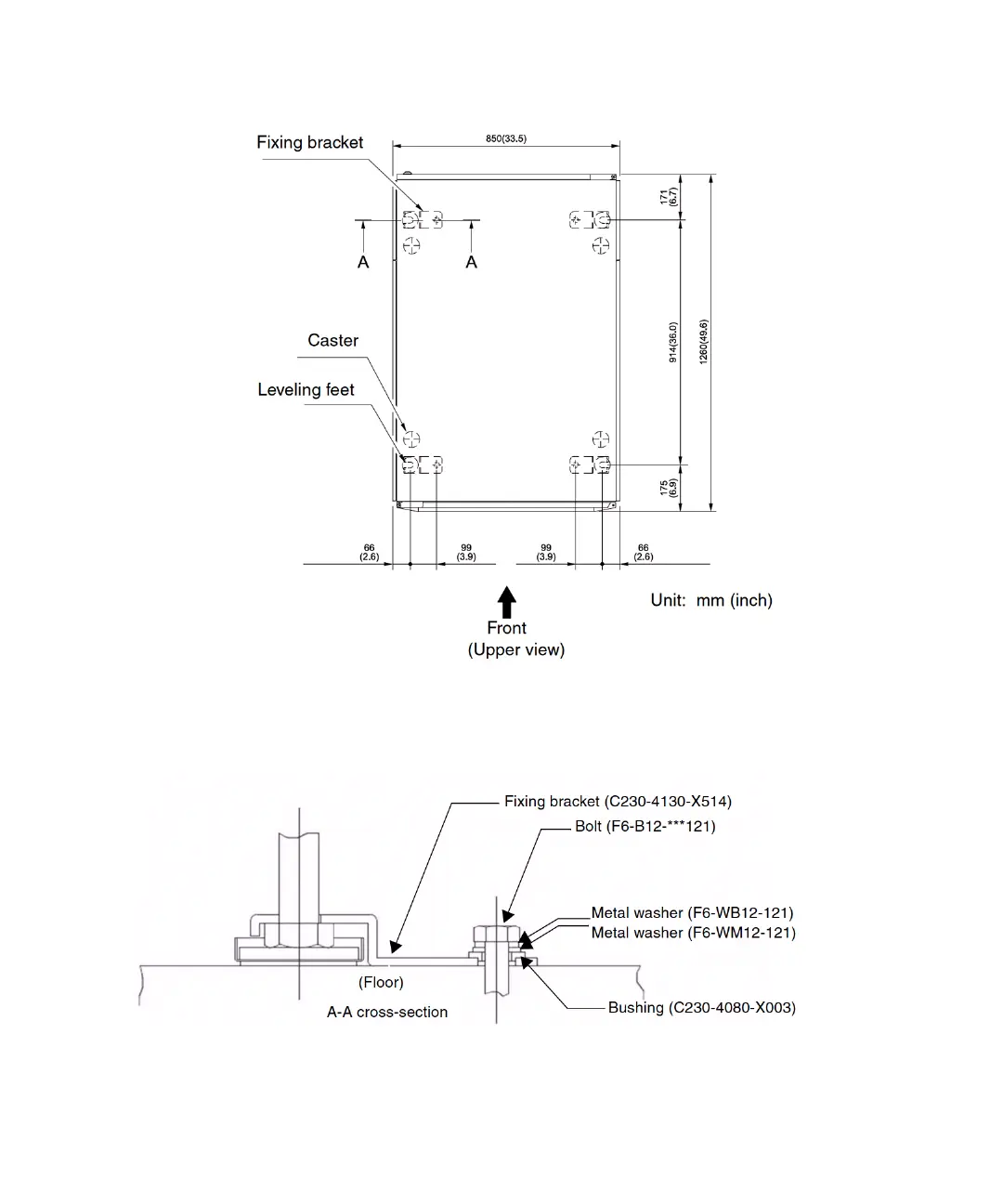
Chapter 6 Information About Hardware of M8000/M9000 Servers 127
FIGURE 6-1 Example of Securing the Cabinet to the Floor Surface Using the Fixing Bracket (M9000 Server)

Table of Contents

Other manuals for Fujitsu SPARC Enterprise M3000

Related product manuals