EasyManua.ls Logo

GE MM300 - Full-Voltage Reversing Starter

GE MM300
198 pages
Print Icon
To Next Page IconTo Next Page
To Next Page IconTo Next Page
To Previous Page IconTo Previous Page
To Previous Page IconTo Previous Page
Loading...
2–26 MM300 MOTOR MANAGEMENT SYSTEM – INSTRUCTION MANUAL
STARTER TYPES CHAPTER 2: INSTALLATION
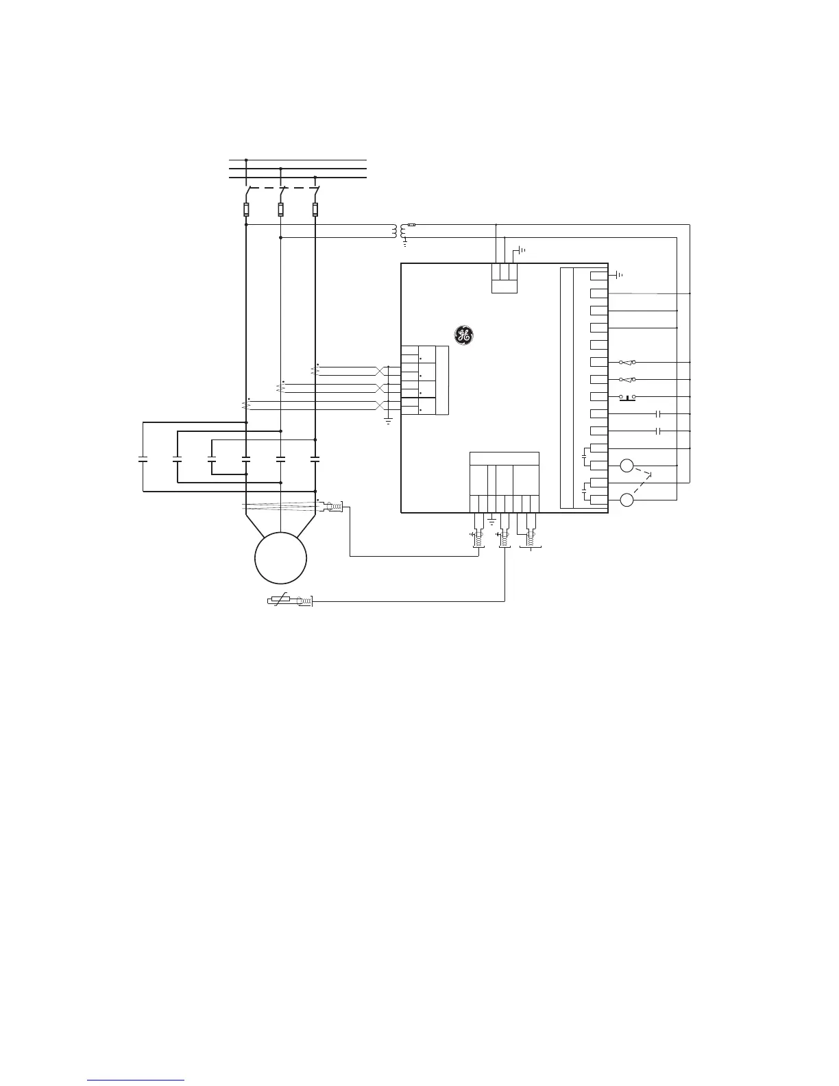
Full-voltage reversing starter
Figure 2-30: Full-voltage reversing starter wiring - IO_C
A
B
C
F F F
MOTOR
R
Stator Thermistor
Field Stop
Fwd Limit
Core Balance CT
Dual
Contactor
R R R
F
F
Inter-
lock
R
Rev Limit
I
A
I
B
I
C
RS485 Serial Link
Ground at one point
MM300
Low Voltage
Motor
Manager
D2
D1
D8
D7
D6
D5
D4
D3
CT Module
CT2
CT3
G/F
CT1
C1
C2
C3
C4
C5
C6
C7
C8
I/O Module- Type C
C9
C10
C11
C12
C13
C14
Aux VT
IN 1 IN 2 IN 3 IN 4 IN 5 IN 6 Com
Relay 1Relay 2
LN
+
-
Com
+
CPU
-
R
I
Surge G d
Core
Balance
Thermistor
RS485
PSU
N
L
853705A3.cdr
GE Multilin
G
n
Gd
n

Table of Contents

Other manuals for GE MM300

Related product manuals