EasyManua.ls Logo

GE VAT2000 - Page 105

GE VAT2000
184 pages
Print Icon
To Next Page IconTo Next Page
To Next Page IconTo Next Page
To Previous Page IconTo Previous Page
To Previous Page IconTo Previous Page
Loading...
6. Control Functions and Parameter Settings
6-30
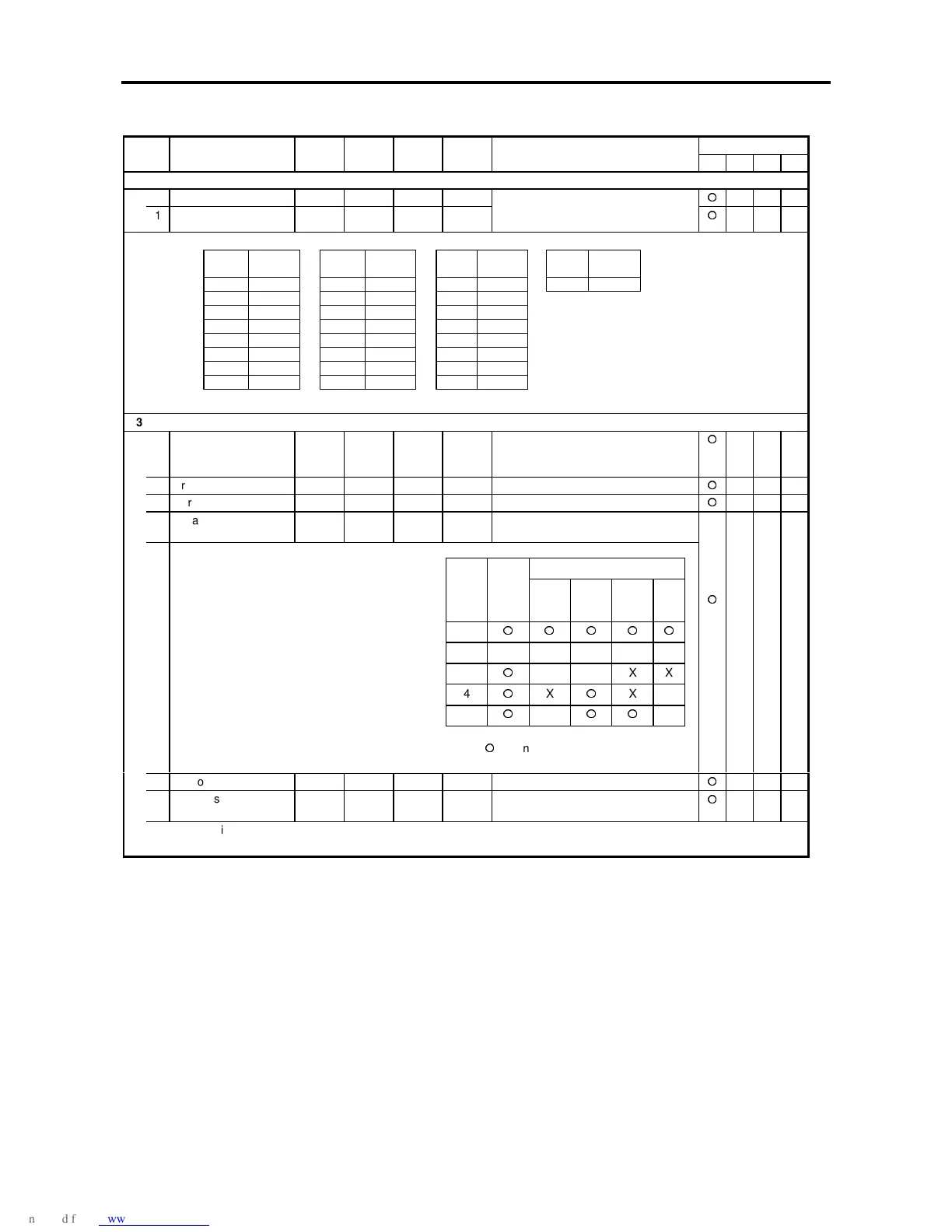
Block-C parameters (H/W optional functions) list
ApplicationNo. Parameter Unit Default Min. Max. Function
ST V/f VEC PM
C33 – Sequence output function
0 PSO4 Output 5. 0. 24.
1 PSO5 Output 6. 0. 24.
These relay outputs can be provided
by either of U2KV23RYO or
U2KV23PIO optional interfaces
C34 – Serial interface
0 Baud rate (bps) 1. 1. 6.
= 1: 300 = 4: 2400
= 2: 600 = 5: 4800
= 3: 1200 = 6: 9600
1 Transmission system 1. 1. 2. = 1: 1: 1 = 2: 1: N
2 Pariry check 1. 1. 3. =1: None, =2: Even, =3: Odd
3 Parameter settting
protection
1. 1. 5. The parameters are shown in below
table
: Changeable X: Lock
4 Station No. 1. 0. 32. Set the local station number
5 Response timer sec. 0.00 0.00 2.00 Set the minimum time for returning an
answer after receiving a command
This serial comm. needs option card U2KV23SLO. Refer to instruction manual PCST-3304 for other details
Value Output
signal
Value Output
signal
Value Output
signal
Value Output
signal
0 RUN 8 ATN 16 ACC 24 ULMT
1 FLT 9 SPD1 17 DCC
2 MC 10 SPD2 18 AUXDV
3 RDY1 11 COP 19 ALM
4RDY2 12EC0 20FAN
5 LCL 13 EC1 21 ASW
6 REV 14 EC2 22 ZSP
7 IDET 15 EC3 23 LLMT
Block B, C
Sett-
ing
value
Block
A
Basic Ex-
tend
S/W H/W
1

2XXXXX
3
XXXX
4
X
XX
5
X

X

Table of Contents

Related product manuals