EasyManua.ls Logo

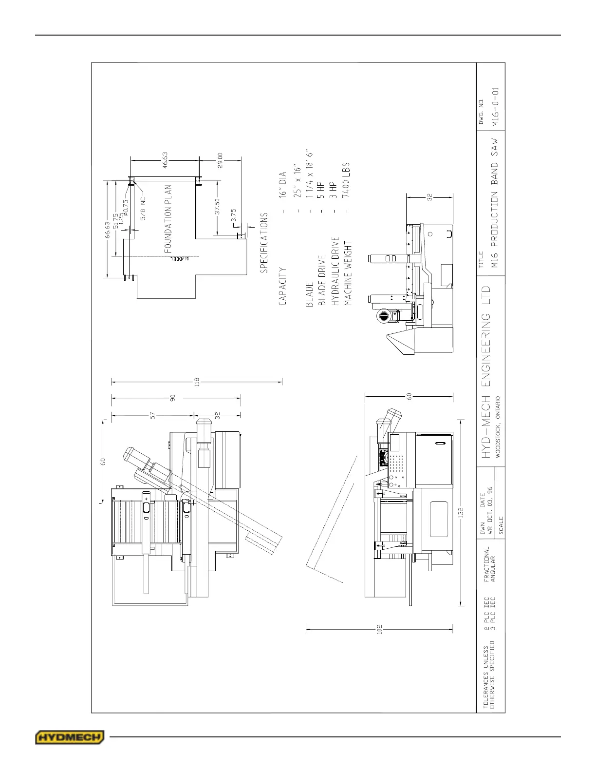
Hydmech M16A - M16 A Layout

Hydmech M16A
76 pages
Print Icon
To Next Page IconTo Next Page
To Next Page IconTo Next Page
To Previous Page IconTo Previous Page
To Previous Page IconTo Previous Page
Loading...
8.2
M16A LAYOUT

Table of Contents