EasyManua.ls Logo

Immergas MAGIS COMBO V2 - Magis Combo Plus V2 Main Dimensions

Immergas MAGIS COMBO V2
46 pages
Print Icon
To Next Page IconTo Next Page
To Next Page IconTo Next Page
To Previous Page IconTo Previous Page
To Previous Page IconTo Previous Page
Loading...
MAGIS COMBO V2
8
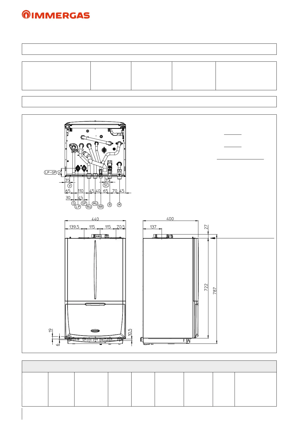
A AA/S
A/S = intake/exhaust
A = intake
SC = Condensate drain (min. internal Ø= 13 mm)
Distance between casing upper line and
Ø 60/100 concentric bend axis: 105 mm
Distance between casing upper line and
Ø 80/125 concentric bend axis: 215 mm
Distance between casing upper line and
separator bend axis Ø 80/80: A/S = 145; mm A = 115
Casing upper line
Model
MAGIS COMBO PLUS V2
Height mm
787
Width mm
440
Depth mm
400
Ø intake/exhaust mm
100/60 - 125/80 - 80/80
MAGIS COMBO PLUS V2
Flow
System
M
3/4"
Return
System
R
3/4"
System Filling
RR
1/2"
Storage
tank
Flow
MU
3/4"
Storage
tank
return
RU
3/4"
R32
LP
1/4”
(6.35 mm)
R32
GP
5/8"
(15.88 mm)
Gas
G
3/4"
Expansion vessel
Litres
10 (real 8.3)
4.1 MAGIS COMBO PLUS V2 CONNECTIONS
4 MAGIS COMBO PLUS V2 MAIN DIMENSIONS

Table of Contents

Related product manuals