EasyManua.ls Logo

Iseki TH4365 - Wiring Diagram; Th4295, Th4335, Th4365

Iseki TH4365
113 pages
Print Icon
To Next Page IconTo Next Page
To Next Page IconTo Next Page
To Previous Page IconTo Previous Page
To Previous Page IconTo Previous Page
Loading...
WIRING HARNESS CABLE
1
09
䠯䠰䠝䠮䠰䠫䠮䚷䠩䠫䠰䠫䠮
䚷䠍䠎䠲䚷䠍䠊䠐䡇䠳
䠒䠎䠔䠍䚷䠍䠌䠌䚷䠌䠌䠓䚷䠎䠌
䠏䠓䠌䠔䚷䠎䠔䠎䚷䠩䠕䠏
䠝䠨䠰䠡䠮䠪䠝䠰䠫䠮
䚷䠍䠎䠲䚷䠐䠌䠝
䠒䠎䠔䠍䚷䠎䠌䠌䚷䠌䠎䠌䚷䠌䠌
䠏䠒䠌䠒䚷䠎䠎䠌䚷䠩䠕䠍
䠞䠝䠰䠰䠡䠮䠵
䠧䚷䠰䠵䠬䠡䠖䠔䠌䠠䠎䠒䠮
䠍䠓䠐䠎䚷䠒䠑䠌䚷䠎䠎䠌䚷䠌䠌
䠒䠎䠐䠍䚷䠔䠓䠎䚷䠩䠕䠍
䠲䠮䠡䠐䠝䚷䠰䠵䠬䠡䠖䠑䠑䠞䠎䠐䠮䠯
䠍䠒䠔䠐䚷䠍䠍䠎䚷䠏䠌䠌䚷䠎䠌
䠰䠱䠮䠪䚷䠯䠳䠥䠰䠟䠤
䠨䠥䠣䠤䠰䚷䠯䠳䠥䠰䠟䠤
䠤䠫䠮䠪
䠯䠳䠥䠰䠟䠤
䠟䠫䠩䠞䠥䠪䠝䠰䠥䠫䠪䚷䠯䠳䠥䠰䠟䠤
䚷䠍䠎䠲䠑䠝䠄䠣䠡䠪䠡䠮䠝䠨䚷䠨䠥䠣䠤䠰䠅
䚷䠍䠎䠲䠓䠋䠒䠊䠑䠝䠄䠤䠡䠝䠠䚷䠨䠥䠣䠤䠰䠅
䚷䠍䠎䠲䠓䠝䠄䠰䠱䠮䠪䚷䠯䠥䠣䠪䠝䠨䠅
䚷䠍䠎䠲䠑䠝䠄䠤䠫䠮䠪䠅
䠍䠓䠓䠎䚷䠒䠑䠎䚷䠎䠎䠌䚷䠍䠌
䠒䠎䠑䠏䚷䠔䠔䠍䚷䠩䠕䠎
䠯䠝䠢䠡䠰䠵䚷䠯䠰䠝䠮䠰䚷䠮䠡䠨䠝䠵
䠄䠪䠫䠮䠩䠝䠨䠨䠵䚷䠫䠬䠡䠪䠅
䠍䠒䠕䠌䚷䠒䠑䠔䚷䠏䠓䠌䚷䠌䠌
䠏䠒䠌䠓䚷䠓䠑䠏䚷䠩䠕䠍
䠥䠪䠯䠰䠮䠱䠩䠡䠪䠰䚷䠬䠝䠪䠡䠨
䠩䠫䠪䠥䠰䠫䠮䠖䠍䠎䠲䠏䠊䠐䠳
䠥䠨䠨䠱䠩䠥䠊䠖䠍䠎䠲䠍䠊䠓䠳
䠍䠓䠓䠏䚷䠒䠑䠒䚷䠎䠍䠌䚷䠍䠌
䠒䠎䠑䠏䚷䠑䠒䠍䚷䠩䠕䠎
䠬䠰䠫䚷䠯䠳䠥䠰䠟䠤
䠍䠎䠲䚷䠏䠝
䠍䠓䠐䠎䚷䠒䠑䠎䚷䠏䠌䠌䚷䠌䠌
䠒䠎䠐䠎䚷䠑䠏䠔䚷䠩䠕䠍
䠩䠝䠥䠪䚷䠤䠝䠮䠪䠡䠯䠯䠖
䠍䠓䠓䠎䚷䠒䠑䠎䚷䠎䠍䠌䚷䠍䠌
䠒䠎䠑䠏䚷䠔䠓䠕䚷䠩䠕䠎
䠦䠫䠥䠪䠰䚷䠢䠫䠮䚷䠢䠊䠨䠝䠩䠬
䠍䠓䠓䠎䚷䠒䠑䠎䚷䠎䠐䠌䚷䠍䠌
䠒䠎䠑䠏䚷䠔䠔䠒䚷䠩䠕䠎
䠯䠨䠫䠳䚷䠞䠨 䠫䠳䚷䠢䠱䠯
䠞䠝䠰䠰䠡䠮䠵䚷䠟䠝䠞䠨䠡䚷䠇
䠍䠓䠎䠑䚷䠒䠕䠌䚷䠎䠏䠌䚷䠌䠌
䠐䠎䠒䠑䚷䠏䠔䠍䚷䠩䠕䠍
䠞䠝䠰䠰䠡䠮䠵䚷䠟䠝䠞䠨䠡䚷䠉
䠍䠓䠓䠏䚷䠒䠑䠌䚷䠎䠎䠌䚷䠌䠌
䠒䠎䠑䠏䚷䠒䠐䠓䚷䠩䠕䠍
䠩䠝䠥䠪䚷䠯䠳䠥䠰䠟䠤
䚷䠞䠉䠝䠟䠖䠍䠎䠲䠎䠌䠝
䚷䠞䠉䠣䠖䠍䠎䠲䠏䠌䠝
䚷䠞䠉䠯䠰䠖䠍䠎䠲䠎䠌䠝
䠍䠓䠍䠒䚷䠒䠔䠌䚷䠎䠌䠌䚷䠍䠌
䠐䠎䠒䠓䚷䠌䠏䠕䚷䠩䠕䠍
䠳䠫䠮䠧䠥䠪䠣䚷䠨䠝䠩䠬
䠄䠓䠌䠳䠅
䠳䠫䠮䠧䠥䠪䠣䚷䠨䠝䠩䠬
䠄䠓䠌䠳䠅
䠰䠥䠩䠡䠮䚷䠮䠡䠨䠝䠵
䠍䠓䠓䠏䚷䠒䠑䠎䚷䠎䠎䠌䚷䠌䠌
䠒䠎䠑䠏䚷䠑䠐䠍䚷䠩䠕䠍
䠯䠱䠞䚷䠯䠤䠥䠢䠰
䠨䠡䠲䠡䠮䚷䠯䠳䠥䠰䠟䠤
䠄䠤䠯䠰䠉䠰䠵䠬䠡䠅
䠎䠍䠒䠍䚷䠑䠌䠒䚷䠎䠒䠌䚷䠌䠌䚷
䠏䠓䠑䠔䚷䠓䠕䠐䚷䠩䠕䠍
䠮䠡䠲䠡䠮䠯䠡䚷䠯䠤䠥䠢䠰
䠨䠡䠲䠡䠮䚷䠯䠳䠥䠰䠟䠤
䠄䠯䠉䠰䠵䠬䠡䚷䠫䠪䠨䠵䠅
䠎䠍䠒䠍䚷䠑䠌䠒䚷䠎䠒䠌䚷䠌䠌䚷
䠏䠓䠑䠔䚷䠓䠕䠐䚷䠩䠕䠍
䠠䠥䠫䠠䠡䠄䠏䠝䠅
䠍䠓䠓䠏䚷䠒䠑䠎䚷䠎䠍䠎䚷䠌䠌
䠒䠎䠑䠏䚷䠑䠐䠌䚷䠩䠍
䠮䠡䠝䠮䚷䠟䠫䠩䠞䠥䠪䠝䠰䠥䠫䠪䚷䠨䠝䠩䠬
䠍䠎䠲䠎䠍䠋䠑䠳䠄䠯䠰䠫䠬䠋䠰䠝䠥䠨䠅
䠍䠎䠲䠎䠍䠳䠄䠰䠱䠮䠪䚷䠯䠥䠣䠪䠝䠨䠅
䠍䠓䠓䠎䚷䠒䠑䠐䚷䠎䠍䠌䚷䠌䠌
䠒䠎䠑䠏䚷䠔䠕䠎䚷䠩䠕䠍
䠢䠫䠮䚷䠨䠤
䠮䠡䠝䠮䚷䠟䠫䠩䠞䠥䠪䠝䠰䠥䠫䠪䚷䠨䠝䠩䠬
䠍䠎䠲䠎䠍䠋䠑䠳䠄䠯䠰䠫䠬䠋䠰䠝䠥䠨䠅
䠍䠎䠲䠎䠍䠳䠄䠰䠱䠮䠪䚷䠯䠥䠣䠪䠝䠨䠅
䠍䠓䠓䠎䚷䠒䠑䠐䚷䠎䠍䠌䚷䠌䠌
䠒䠎䠑䠏䚷䠔䠕䠎䚷䠩䠕䠍
䠳䠝䠰䠡䠮䚷䠰䠡䠩䠬䠊
䠯䠡䠪䠯䠫䠮
䠒䠎䠔䠎䚷䠐䠑䠌䚷䠌䠌䠒䚷䠌䠌
䠏䠓䠑䠔䚷䠓䠏䠔䚷䠩䠍
䠫䠥䠨䚷䠬䠮䠡䠯䠯䠱䠮䠡䚷䠯䠡䠪䠯䠫䠮
䠒䠎䠔䠍䚷䠕䠓䠍䚷䠌䠌䠏䚷䠌䠌
䠏䠓䠑䠑䚷䠑䠔䠍䚷䠩䠍
䠢䠱䠡䠨䚷䠣䠝䠱䠣䠡
䠍䠓䠎䠕䚷䠍䠍䠍䚷䠎䠓䠌䚷䠌䠌
䠒䠎䠐䠍䚷䠎䠓䠌䚷䠩䠕䠍
䠣䠨䠫䠳䚷䠬䠨䠱䠣䠯
䠌䠊䠑䃈㽢䠐
䠒䠎䠔䠍䚷䠐䠍䠌䚷䠌䠎䠏䚷䠍䠌
䠒䠎䠑䠎䚷䠔䠌䠕䚷䠩䠍
䠟䠨䠱䠟䠰䠤䚷䠬䠡䠠䠝䠨䚷䠯䠳䠥䠰䠟䠤
䠄䠡䠴䠟䠡䠬䠰䚷䠯䠉䠰䠵䠬䠡䠅
䠍䠓䠓䠎䚷䠒䠑䠐䚷䠎䠑䠌䚷䠌䠌
䠒䠎䠑䠏䚷䠕䠌䠌䚷䠩䠕䠍
䠡䠟䠱䠄䠢䠫䠮䚷䠬䠰䠫䚷䠟䠫䠪䠰䠮䠫䠨䠅
䠄䠧䠉䠰䠵䠬䠡䚷䠫䠪䠨䠵䠅
䠍䠓䠓䠎䚷䠒䠒䠎䚷䠎䠍䠌䚷䠌䠌
䠒䠎䠑䠏䚷䠕䠌䠓䚷䠩䠕䠍
䠬䠰䠫䚷䠯䠡䠨䠡䠟䠰䠝䠞䠨䠡
䠯䠳䠥䠰䠟䠤
䠍䠓䠐䠎䚷䠒䠑䠎䚷䠎䠒䠌䚷䠌䠌
䠒䠎䠐䠍䚷䠔䠔䠔䚷䠩䠕䠍
䠠䠥䠫䠠䠡䠄䠏䠝䠅
䠍䠓䠓䠏䚷䠒䠑䠎䚷䠎䠍䠎䚷䠌䠌
䠒䠎䠑䠏䚷䠑䠐䠌䚷䠩䠍
䠢䠨䠝䠯䠤䠡䠮䚷䠱䠪䠥䠰
䠍䠓䠏䠕䚷䠒䠔䠍䚷䠎䠎䠌䚷䠍䠌
䠒䠎䠑䠎䚷䠓䠐䠓䚷䠩䠕䠎
䠤䠝䠶䠝䠮䠠䚷䠯䠳䠥䠰䠟䠤
䠍䠓䠐䠌䚷䠒䠔䠌䚷䠑䠑䠌䚷䠌䠌
䠐䠎䠒䠓䚷䠎䠔䠏䚷䠩䠕䠍
䠯䠫䠨䠡䠪䠫䠥䠠䚷䠲䠝䠨䠲䠡䚷䠝䠯䠯䠵
䠄䠧䠉䠰䠵䠬䠡䚷䠫䠪䠨䠵䠅
䠧䠎䠌䠌䚷䠍䠓䠏䚷䠌䠌䠌䚷䠌䠌
䠒䠎䠑䠏䚷䠌䠏䠍䚷䠩䠕䠍
䠬䠰 䠫䚷䠟䠫䠪䠰 䠮䠫䠨
䠢䠫䠮䚷䠮䠤
䠞䠮䠝䠧䠡䚷䠨䠝䠩䠬䚷䠯䠳䠥䠰䠟䠤
䠍䠓䠓䠎䚷䠒䠑䠐䚷䠎䠔䠌䚷䠌䠌
䠒䠎䠑䠏䚷䠕䠌䠐䚷䠩䠕䠍
䠐䠳䠠䚷䠟䠤䠝䠪䠣䠡䚷䠯䠳䠥䠰䠟䠤
䠍䠓䠑䠓䚷䠒䠑䠐䚷䠏䠑䠌䚷䠌䠌
䠒䠎䠑䠏䚷䠕䠌䠐䚷䠩䠕䠍
䠳䠝䠮䠪䠥䠪䠣䚷䠤䠫䠮䠪
䠍䠓䠐䠌䚷䠒䠔䠌䚷䠑䠏䠌䚷䠌䠌
䠓䠉䠬䠥䠪䚷䠯䠫䠟䠧䠡䠰䚷䠢䠫䠮䚷䠰䠮䠝䠥䠨䠫䠮
䠍䠒䠏䠓䚷䠒䠕䠌䚷䠎䠓䠌䚷䠍䠌
䠏䠓䠍䠍䚷䠒䠎䠒䚷䠩䠕䠎
䠨䠫䠫䠬䚷䠟䠥䠮䠟䠱䠥䠰
䚷䠢䠫䠮䚷䠯䠡䠝䠰䚷䠯䠳䠥䠰䠟䠤
䠄䠟䠫䠪䠪䠡䠟䠰䠡䠠䚷䠳䠤䠡䠪䚷䠯䠤䠥䠬䠩䠡䠪䠰䠅
䠢䠫䠮䚷䠮䠤
䠢䠮䠫䠪䠰䚷䠟䠫䠩䠞䠥䠪䠝䠰䠥䠫䠪䚷䠨䠝䠩䠬
䠍䠎䠲䠎䠍䠳䠄䠰䠱䠮䠪䚷䠯䠥䠣䠪䠝䠨䠅
䠍䠎䠲䠑䠳䠄䠣䠡䠪䠡䠮䠝䠨䚷䠨䠥䠣䠤䠰䠅
䠍䠓䠓䠎䚷䠒䠑䠐䚷䠎䠎䠌䚷䠌䠌
䠒䠎䠑䠏䚷䠔䠕䠏䚷䠩䠕䠍
䠢䠫䠮䚷䠨䠤
䠢䠮䠫䠪䠰䚷䠟䠫䠩䠞䠥䠪䠝䠰䠥䠫䠪䚷䠨䠝䠩䠬
䠍䠎䠲䠎䠍䠳䠄䠰䠱䠮䠪䚷䠯䠥䠣䠪䠝䠨䠅
䠍䠎䠲䠑䠳䠄䠣䠡䠪䠡䠮䠝䠨䚷䠨䠥䠣䠤䠰䠅
䠍䠓䠓䠎䚷䠒䠑䠐䚷䠎䠎䠌䚷䠌䠌
䠒䠎䠑䠏䚷䠔䠕䠏䚷䠩䠕䠍
䠝䠟䠟䚷䠬䠫䠳䠡䠮䚷䠯䠱䠬䠬䠨䠵
䠄䠢䠫䠮䚷䠮䠝䠠䠥䠫䠖䠑䠌䠳䠅
䠟䠝䠞䚷䠬䠫䠳䠡䠮䚷䠫䠱䠰䠨䠡䠰
䠮䠡䠣䠥䠯䠰䠮䠝䠰䠥䠫䠪䚷䠬䠨䠝䠰䠡䚷䠨䠝䠩䠬
䚷䚷䠍䠎䠲䠑䠳
䠍䠒䠓䠐䚷䠒䠑䠐䚷䠎䠓䠌䚷䠌䠌
䠏䠓䠑䠒䚷䠔䠔䠐䚷䠩䠕䠍
䠡䠪䠣䠥䠪䠡㻌䠯䠫䠨䠡䠪䠫䠥䠠㻌䠮䠡䠨䠝䠵
䠍䠓䠎䠑䚷䠒䠔䠍䚷䠎䠌䠌䚷䠌䠌
䠐䠎䠒䠑䚷䠏䠓䠒䚷䠩䠕䠍
䠢䠱䠡䠨䚷䠬䠱䠩䠬
䠍䠎䠲䚷䠍䠊䠑䠝
䠍䠓䠌䠏䚷䠍䠌䠑䚷䠎䠍䠌䚷䠌䠌
䠏䠒䠌䠔䚷䠕䠕䠐䚷䠩䠕䠍
䠡䠪䠣䠥䠪䠡䚷䠯䠰䠫䠬䚷䠯䠫䠨䠡䠪䠫䠥䠠
䠒䠎䠔䠍䚷䠕䠍䠌䚷䠌䠍䠍䚷䠌䠌
䠒䠎䠐䠎䚷䠍䠎䠔䚷䠩䠍
䠤䠡䠝䠠䚷䠨䠝䠩䠬䠋䠮䠤
䠩䠢䠄䠍䠎䠲䠒䠌䠋䠑䠑䠳䠅
䚷䚷䠖䠍䠓䠐䠎䚷䠒䠑䠌䚷䠎䠏䠌䚷䠌䠌
䚷䚷䚷䠒䠎䠐䠍䚷䠔䠓䠏䚷䠩䠕䠍
䠰䠤䠄䠍䠎䠲䠐䠑䠋䠐䠑䠳䠅
䚷䚷䠖䠍䠒䠓䠐䚷䠒䠑䠐䚷䠎䠌䠌䚷䠌䠌
䠤䠡䠝䠠䚷䠨䠝䠩䠬䠋䠨䠤
䠩䠢䠄䠍䠎䠲䠒䠌䠋䠑䠑䠳䠅
䚷䚷䠖䠍䠓䠐䠎䚷䠒䠑䠌䚷䠎䠏䠌䚷䠌䠌
䚷䚷䚷䠒䠎䠐䠍䚷䠔䠓䠏䚷䠩䠕䠍
䠰䠤䠄䠍䠎䠲䠐䠑䠋䠐䠑䠳䠅
䚷䚷䠖䠍䠒䠓䠐䚷䠒䠑䠐䚷䠎䠌䠌䚷䠌䠌
䠤䠝䠮䠪䠡䠯䠯䠋䠤䠡䠝䠠䚷䠨䠥䠣䠤䠰䚷䠝䠯䠯䠵
䠄䠩䠢䚷䠩䠫䠠䠡䠨䚷䠫䠪䠨䠵䠅
䠍䠓䠐䠎䚷䠒䠑䠌䚷䠏䠌䠌䚷䠌䠌
䠒䠎䠐䠍䚷䠔䠓䠕䚷䠩䠕䠍
䠆䠆䚷䠰䠤䚷䠩䠫䠠䠡䠨䚷䠥䠪䠰䠡䠣䠮䠝䠰䠡䠠䚷䠳䠥䠰䠤䚷䠩䠝䠥䠪䚷䠤䠝䠮䠪䠡䠯䠯
䠤䠡䠝䠠䠨䠝䠩䠬䚷䠮䠡䠨䠝䠵䠯䠄䠴䠎䠅
䠄䠪䠫䠮䠩䠝䠨䠨䠵䚷䠫䠬䠡䠪䠅
䠍䠒䠕䠌䚷䠒䠑䠔䚷䠏䠓䠌䚷䠌䠌
䠏䠒䠌䠓䚷䠓䠑䠏䚷䠩䠕䠍
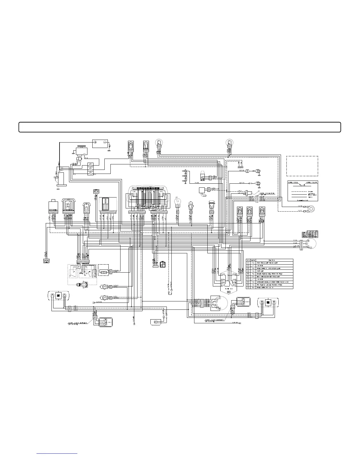
T
H4295, TH4335, TH4365
W
IRIN
G
DIA
G
RAM

Table of Contents

Related product manuals