EasyManua.ls Logo

Jackson RackStar 44 - Page 13

Jackson RackStar 44
92 pages
Print Icon
To Next Page IconTo Next Page
To Next Page IconTo Next Page
To Previous Page IconTo Previous Page
To Previous Page IconTo Previous Page
Loading...
07610-004-33-05-E
5
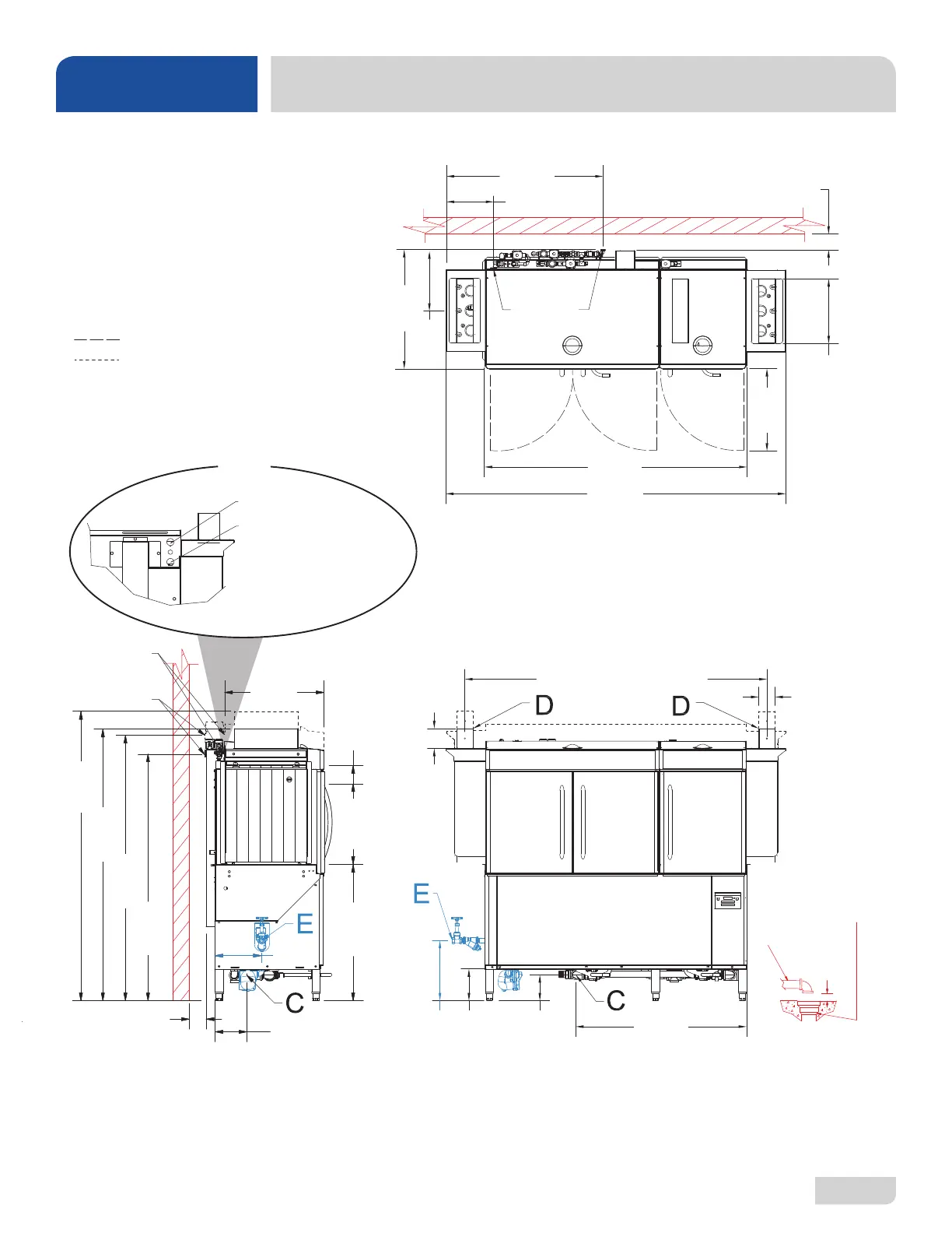
SPECIFICATIONS
66" ELECTRIC/STEAM DIMENSIONS
66" RIGHT-TO-LEFT
Primary Electrical Opening
(Provided on both ends of machine.)
Secondary Electrical Opening
(Provided on both ends of machine.)
Single-point (Option): uses only
primary opening to power the
entire machine.
Dual-point (Standard): also uses
secondary opening for a
separate connection to
only the booster.
LEGEND
A - Electrical Connection
B - Main Water Inlet
(1/2" NPT, 110 °F MIN (18 kW Booster),
140 °F MIN (12 kW Booster), or 180 °F MIN
(No Booster or Supplied from Steam Booster))
C - Drain Connection
(1 1/2" NPT)
D - Vent Connections
(Including Dampers)
E - Steam Connection
(3/4" NPT)
- Open Door
- High Hood Option
All dimensions from the floor can be increased
1 3/4” using the machine’s adjustable feet.
Items in red are not supplied with the machine.
Items in blue are for the Steam option.
4 MIN
[102 mm]
12
[305 mm]
39 3/4
[1009 mm]
16
[406 mm]
20
[508 mm]
15
[381 mm]
30
[762 mm]
66
[1676 mm]
86
[2184 mm]
4
[102 mm]
5
[127 mm]
15 1/8
[384 mm]
8
[202 mm]
6 7/8
[210 mm]
43 3/8
[1101 mm]
ADJUSTABLE FROM 73 1/2 TO 76
[1867 mm TO 1930 mm]
25 1/4
[642 mm]
25
[635 mm]
CLEARANCE
(HIGH HOOD)
34 1/4
[870 mm]
TABLE HEIGHT
8
[202 mm]
73 3/4
[1873 mm]
11 3/4
[297 mm]
4 MIN
[102 mm]
19 3/4
[502 mm]
CLEARANCE
(STANDARD)
62 1/4
[1581 mm]
68 1/2
[1740 mm]
68 1/8
[1730 mm]
A
A
B
A B
Machine
Drain Line
1 1/2 [38 mm]
MIN, Must NOT
Be Reduced.
Pitch 1/4 [6 mm]
per ft.
Must Install
Machine Drain
Line above
3 [76 mm] MIN
Floor Drain
or Sink
1 1/2
[38 mm]
MIN
Air-gap

Table of Contents

Other manuals for Jackson RackStar 44

Related product manuals