EasyManua.ls Logo

Jackson RackStar 44 - Page 17

Jackson RackStar 44
92 pages
Print Icon
To Next Page IconTo Next Page
To Next Page IconTo Next Page
To Previous Page IconTo Previous Page
To Previous Page IconTo Previous Page
Loading...
07610-004-33-05-E
9
Machine
Drain Line
1 1/2 [38 mm]
MIN, Must NOT
Be Reduced.
Pitch 1/4 per ft.
Must Install
Machine Drain
Line above
3 [76 mm] MIN
Floor Drain
or Sink
1 1/2
[38 mm]
MIN
Air-gap
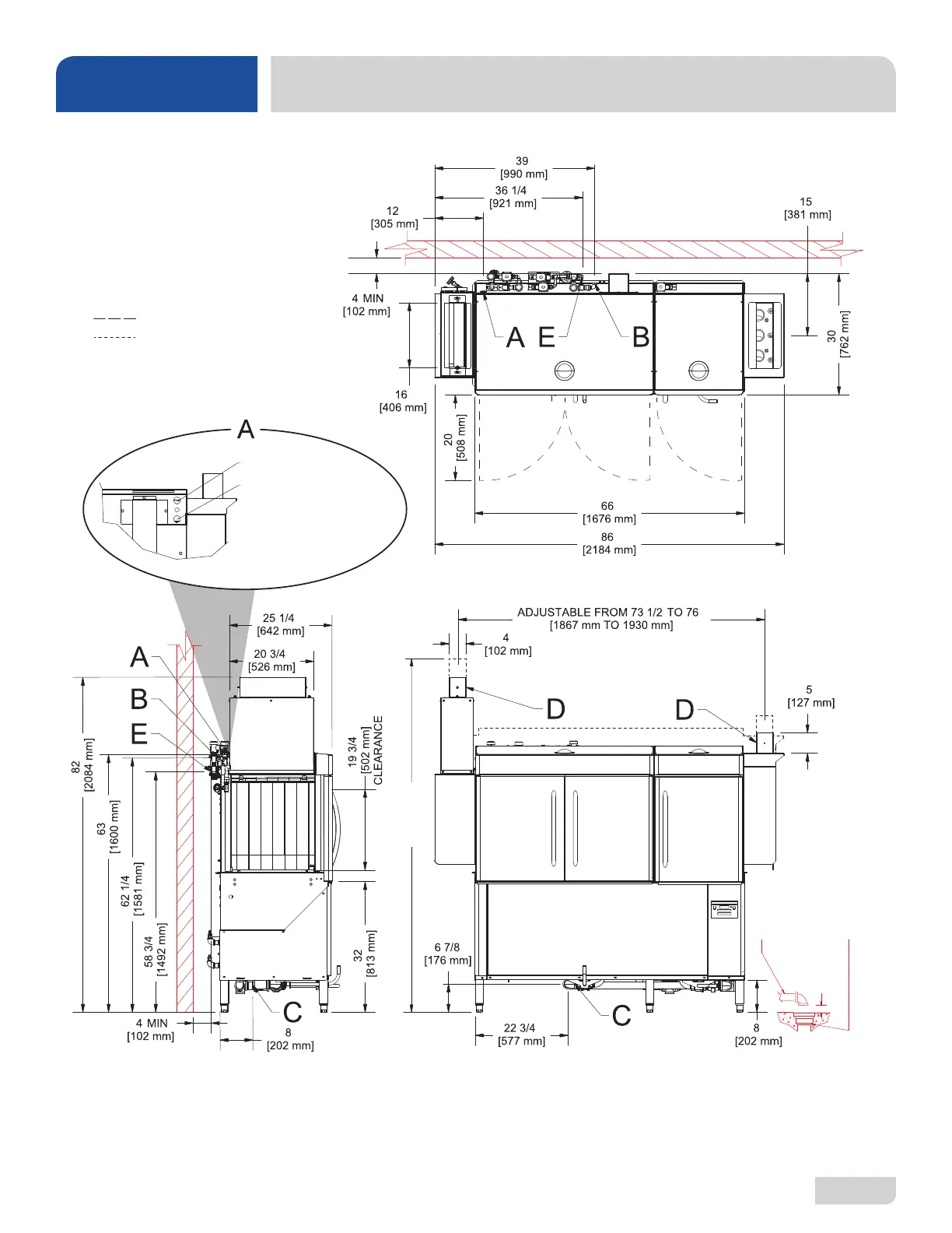
Primary Electrical Opening
(Provided on both ends of machine.)
Secondary Electrical Opening
(Provided on both ends of machine.)
Single-point (Option): uses only
primary opening to power the
entire machine.
Dual-point (Standard): also uses
secondary opening for a
separate connection to
only the booster.
A - Electrical Connection
B - Water Inlet
(1/2" NPT, 110 °F MIN (27 kW Booster))
C - Drain Connection
(1 1/2" NPT)
D - Vent Connections
(Including Dampers)
E - Energy Recovery Water Inlet
(1/2" NPT, 55 °F MIN)
increased 1 3/4" using the machine’s
adjustable feet.
Items in red are not supplied with the
machine.
LEGEND
All dimensions from the floor can be
- High Hood Option
- Open Door
89 1/8
[2264 mm]
SPECIFICATIONS
66" ENERGY RECOVERY DIMENSIONS
66" RIGHT-TO-LEFT

Table of Contents

Other manuals for Jackson RackStar 44

Related product manuals