EasyManua.ls Logo

Jackson TEMPSTAR - Electrical Specifications

Jackson TEMPSTAR
86 pages
Print Icon
To Next Page IconTo Next Page
To Next Page IconTo Next Page
To Previous Page IconTo Previous Page
To Previous Page IconTo Previous Page
Loading...
07610-003-61-42-T
4
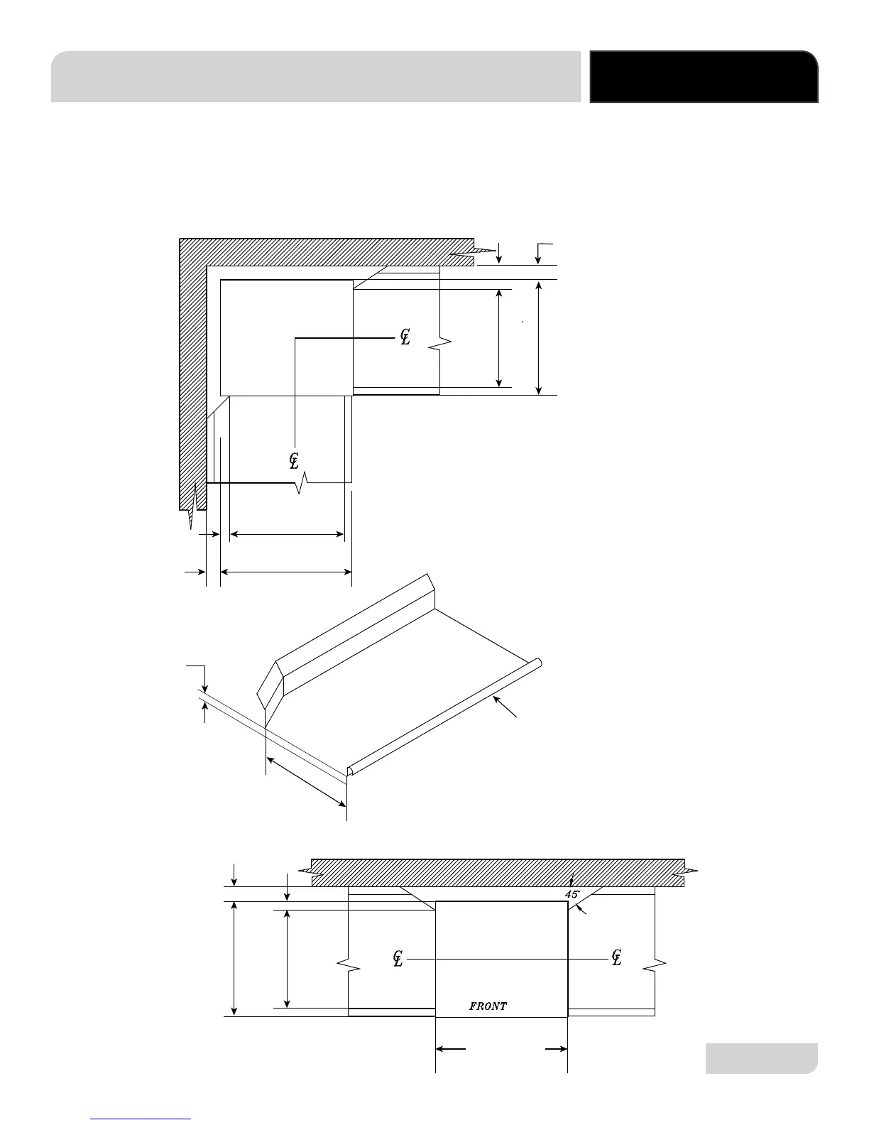
TABLE DIMENSIONS
SPECIFICATIONS
20 1/2” (52.1 cm)
OPENING
25 1/4”
(64.1 cm)
20 1/2” (52.1 cm)
OPENING
25 1/4”
(64.1 cm)
2 1/2” (6.4 cm)
4” (10.2 cm)
MINIMUM
4” (10.2 cm)
MINIMUM
2 1/2”
(6.4 cm)
3/4” (1.9 cm)
20 1/2”
(52.1 cm)
1 1/2” (3.81 cm) ROLL
TABLE DIMENSIONS
CONNECTION TO DISHMACHINE
TABLE DIMENSIONS
CORNER INSTALLATION
4” (10.2 cm)
MINIMUM
2 1/2”
(6.4 cm)
25 1/4”
(64.1 cm)
20 1/2” (52.1 cm)
OPENING
25 1/4” (64.1 cm)
TABLE DIMENSIONS
STRAIGHT THROUGH INSTALLATION
NOTE: Please remove the front dress panel from the dishmachine if mounting dishmachine for a
corner installation and attaching side tables. Corner installation will trap panel making it dif cult to
remove.

Table of Contents

Other manuals for Jackson TEMPSTAR

Related product manuals