EasyManua.ls Logo

Jackson TEMPSTAR - Drawing;Parts Section; Top Mounted Control Box Assembly (Universal Timer)

Jackson TEMPSTAR
86 pages
Print Icon
To Next Page IconTo Next Page
To Next Page IconTo Next Page
To Previous Page IconTo Previous Page
To Previous Page IconTo Previous Page
Loading...
22
07610-003-61-42-T
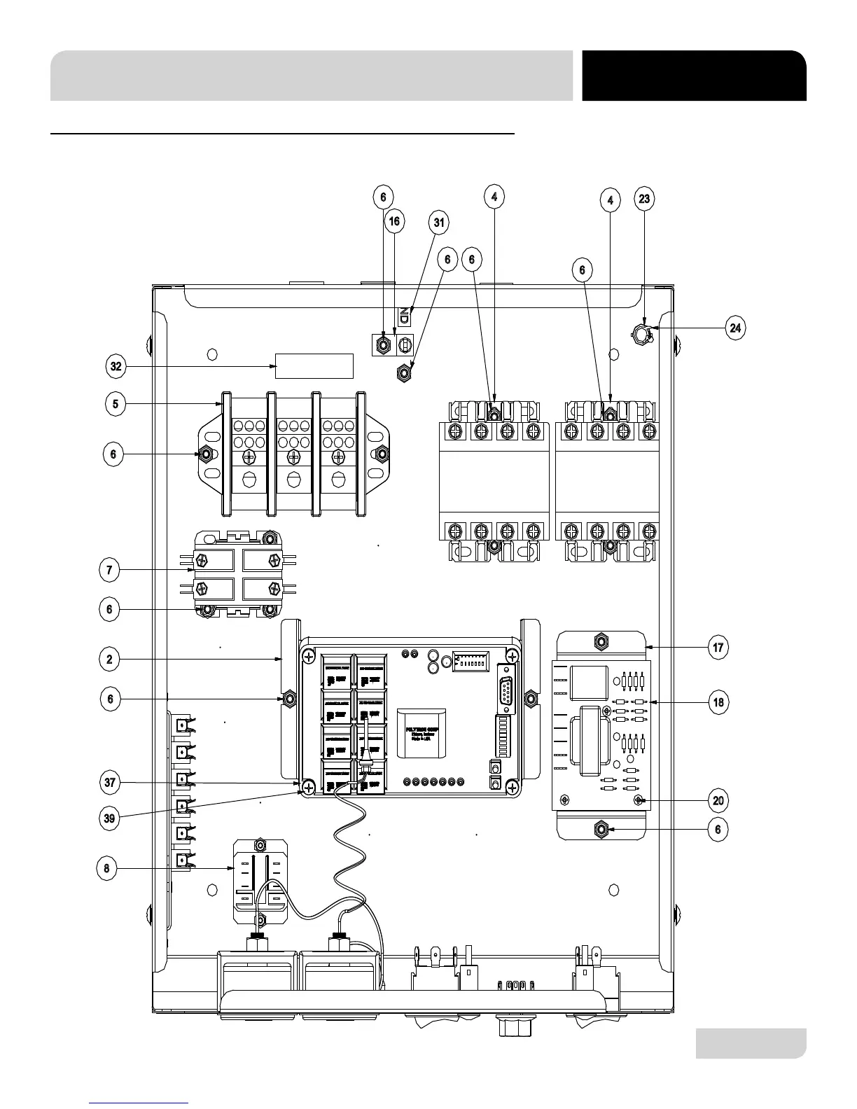
TOP CONTROL BOX ASSEMBLY
PARTS
17
18
6
20
8
2
7
6
6
6
5
32
16
6
6
23
24
4
4
6
6
31
37
39
TOP CONTROL BOX ASSEMBLY WITH UNIVERSAL TIMER

Table of Contents

Other manuals for Jackson TEMPSTAR

Related product manuals