EasyManua.ls Logo

Jackson TEMPSTAR - Specifications; Dimensions

Jackson TEMPSTAR
86 pages
Print Icon
To Next Page IconTo Next Page
To Next Page IconTo Next Page
To Previous Page IconTo Previous Page
To Previous Page IconTo Previous Page
Loading...
07610-003-61-42-T
1
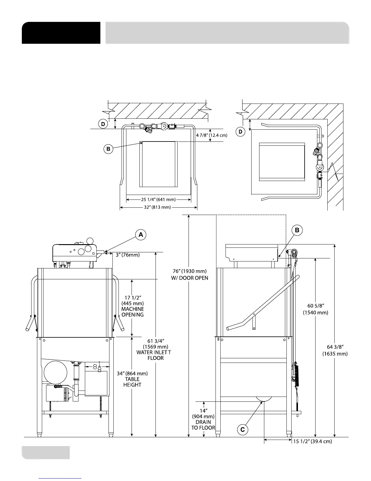
LEGEND
A- WATER INLET (1/2” NPT)
B- ELECTRICAL CONNECTION POINT
C- DRAIN (1 1/2” NPT)
D- STANDARD CLEARANCE BETWEEN
MACHINE AND WALL (WITH DISH TABLE) IS 4” (10.2 cm)
SPECIFICATIONS
Y-STRAINER MACHINE DIMENSIONS

Table of Contents

Other manuals for Jackson TEMPSTAR

Related product manuals