EasyManua.ls Logo

Jacobsen ransomes frontline 930 - 9 Diagrammi Schematici; Circuito Idraulico

Jacobsen ransomes frontline 930
248 pages
Print Icon
To Next Page IconTo Next Page
To Next Page IconTo Next Page
To Previous Page IconTo Previous Page
To Previous Page IconTo Previous Page
Loading...
I-21
FRONTLINE 960 Serie: LQ
MANUALE PER LA MANUTENZIONE E DEI RICAMBI
I
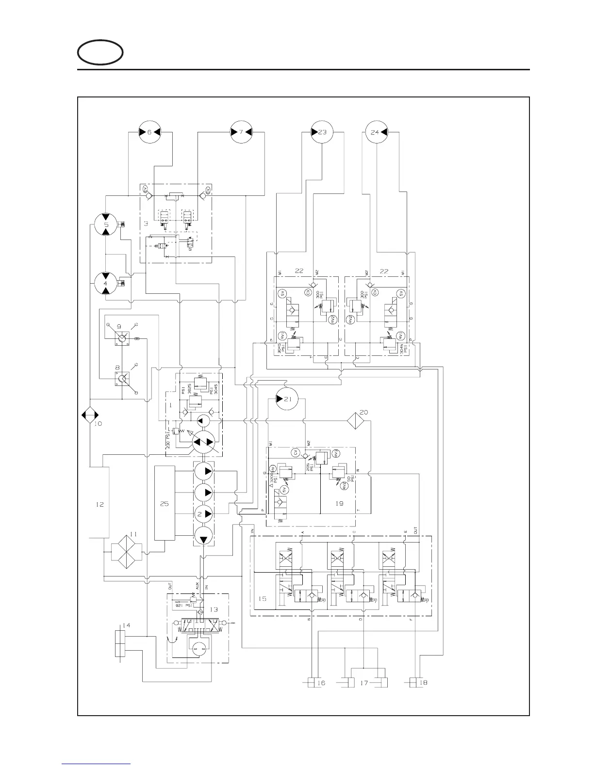
9 DIAGRAMMI SCHEMATICI
9.1 CIRCUITO IDRAULICO
1. Pompa trasmissione
2. Pompa 4 sezioni
3. Valvola trasmissione
4. Motore ruota anteriore
destra
5. Motore ruota anteriore
sinistra
6. Motore ruota posteriore
sinistra
7. Motore ruota posteriore
destra
8. Valvola freni
9. Valvola freni ausiliaria
10. Radiatore dell’olio
11. Testata del filtro
12. Serbatoio
13. Valvola dello sterzo
14. Piantone dello sterzo
15. Valvola di sollevamento
16. Cilindro di sollevamento
destro
17. Cilindri di sollevamento
centrali
18. Cilindro di sollevamento
sinistro
19. Valvola piano di taglio
anteriore
20. Filtro di carica
21. Motore del piano di taglio
anteriore
22. Valvole del piano laterale
23. Motore del dispositivo di
taglio sinistro
24. Motore del dispositivo di
taglio destro
25. Collettore di ammissione

Table of Contents

Related product manuals