EasyManua.ls Logo

Keysight Technologies N5221A - Page 149

Keysight Technologies N5221A
368 pages
Print Icon
To Next Page IconTo Next Page
To Next Page IconTo Next Page
To Previous Page IconTo Previous Page
To Previous Page IconTo Previous Page
Loading...
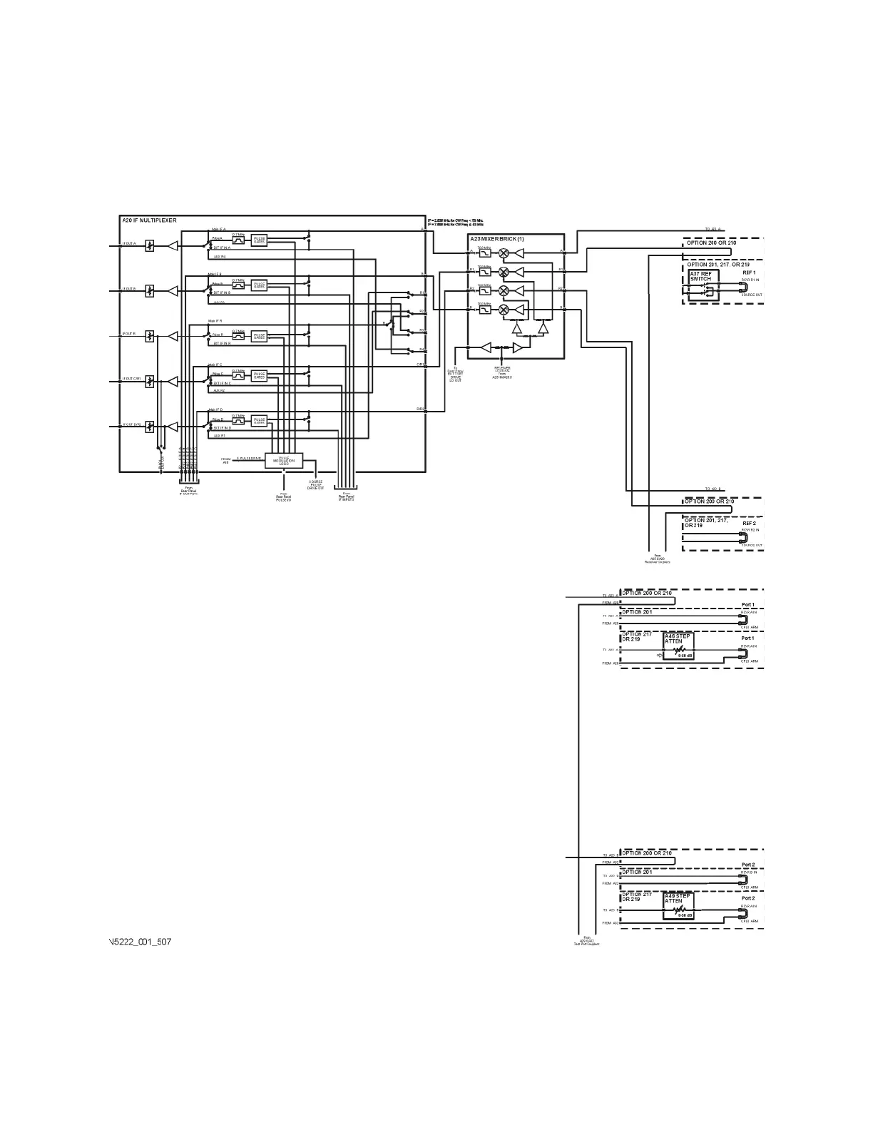
Keysight N5221A/22A Service Guide 5-25
Theory of Operation
Receiver Group Operation
Figure 5-7 2-Port Receiver Group

Table of Contents

Related product manuals