EasyManua.ls Logo

Kidde Fire Systems PEGAsys LV - Page 92

Default Icon
126 pages
Print Icon
To Next Page IconTo Next Page
To Next Page IconTo Next Page
To Previous Page IconTo Previous Page
To Previous Page IconTo Previous Page
Loading...
I-2April 2003 76-100016-002
PEGAsys™ LV
0V
PORT
PRINT
DISP
PORT
PORT
JK1
JK2
5V24V 0V
TO REMOTE PC
FOR PROGRAMMING OR IIM COMMUNICATIONS
TO EXTERNAL PRINTER OR INTELLIGENT GRAPHIC ANNUNCIATOR
PLG1
P.C.
DISPLAY
DISPLAY
5V
JK3
1
BT1
JP2
PLG2
CCM RESET
SOUNDER 2
JP4
BUTTOM
SW1
JP3
TB4
TB5
SOUNDER 1
REP 1
- -
A
+ +
B
REP 2
-
A
+
JP1
C
VOLT FREE RELAYS
TB1
TB2
-
B
+
NO NOCNC
1
NC
2
TB3
FAULT
V/F RELAY
NCNO C
24VDC FROM
POWER SUPPLY
FLT
EARTH
FLT
SUPPLY
0V
24V
TB6
IC1
JK4
PORT
JK5
I/O
PORT
CONTROLLER
POWER SUPPLIES
TO I/O MODULES A
N
LOOP
TO RX/TX
DISPLAY ASSEMBLY
RX/TX
SEE NOTE 1
SEE NOTE 1
SEE NOTE 1
SEE NOTE 1
SKT1
Display Reset
Switch
PLG2
JK1
JK2
PLG3
SW1
PLG2
JK3
PLG1
PRINT PORT
DS1
0V
24 VDC
EARTH FAULT
SUPPLY FAULT
TB6
BUZZER
Processor
Port
Display
Port
PC Port
Display Trouble
LED
24VDC From
Power Supply
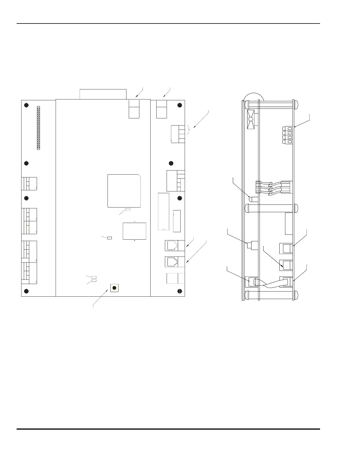
TITLE
Installation Wiring Diagram CCM/
Display and Control Assembly
(PEGAsys LV)

Table of Contents

Related product manuals