EasyManua.ls Logo

Kikusui PAS 10-35 - Load Connection for Parallel Operation

Kikusui PAS 10-35
146 pages
Print Icon
To Next Page IconTo Next Page
To Next Page IconTo Next Page
To Previous Page IconTo Previous Page
To Previous Page IconTo Previous Page
Loading...
PAS SERIES Parallel and Series Operation 5-11
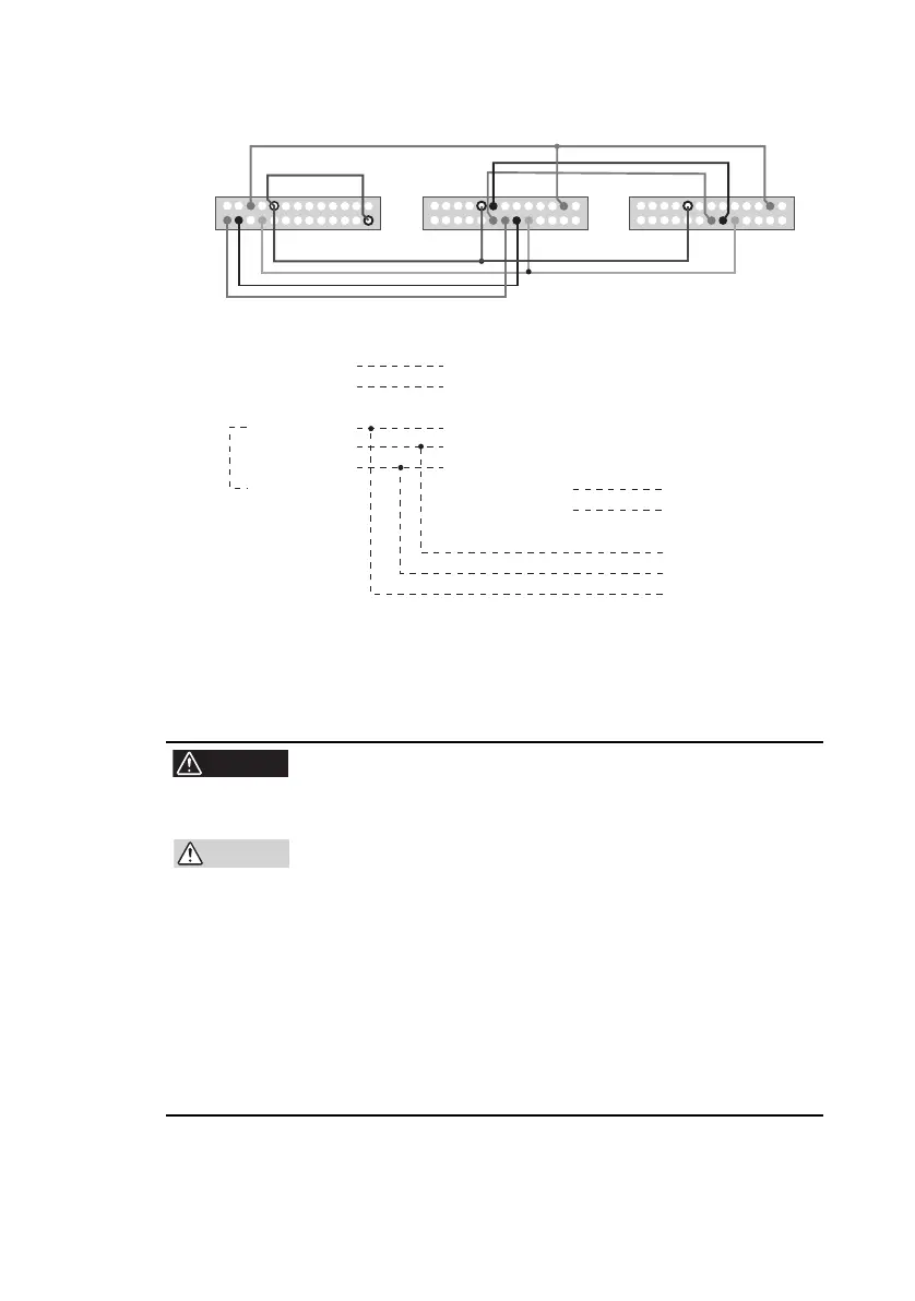
Fig.5-6 Connection for parallel operation
5.2.3 Load Connection for Parallel Operation
When you are done with the connection, be sure to
attach the output terminal cover to prevent the possi-
bility of electric shock.
When connecting the output terminal to the chassis
terminal, be sure that the output terminal of the same
polari
ty (+ or -) for each unit is connected to the chas-
sis terminal. If you connect the output terminal of dif-
ferent polarities for each unit, the output is short-
circuit
ed
through the GND cable of the AC power
cord. This will result in failure to obtain proper outputs
and will burn the cable connected to the chassis.
Take measures to securely connect the load cable to
the terminals such as by using crimp terminals.
J1
2
26 24
17
21
17 17
20
Master unit
J1
13
1416 12
10
Slave unit1
J1
13
14
15
12
10
Slave unit2
Master unit
PRL OUT
+
24
PRL OUT
26
[PRL COMP OUT]
STATUS COM 17
ALM STATUS 20
OUTON STATUS 21
D COM 2
Slave unit1
Slave unit2
12 PRL IN
+
14 PRL IN
[PRL COMP IN]
17 STATUS COM
10 SHUT DOWN
3 OUT ON/OFF CON
15 NEXT PRL OUT
+
16 NEXT PRL OUT
[NEXT PRL COMP OUT]
12 PRL IN
+
14 PRL IN
[PRL COMP IN]
10 SHUT DOWN
3 OUT ON/OFF CON
17 STATUS COM
*
[ ] in case of 160 V, 320 V and 500 V models.
WARNING
CAUTION

Table of Contents

Other manuals for Kikusui PAS 10-35

Related product manuals