EasyManua.ls Logo

Laser Mech FiberMINI 2.0 - 2 Mechanical Installation; Mounting; Plumbing

Default Icon
72 pages
Print Icon
To Next Page IconTo Next Page
To Next Page IconTo Next Page
To Previous Page IconTo Previous Page
To Previous Page IconTo Previous Page
Loading...
PLMNL0243 REV. A, Effective Date: 03/24/16 2 FiberMINI ™ 2.0 Operation Manual
2 Mechanical Installation
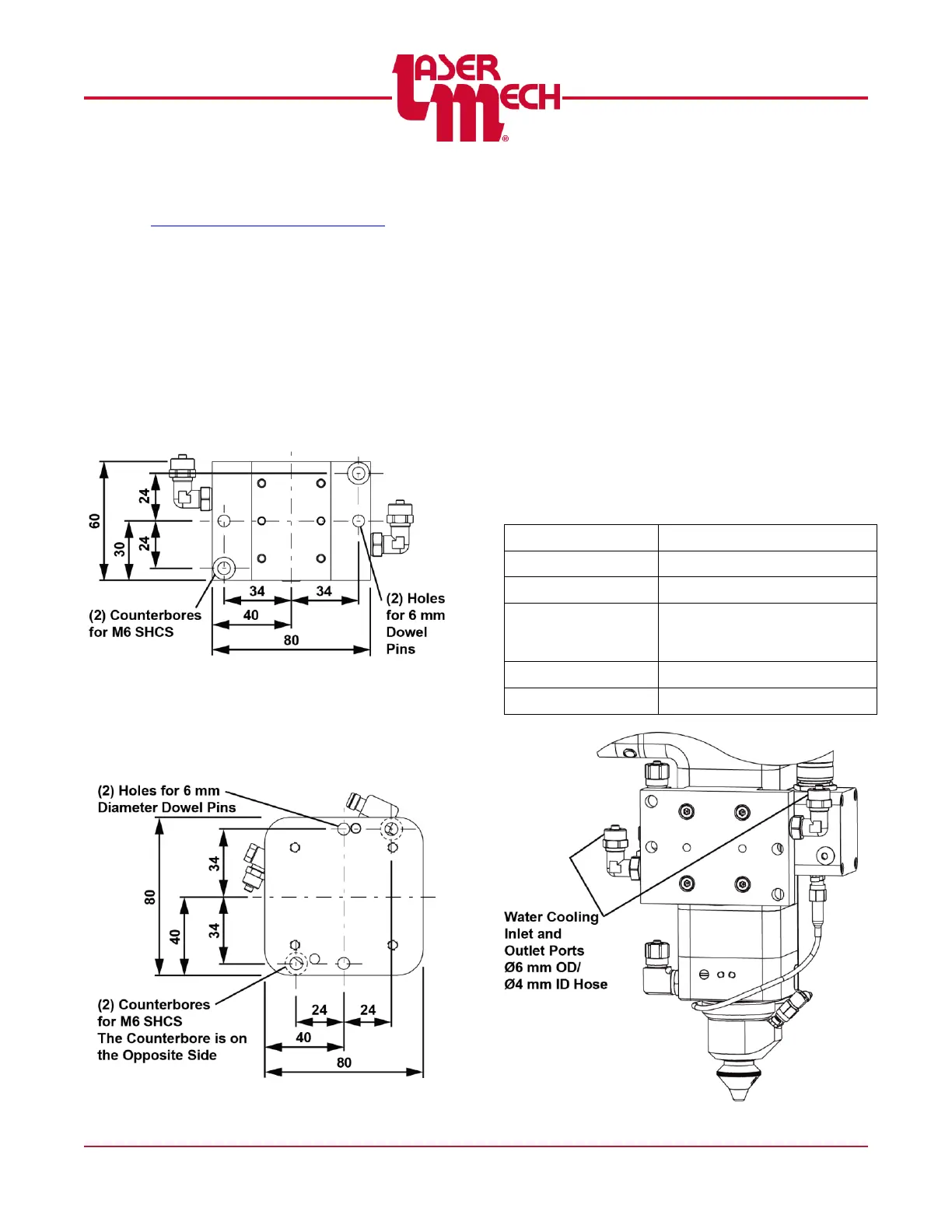
See Appendix E Service Dimensions for
helpful assembly dimensions and notes.
2.1 Mounting
FiberMINI
®
2.0 processing heads have
integrated mounting holes in the adapter
plate. Two mounting styles are available.
Without Crash Protection
Figure 2 illustrates the hole pattern in
PLADP0271 used for mounting the head.
Figure 2
With Crash Protection
Figure 3 illustrates the hole pattern in
PLCPD0089 used for mounting the head.
Figure 3
2.2 Plumbing
Water Cooling
FiberMINI2.0 processing heads are
equipped with a water-cooling circuit.
It is recommended that power levels
greater than 1kW use water cooling.
Power level should never exceed
4kW.
See Figure 4 for location and hose
size. See the table below for
recommended specifications.
The cooling circuit is designed to be
operated on either a closed-looped
cooling system or facility tap water as
long as the requirements in the table
below are met.
Minimum Flow Rate
1.8 liters/minute
Inlet Pressure
1.7 to 5.2 Bar (24.7 to 75.4 psi)
Inlet Temperature
≥room temperature / >dew point
Hardness
(Equivalent to
CaCO
3
)
<250mg/liter
pH
6 to 8
Particulate Size
<200 microns in diameter
Figure 4

Table of Contents