EasyManua.ls Logo

Liebert Hisp - Page 77

Liebert Hisp
94 pages
Print Icon
To Next Page IconTo Next Page
To Next Page IconTo Next Page
To Previous Page IconTo Previous Page
To Previous Page IconTo Previous Page
Loading...
2
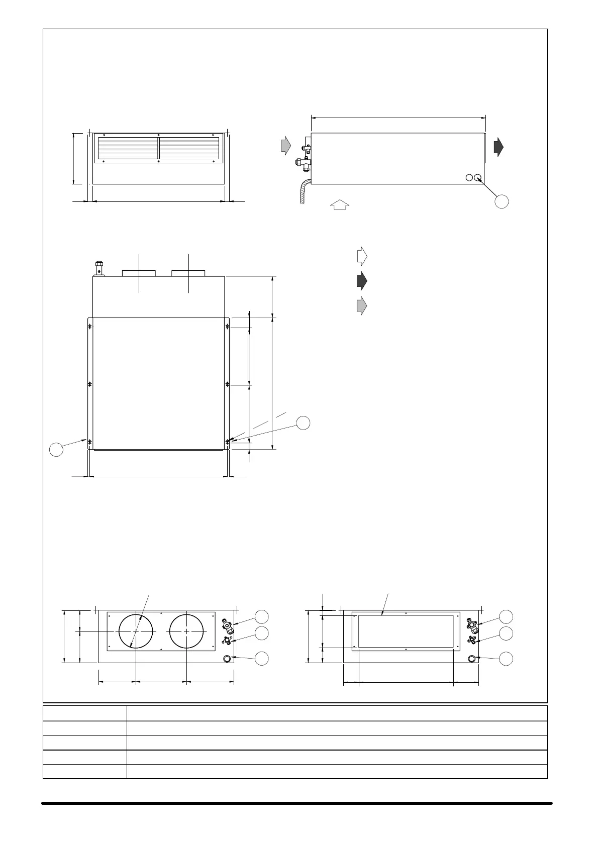
F R O N T V I E W --- V I S T A F R O N T A L E
REAR VIEW --- VISTA POSTERIORE
conditioned air --- aria trattata
inlet air return --- ripresa aria interna
Fig. 1b --- Evaporator version with freecooling SE 05---06
Unità evaporante versione con freecooling SE 05---06
N . 6 H O L E S --- F O R I 4 8
SIDE VIEW --- VISTA LATERALE
TOP VIEW --- VISTA DALL’ALTO
freecooling air --- aria di freecooling
1050
80029 29
834 1212
250800
350 6035040
310
Circular ducts version --- Versione con collari circolari
90 560 150
220 300 280
310
185 125
N.2 COLLARS 4 200 HE IGHT 35 mm
N.2 COLLARI 4 200 ALTEZZA 35 mm
COLLAR 190 X 560 HEIGHT 35 mm
COLLARE 190 X 560 ALTEZZA 35 mm
310
90 190 30
REAR VIEW --- VISTA POSTERIORE
Rectangular duct version --- Versione con collare rettangolare
E
S
I
U
S
I
U
E
E
POS. Description --- Descrizioni
E Electrical connections --- Collegamenti elettrici
S Condensate drain --- Scarico condensa
U Refrigerant outlet --- Uscita refrigerante
I Refrigerant inlet --- Ing r esso refr igerante

Table of Contents

Related product manuals