EasyManua.ls Logo

Mannesmann Rexroth DKR02 - Page 45

Mannesmann Rexroth DKR02
112 pages
Print Icon
To Next Page IconTo Next Page
To Next Page IconTo Next Page
To Previous Page IconTo Previous Page
To Previous Page IconTo Previous Page
Loading...
DKR Drive Controllers Planning the cabinet 5-13
DOK-DIAX03-DKR********-PR02-EN-P
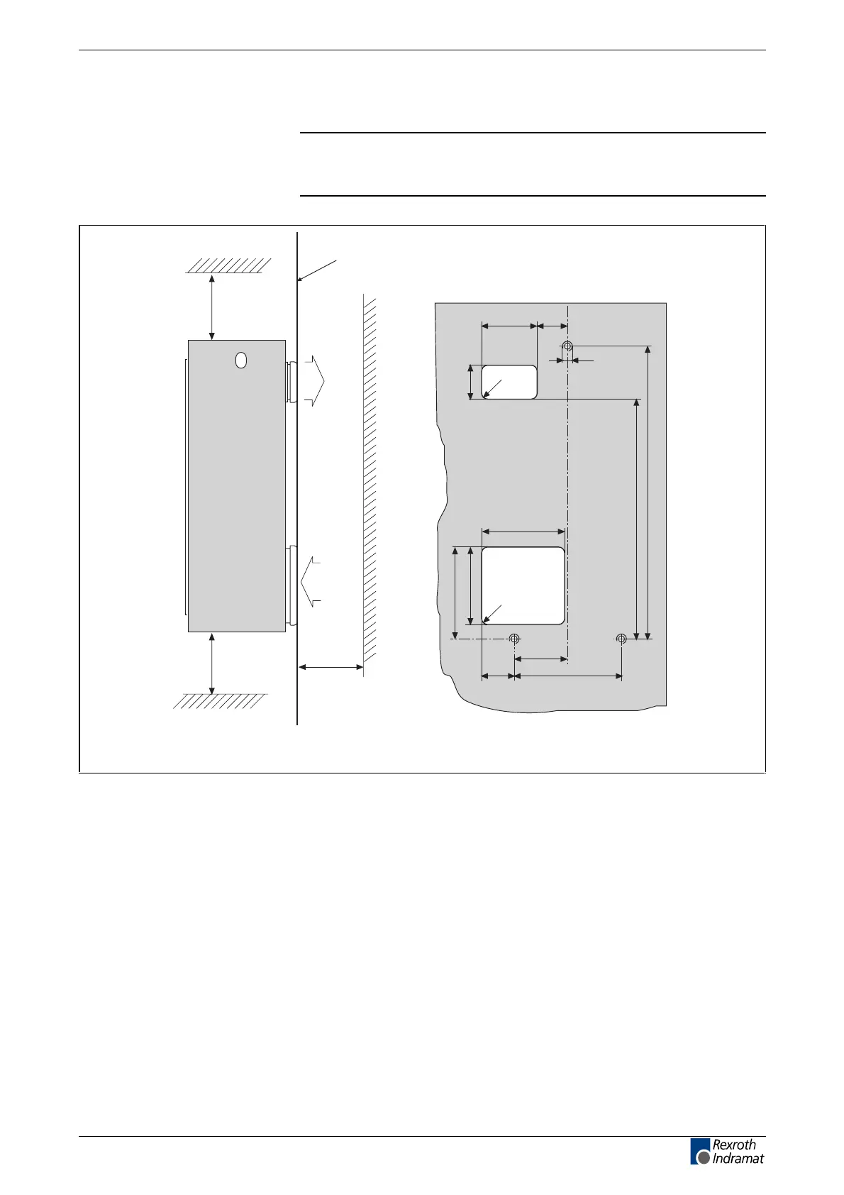
Distances, drill diagram and vents
Note: The vents in the back wall of the cabinet or mounting panel
are only required if the drive is cooled with air from outside the
unit.
zMALKDKR3
115 ±0,5 39
M8
68±0,
5
R
10
559
668 -1
176 ±0,5
157 ±0,5
185
210 ±0,5
110
69
R
10
min.
80 mm
min. 80
air outlet
air inlet
min.
80 mm
M8M8
Control enclosure rear wall
or mounting panel
Looking from outside of control enclosure onto rear wall or mounting panel.
All dimensions in mm.
Fig. 5-12: Distances, drill diagram and vents for DKR03
LSA Control S.L. www.lsa-control.com comercial@lsa-control.com (+34) 960 62 43 01

Table of Contents

Related product manuals