EasyManua.ls Logo

Mannesmann Rexroth DKR02 - Dkr02

Mannesmann Rexroth DKR02
112 pages
Print Icon
To Next Page IconTo Next Page
To Next Page IconTo Next Page
To Previous Page IconTo Previous Page
To Previous Page IconTo Previous Page
Loading...
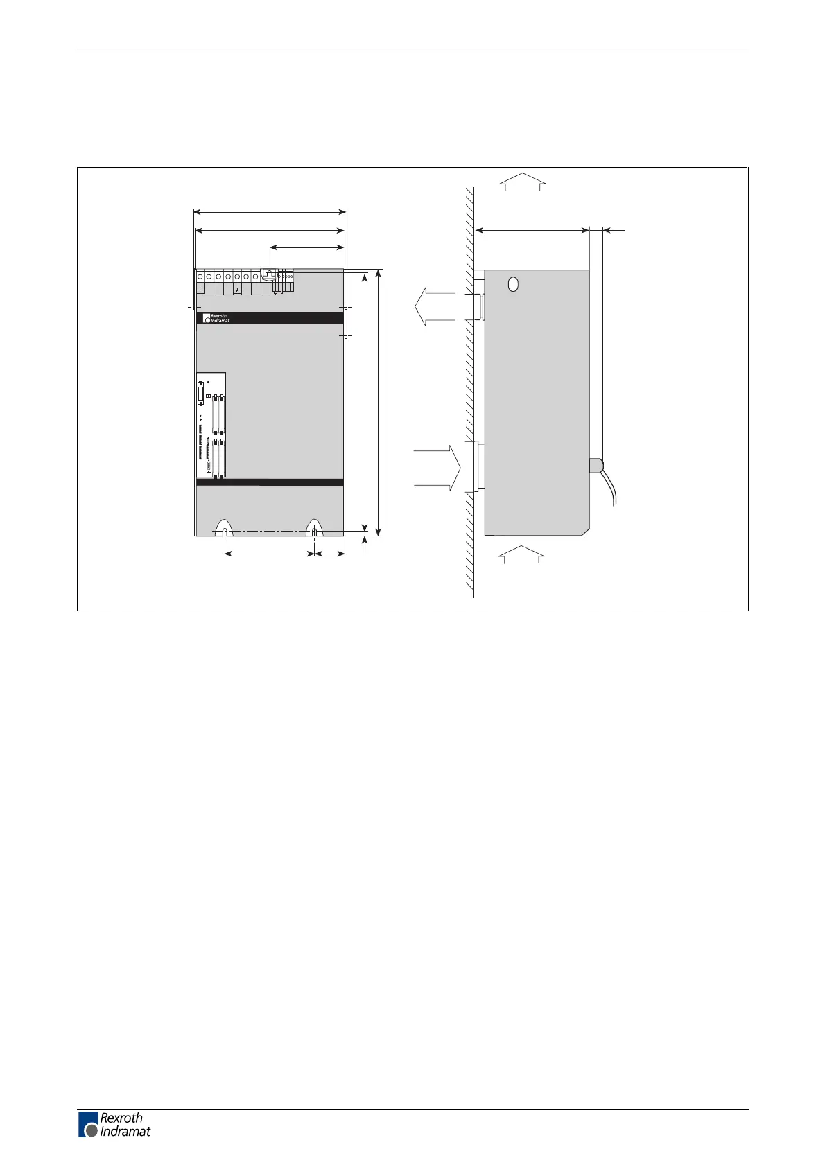
5-10 Planning the cabinet DKR Drive Controllers
DOK-DIAX03-DKR********-PR02-EN-P
DKR02
Unit dimensions
air outlet
(as delivered)
air inlet
(as delivered)
290
MBDKR2
air inlet
(option)
air outlet
(option)
DIAX03 DKR02
430
1000
H1
X4
X2
U5
U2
S2
U4
U1 U3
X9
1
6
1
7
X8
H2
S1
X3
X7
1
10
1
11
X3
Netz/Mains
L3
L2L1
Motor
A3A1 A2
220 V
Steuer-
spannung
Aux.
Voltage
B2
B1
NL
L+
L-
270 80
10
215 ± 0,5
976
440
all dimensions in mm
max. 55
Fig. 5-9: Unit dimensions DKR02
LSA Control S.L. www.lsa-control.com comercial@lsa-control.com (+34) 960 62 43 01

Table of Contents

Related product manuals