EasyManua.ls Logo

Mannesmann Rexroth DKR02 - Dkr04

Mannesmann Rexroth DKR02
112 pages
Print Icon
To Next Page IconTo Next Page
To Next Page IconTo Next Page
To Previous Page IconTo Previous Page
To Previous Page IconTo Previous Page
Loading...
5-14 Planning the cabinet DKR Drive Controllers
DOK-DIAX03-DKR********-PR02-EN-P
DKR04
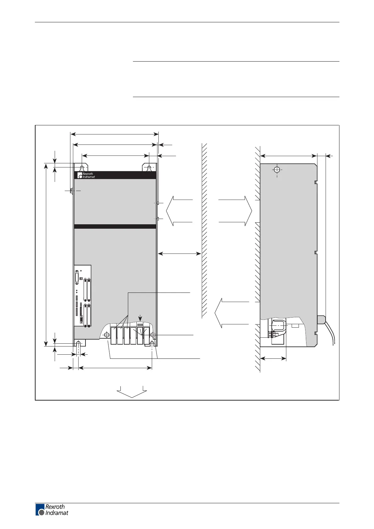
Note: If the cooling method implementing outside air is used, and the
rear wall or mounting panel are "thin", then it is recommended
to mount with frame M1-RAC4. This additional frame helps to
stabilize the mounting surface.
Unit dimensions
MBDKR4
DIAX03 DKR04
571
560
460
50
4
17
1080
13
500
30
12 for
M10
mains
connection
screw M12
motor power
connection
screw M12
150
315
grounding bolts
screw M12
H1
X4
X2
U5
U2
S2
U4
U1 U3
X6
X9
1
6
1
7
X8
H2
S1
X3
X7
1
10
1
11
X3
air outlet
(as delivered)
air inlet
(as delivered)
air outlet
(option)
air outlet
(option)
X6
min. 80 mm
if cooling with
air from inside
control encl.
max.
55
Fig. 5-13: Unit dimensions DKR04
LSA Control S.L. www.lsa-control.com comercial@lsa-control.com (+34) 960 62 43 01

Table of Contents

Related product manuals