EasyManua.ls Logo

Mannesmann Rexroth DKR02 - Dkr03

Mannesmann Rexroth DKR02
112 pages
Print Icon
To Next Page IconTo Next Page
To Next Page IconTo Next Page
To Previous Page IconTo Previous Page
To Previous Page IconTo Previous Page
Loading...
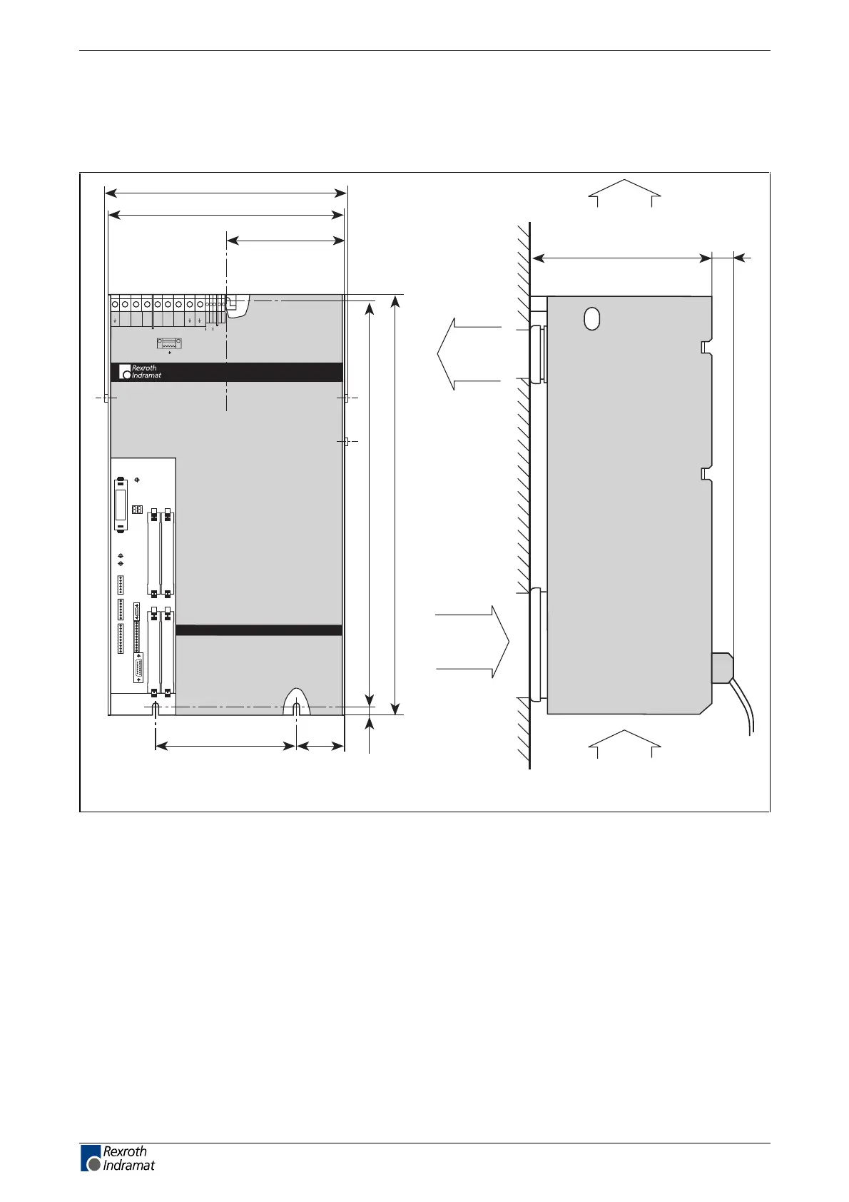
5-12 Planning the cabinet DKR Drive Controllers
DOK-DIAX03-DKR********-PR02-EN-P
DKR03
Unit dimensions
DIAX03 DKR 03
190 ± 0,5
380
air outlet
(as delivered)
air inlet
(as delivered)
210 ± 0,5
80
668
690
10
310
MBDKR3
H1
X4
X2
U5
U3
S2
U4
U1 U2
X9
1
6
1
7
X8
H2
S1
X3
X7
1
10
1
11
X3
air inlet
(option)
air outlet
(option)
Netz/Mains
L3
L2L1
Motor
A3A1 A2
B2B1
220 V
Steuerspannun
g
Aux.
Voltage
NLK
X5
X10
TM+
TM-
BR
0VB
X6
390
all dimensions in mm
max.
55
Fig. 5-11: Unit dimensions DKR03
LSA Control S.L. www.lsa-control.com comercial@lsa-control.com (+34) 960 62 43 01

Table of Contents

Related product manuals