EasyManua.ls Logo

Mannesmann Rexroth DKR02 - Page 69

Mannesmann Rexroth DKR02
112 pages
Print Icon
To Next Page IconTo Next Page
To Next Page IconTo Next Page
To Previous Page IconTo Previous Page
To Previous Page IconTo Previous Page
Loading...
DKR Drive Controllers Planning the electrical connections 6-15
DOK-DIAX03-DKR********-PR02-EN-P
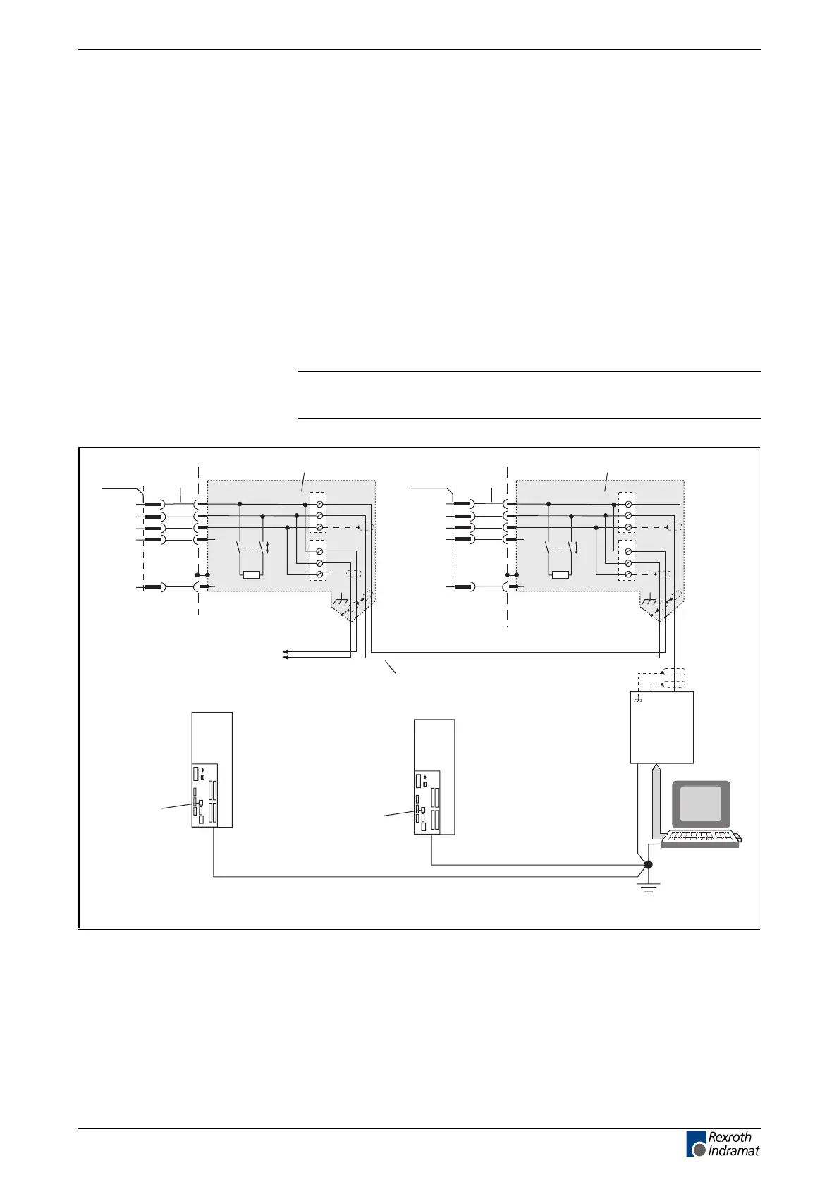
RS-485 interface
The RS-485 interface enables:
the implementation of a serial bus with up to 31 participants connected
via a two-wire line (half duplex mode), i. e., it can be used to start up
several DKCs with DriveTop without having to plug into a different
socket of the interface cable,
a transmission length of up to 500 meters,
transmission rates of 9600/19200 baud and
the implementation of central PC-supported visualization unit.
As a matter of principle, there are two solutions for operation with RS-485:
RS-232/RS-485 converter between PC and drives or
RS-485 plug-in card in PC.
Note: Please contact your PC supplier to find the solution for your
application.
X2
4
RS485+
5
RS485-
7
SGND
12
+5V
1
2
3
1
2
3
X1
X2
Axis 1
X2
4
5
7
12
1
2
3
1
2
3
X1
X2
PC
1)
RS 485
1)
2)2)
3) 3)
Aprs485.fh7
A B
0V
150
150
RS-232/RS-485 converter or
PC plug-in card
INS0644
INK0572
to further
devices
GND
IKB003
Axis 2
RS485+
RS485-
SGND
+5V
GND
10 10
X2
INS0644
IKB003
4
5
7
12
10
4
5
7
12
10
X2
1): Connector outer screen to ground potential (strain relief of metallic
connector case) on PC side and on device.
2): Connection of device ground with the connector case with the fixation
screws of the connector.
3): If the drive controller is fitted as the geometrically last participant of a
RS485 bus, activate the bus termination.
Fig. 6-16: Example on how to connect an RS-485 interface
LSA Control S.L. www.lsa-control.com comercial@lsa-control.com (+34) 960 62 43 01

Table of Contents