EasyManua.ls Logo

Master Image MI-WAVE3D - Page 69

Master Image MI-WAVE3D
70 pages
Print Icon
To Next Page IconTo Next Page
To Next Page IconTo Next Page
To Previous Page IconTo Previous Page
To Previous Page IconTo Previous Page
Loading...
Installation & Operation Manual | MI-WAVE3D
© MASTERIMAGE 3D, Inc.
69
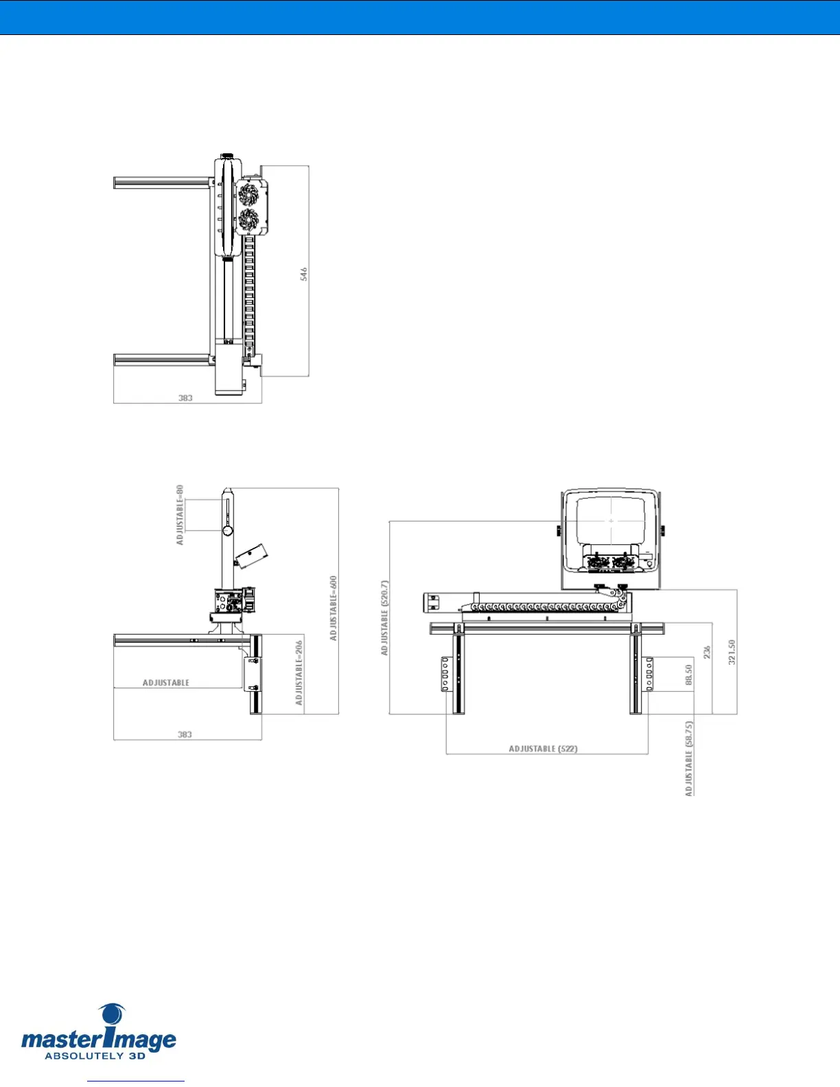
Installation Example Using Mounting Frame Assembly for
Long Projector Lens

Table of Contents