EasyManua.ls Logo

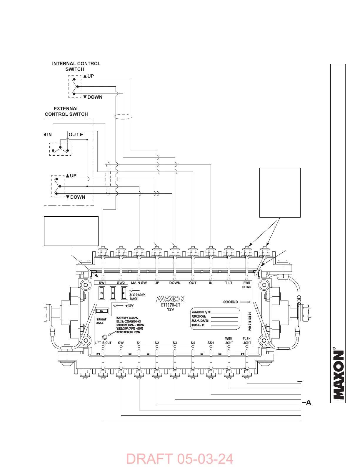
Maxon GPSLR Series - Electrical Schematic, 12 V, Gravity Down, with Max Ecu

Maxon GPSLR Series
84 pages
Print Icon
To Next Page IconTo Next Page
To Next Page IconTo Next Page
To Previous Page IconTo Previous Page
To Previous Page IconTo Previous Page
Loading...
11921 Slauson Ave. Santa Fe Springs, CA. 90670 (800) 227-4116 FAX (888) 771-7713
74
FIG. 74-1
ELECTRICAL SCHEMATIC, 12V, GRAVITY DOWN, WITH MAX ECU
NOTE:
RED LED WILL
LIGHT FOR MAIN
SW, SW1, OR
SW2 IF FUSE IS BLOWN.
NOTE:
BOTH WIRES
FROM SWITCH
MAY BE CON-
NECTED TO
EITHER TERMI-
NAL FOR PD ON
DEMAND OPERA-
TION.
GRAVITY ON
(UNMARKED)
SYSTEM DIAGRAMS - Continued
DRAFT 05-03-24

Other manuals for Maxon GPSLR Series

Related product manuals