EasyManua.ls Logo

Maxon TE-15 - Step 7 - Install Control Switch

Maxon TE-15
84 pages
Print Icon
To Next Page IconTo Next Page
To Next Page IconTo Next Page
To Previous Page IconTo Previous Page
To Previous Page IconTo Previous Page
Loading...
11921 Slauson Ave. Santa Fe Springs, CA. 90670 (800) 227-4116 FAX (888) 771-7713
45
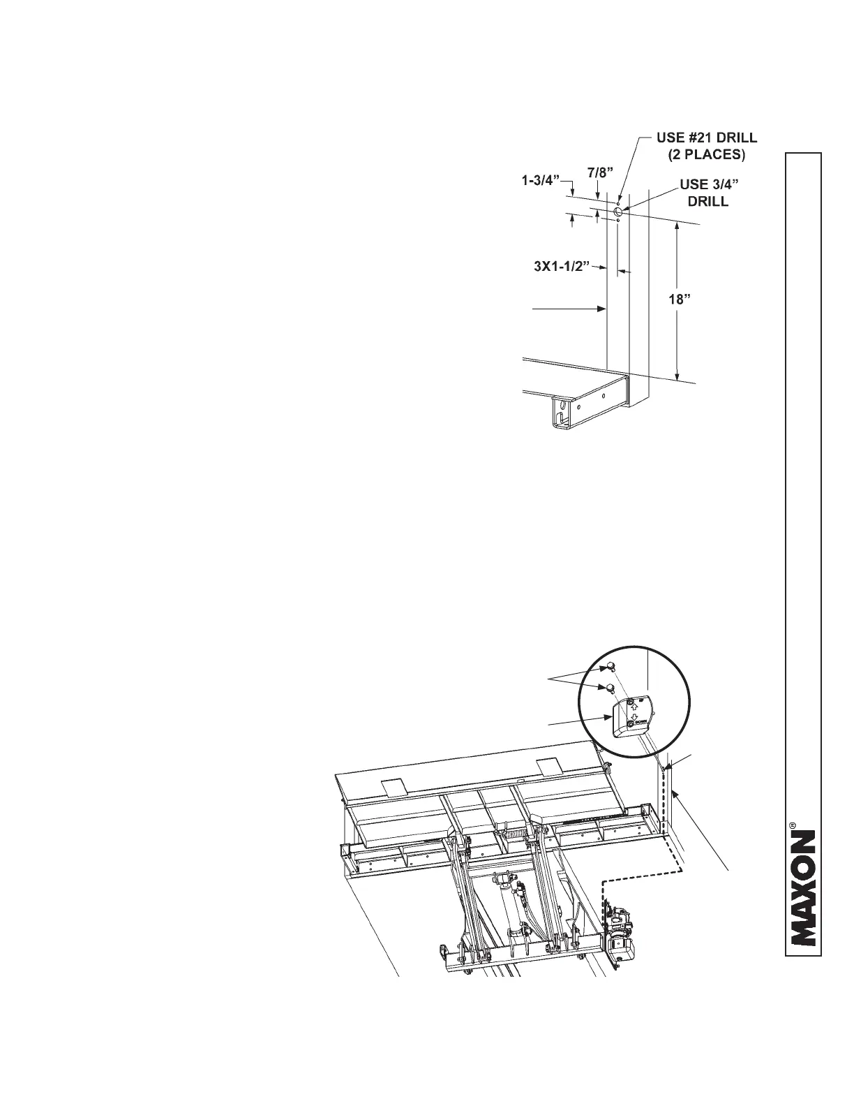
STEP 7 - INSTALL CONTROL SWITCH
DRILLING MOUNTING HOLES
FIG. 45-1
1. Measure, mark and drill one 3/4“ hole and two
#21–size holes in the vertical post on curb side
of vehicle body as shown in FIG. 45-1.
VEHICLE BODY
VERTICAL POST
(CURB SIDE)
ROUTING CONTROL SWITCH WIRING
FIG. 45-2
2. Insert control switch wiring (parts
box) into the 3/4” hole on the
corner post, down the corner post,
and under the vehicle body to the
pump assembly.
(See dashed line - FIG. 45-2.)
3. Push control switch and cable
back into the 3/4” hole in the verti-
cal post until control switch touch-
es the post (FIG. 45-2). Attach
control switch to vertical post with
2 self-tapping screws (parts box)
(FIG. 45-2).
4. If necessary, use
clamps and self-tapping
screws (parts box) to
secure switch cable to
vehicle under-body and
frame (FIG. 45-2).
VEHICLE BODY
VERTICAL
POST
CONTROL SWITCH
#10-24 X 1-1/2” LG.
SELF-TAPPING
SCREWS
3/4” HOLE

Table of Contents

Other manuals for Maxon TE-15

Related product manuals