EasyManua.ls Logo

MR MESSKO MTRAB - Device Dimension Variations

MR MESSKO MTRAB
124 pages
Print Icon
To Next Page IconTo Next Page
To Next Page IconTo Next Page
To Previous Page IconTo Previous Page
To Previous Page IconTo Previous Page
Loading...
DATE
DOCUMENT NO.
CHANGE NO.
NAME
SCALE
HUBERTHO17.12.2018
RAEDLINGER12.12.2018
SED 6356077 000 00
1:4
1090594
03.01.2019 KLEYN
STAND.
DFTR.
CHKD.
!
1 1101213140M
/
! !!
! !
!!
DIMENSION
IN mm
EXCEPT AS
NOTED
SHEET
MATERIAL NUMBER
SERIAL NUMBER
© MASCHINENFABRIK REINHAUSEN GMBH 2018
THE REPRODUCTION, DISTRIBUTION AND UTILIZATION OF THIS DOCUMENT AS WELL AS THE COMMUNICATION OF ITS CONTENTS TO OTHERS WITHOUT EXPRESS AUTHORIZATION IS
PROHIBITED. OFFENDERS WILL BE HELD LIABLE FOR THE PAYMENT OF DAMAGES. ALL RIGHTS RESERVED IN THE EVENT OF THE GRANT OF A PATENT, UTILITY MODEL OR DESIGN.
A3
L
H
Z
Z
1:1
M12
10
.39"
120
4.72"
222,5
8.76"
190
7.48"
171
6.73"
295,5
11.63"
240
9.45"
100
3.94"
146
5.75"O
M8 x 20
10,5
.41"
47
1.85"
optional
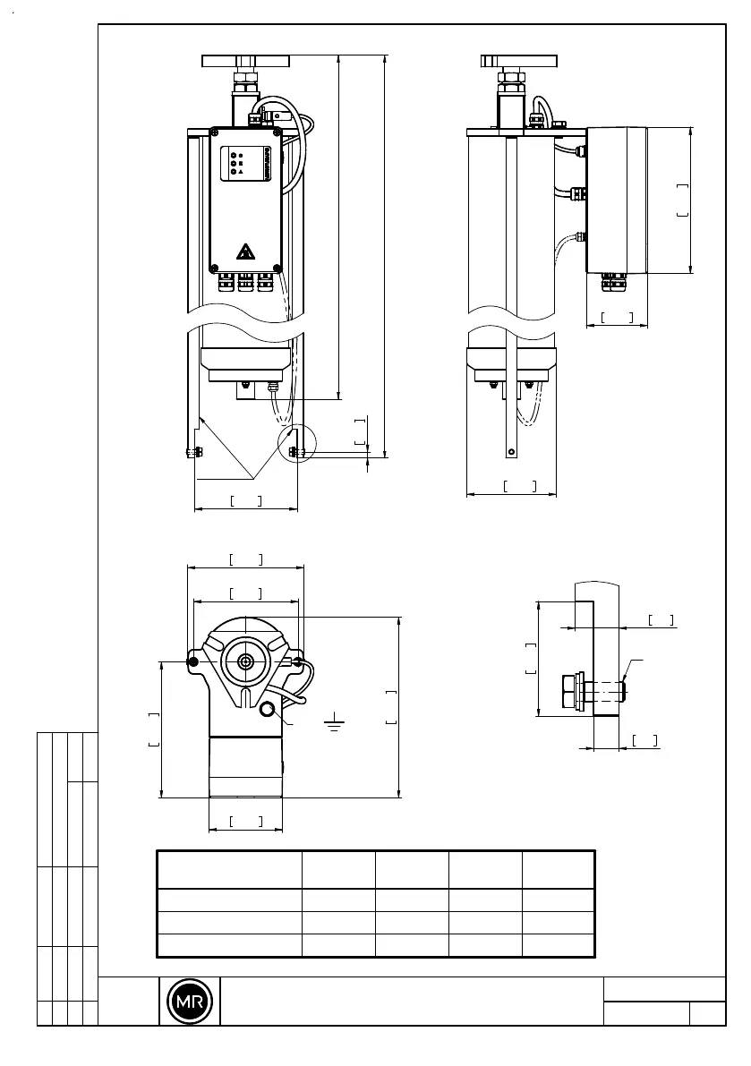
MTRAB-Abmessung mit Flansch /
MTRAB DIMENSIONS WITH FLANGE
DB100
L
DB100
H
DB200
L
DB200
H
DIN-Flansch / DIN FLANGE 454,5 [17.89"] 634 [24.96"] 684,5 [27.11"] 781 [30.75"]
RM-Flansch / RM FLANGE 458,5 [18.05"] 638 [25.12"] - -
1/2"-Schrauben / 1/2" SCREWS 454,5 [17.89"] 634 [24.96"] 684,5 [27.11"] 781 [30.75"]
MTRAB® DB100/DB200 mit seitlicher Zusatzbefestigung /
Maßzeichnung / DIMENSION DRAWING
MTRAB® DB100/DB200 WITH ADDITIONAL FASTENING POINTS
18
.71"O
168
6.61"

Table of Contents

Related product manuals