EasyManua.ls Logo

Nortec GS - Page 75

Nortec GS
84 pages
Print Icon
To Next Page IconTo Next Page
To Next Page IconTo Next Page
To Previous Page IconTo Previous Page
To Previous Page IconTo Previous Page
Loading...
69Product Specications
Nortec GS
2583703_EN_1608
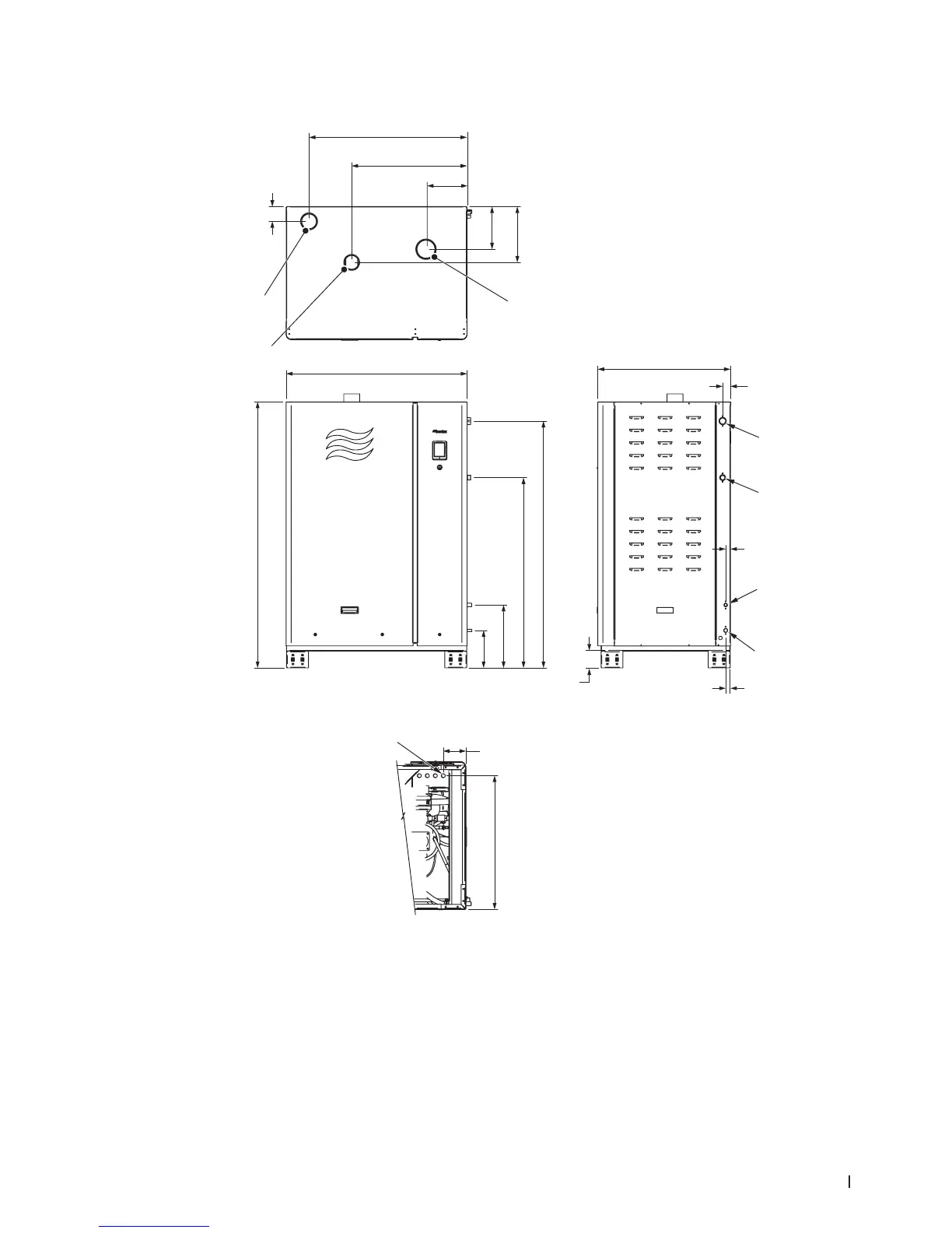
Figure 37:
Exhaust Outlet*
100 mm - GS 200/300-CS/NX
ø
Steam Outlet
3 in (75 mm)
ø
Gas Inlet
1 in NPT
Air Inlet
4 in (100 mm)
ø
Power In
3/4 in (19 mm)
ø
Condensate Outlet
(CS/NX only)
1/2 in (13 mm)
ø
Drain Outlet
7/8 in (23 mm)
ø
37.8
(960)
3.1
(79)
24.1
(612)
8.9
(226)
11.7
(297)
8.6
(218)
Water Inlet**
3/4 in BSPP
55.5
(1410)
51.5
(1309)
39.7
(1009)
7.8
(199)
6.1
(155)
25.1
(638)
4.3
(108)
27.7
(705)
1.6
(42)
1.0
(25)
3.5
(89)
33.0
(839)
0.8
(20)
* Metric to imperial size adaptor supplied with unit
** BSPP to NPT adaptor supplied with unit
Nortec GS 200/300

Table of Contents

Related product manuals