EasyManua.ls Logo

OMA 511 - CHAPTER 2 TECHNICAL SPECIFICATIONS; CAPACITY; MAXIMUM DIMENSIONS OF VEHICLES TO BE LIFTED; SAFETY DEVICES

Default Icon
50 pages
Print Icon
To Next Page IconTo Next Page
To Next Page IconTo Next Page
To Previous Page IconTo Previous Page
To Previous Page IconTo Previous Page
Loading...
Note:Theoildeliverypipemaybeunderpressure.
SICUREZZE
Lesicurezzesonocostituiteda:
·
Unsistemadibloccaggiobraccichenonpermettonomovimenti
involontarideibraccidelponte.
·
4salvapiedisuibraccicheevitanoloschiacciamentodeipiediin
fasedidiscesa.
·
Unmicrointerruttorecheintervieneincasodirotturaoallunga
-
mentodellafuneditrasmissione.
·
Imartellettidisicurezzasuicarrellicheintervengonoinfasedi
stazionamentodelcaricoinquotaedincasodirotturadellafune
portante.
·
Unfinecorsadiestremitàcolonnachenonpermetteextracorsa
delcilindroedeicarrelli.
·
Unavalvoladibloccoincasodirotturadelsistemaidraulico.
·
Lesicurezzeelettrichegeneriche.
Questesicurezzesarannosviluppateinmaggiordettaglioneise
-
guenticapitoli.
CAP.2 SPECIFICHETECNICHE
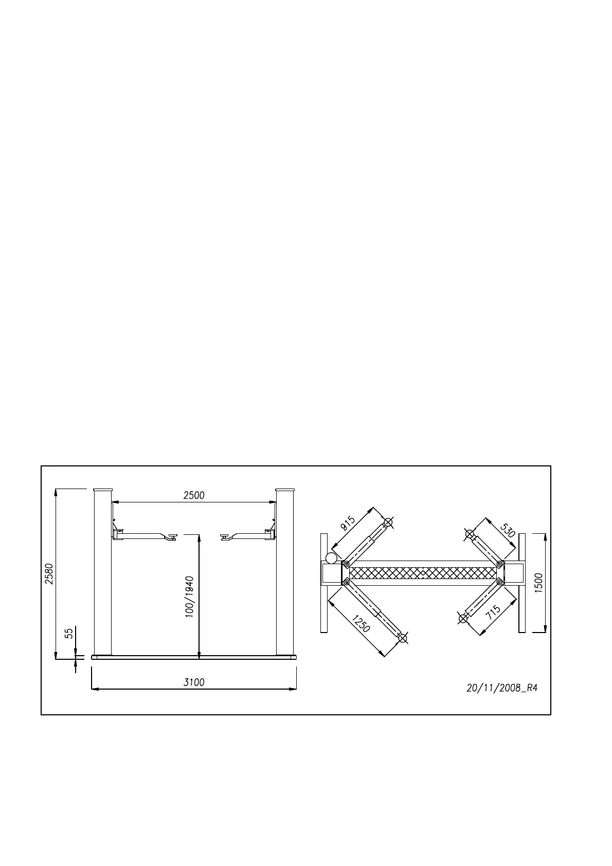
PORTATA: ................................................3000Kg(29400N)
Alt.max.sollevamentoauto ......................1940mm
Alt.min.supportisollevamento ................. 100mm
Larg.liberatracolonne .............................2470mm
Larg.totale ................................................3100mm
Larg.lateralebasamento...........................1500mm
Lung.massimabracciolungo ...................1250mm
Lung.minima............................................. 715mm
Lung.massimabracciocorto .................... 915mm
Lung.minima............................................. 530mm
Tempodisalita.......................................... 45sec
Tempodidiscesa ...................................... 45sec.
Pesototaledelsollevatore ........................circa630Kg
Rumorosità................................................â70dB(A)/1m
Temperaturadifunzionamento: ...............-10°C/+50°C
Pressionedilavoro....................................150bar
Ambientedilavoro:localechiuso.
Fig.9 Dimensioniedingombri
SAFETYDEVICES
Thesafetydevicesinclude:
·
Armlockingsystemthatpreventsaccidentalmovementsofthe
rackarms.
·
4footguardsonthearmsthatpreventfeetfrombeingsmashed
whilethevehicleisdescending;
·
Microswitchthattripswhenthetransmissioncablesbreaksor
stretches.
·
Safetywedgesonthecarriageswhichareactivatedwhenthe
loadispositionedatacertainheightoffthegroundandifthe
supportcablebreaks.
·
Apostendlimitswitchthatdoesnotallowthecylinderandthe
carriagestoexceedtheirtravellimits.
·
Lockvalvethattripsifthehydraulicsystemruptures.
·
Generalelectricsafetydevices.
Thesesafetydeviceswillbedescribedinfurtherdetailinthefol
-
lowingchapters.
CHAPTER.2 TECHNICAL
SPECIFICATIONS
CAPACITY: ...............................................3000Kg(29400N)
Carmax.liftingheight................................1940mm
Liftmin.standheight ................................. 100mm
Clearancebetweenposts..........................2470mm
Totalwidth.................................................3100mm
Basesidewidth .........................................1500mm
Longarmmaximumlength........................1250mm
Minimumlength......................................... 715mm
Shortarmmaximumlength ....................... 915mm
Minimumlength......................................... 530mm
Risetime ................................................... 45sec.
Descenttime ............................................. 45sec.
Totalliftweight ..........................................about630Kg
Noise .........................................................â70dB(A)/1m
Operatingtemperature: .............................-10°C/+50°C
Workingpressure ......................................150bar
Workenvironment:closedroom.
Fig.9 Dimensionsandoverallclearances
8

Table of Contents