EasyManua.ls Logo

Omron OMNUC G5 R88D-KT50F - Page 81

Omron OMNUC G5 R88D-KT50F
632 pages
Print Icon
To Next Page IconTo Next Page
To Next Page IconTo Next Page
To Previous Page IconTo Previous Page
To Previous Page IconTo Previous Page
Loading...
2-38
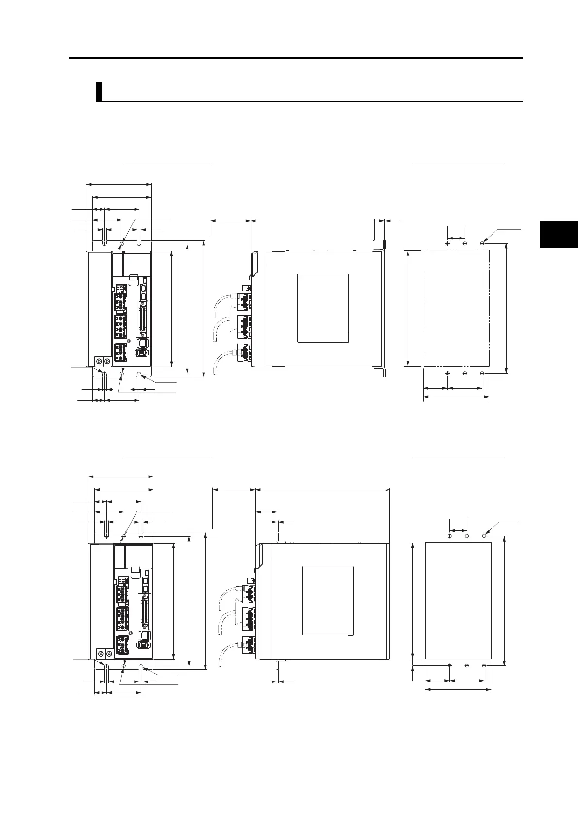
2-4 External and Mounting Dimensions
OMNUC G5-SERIES AC SERVOMOTOR AND SERVO DRIVE USER'S MANUAL
2
Standard Models and External Dimensions
3-phase 400 VAC: R88D-KT20F (2 kW)
Wall Mounting
External dimensions Mounting dimensions
Front Mounting (Using Front Mounting Brackets)
External dimensions Mounting dimensions
* Rectangular hole dimensions are reference values.
φ5.2
R2.6
R2.6
φ5.2
193.5 1.5
94
85
50
17.5
42.5
5.2
5.2
5.2 5.2
50
17.5
168
188
198
70
26.5
188
168
50
94
25
6-M4
Rectangular
hole
φ5.2
R2.6
R2.6
φ5.2
2.5
193.5
30.7
94
85
50
5.2
17.5
42.5
168
188
198
5.2
17.5
50
5.2
2.5
5.2
70
25
188
5027.5
6-M4
(176)*
(96)*
6

Table of Contents

Related product manuals