EasyManua.ls Logo

Omron OMNUC G5 R88D-KT50F - Page 82

Omron OMNUC G5 R88D-KT50F
632 pages
Print Icon
To Next Page IconTo Next Page
To Next Page IconTo Next Page
To Previous Page IconTo Previous Page
To Previous Page IconTo Previous Page
Loading...
2-39
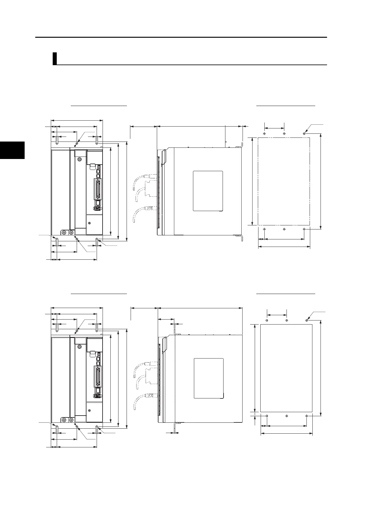
2-4 External and Mounting Dimensions
OMNUC G5-SERIES AC SERVOMOTOR AND SERVO DRIVE USER'S MANUAL
2
Standard Models and External Dimensions
3-phase 400 VAC: R88D-KT30F/-KT50F (3 to 5 kW)
Wall Mounting
External dimensions Mounting dimensions
Front Mounting (Using Front Mounting Brackets)
External dimensions Mounting dimensions
* Rectangular hole dimensions are reference values.
φ5.2
R2.6
φ5.2
R2.6
100
5.2
5.2
65
15
15
130
100
65
5.2 5.2
220
240
250
212
3
70
50
240
220
130
100
15
6-M4
Rectangular
hole
φ5.2
5.2
R2.6
φ5.2
R2.6
250
240
220
100
15
5.2 5.2
65
5.2
65
130
10015
40.7
2.5
212
2.5
70
50
240
(228)*
100
(132)*
16
6-M4
6

Table of Contents

Related product manuals