EasyManua.ls Logo

Omron OMNUC G5 R88D-KT50F - Page 83

Omron OMNUC G5 R88D-KT50F
632 pages
Print Icon
To Next Page IconTo Next Page
To Next Page IconTo Next Page
To Previous Page IconTo Previous Page
To Previous Page IconTo Previous Page
Loading...
2-40
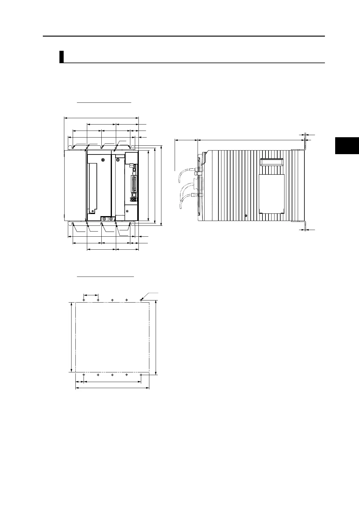
2-4 External and Mounting Dimensions
OMNUC G5-SERIES AC SERVOMOTOR AND SERVO DRIVE USER'S MANUAL
2
Standard Models and External Dimensions
3-phase 400 VAC: R88D-KT75F (7.5 kW)
Wall Mounting
External dimensions
Mounting dimensions
250
235
220
90
90
90
71
26
210 11
210
90
90
90
71
26
11
233
334
3.5
R2.6
R2.6
R2.6
φ5.2
φ5.2
φ5.2
φ5.2
R2.6 R2.6
R2.6
70
2.5
1
10-M4
235
45
220
27
180
233

Table of Contents

Related product manuals