EasyManua.ls Logo

Owandy RX - Dimensions

Owandy RX
106 pages
Print Icon
To Next Page IconTo Next Page
To Next Page IconTo Next Page
To Previous Page IconTo Previous Page
To Previous Page IconTo Previous Page
Loading...
SERVICE MANUAL
Technical data
(Rev. 1) Ow-RX
27
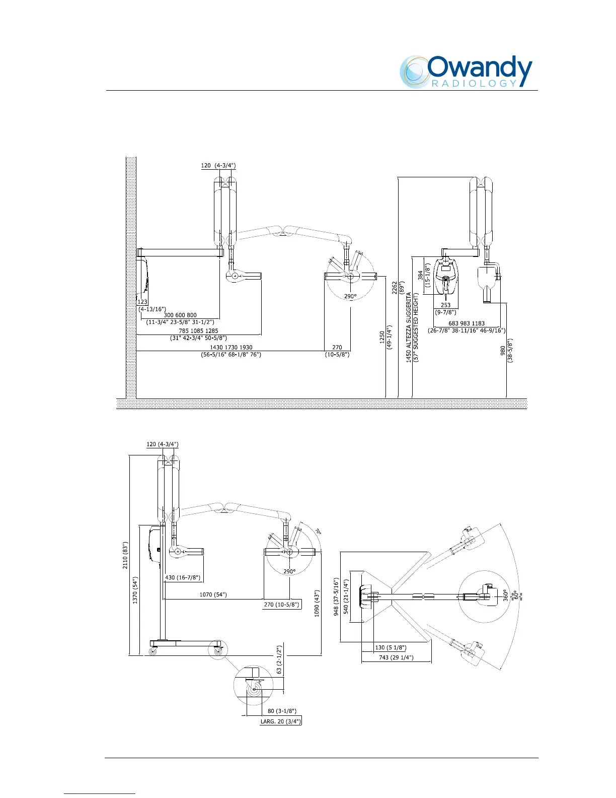
4.4 Dimensions
30 0 30
FRONT VIEW
Figure 4-1: Dimensions of the wall version
30 300
0
3
0
3
0
3
0
3
0
0
Figure 4-2: Dimensions of the mobile stand version

Table of Contents