EasyManua.ls Logo

Panasonic KX-TDA600

Panasonic KX-TDA600
338 pages
To Next Page IconTo Next Page
To Next Page IconTo Next Page
To Previous Page IconTo Previous Page
To Previous Page IconTo Previous Page
Loading...
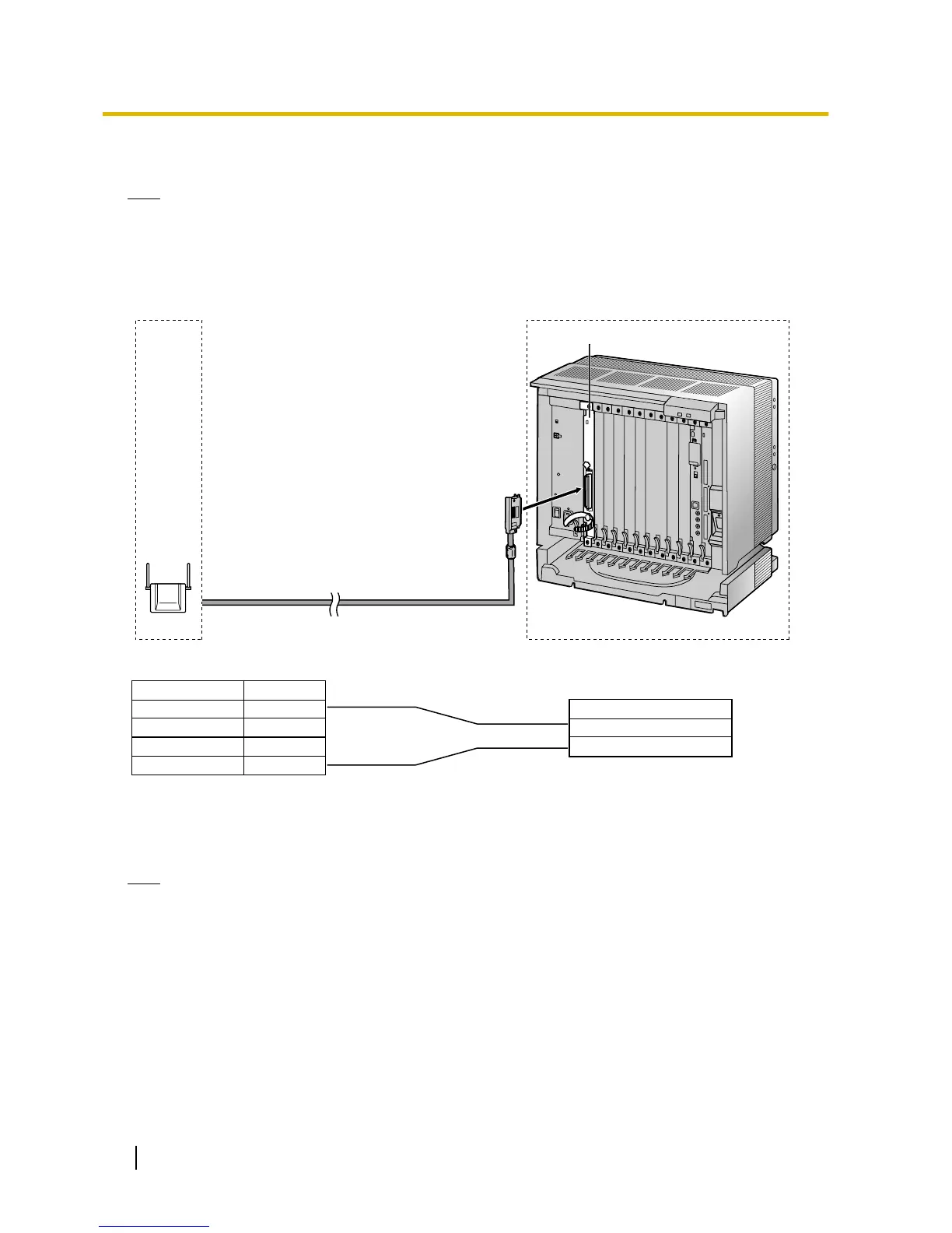
2.12.7 Connecting a Cell Station to the PBX
Note
When connecting both
KX-TDA0155 and KX-TDA0158 CSs to the same card, the KX-TDA0158 CSs must
be connected to lower-numbered pins on the card than the KX-TDA0155 CSs.
Refer to the following examples to connect a CS to the PBX.
KX-TDA0155
Accessories and User-supplied Items for the CS
Accessories (included): Screws ´ 2, Washers ´ 2
User-supplied (not included): RJ11 connector
Note
For details about
DHLC card or DLC card, refer to "2.7.2 DHLC8 Card (KX-TDA0170)", "2.7.3 DLC8 Card
(KX-TDA0171)", or "2.7.4 DLC16 Card (KX-TDA0172)".
282 Installation Manual
2.12.7 Connecting a Cell Station to the PBX

Table of Contents

Other manuals for Panasonic KX-TDA600

Related product manuals