EasyManua.ls Logo

Panasonic MCDDT3520 - Page 178

Panasonic MCDDT3520
232 pages
Print Icon
To Next Page IconTo Next Page
To Next Page IconTo Next Page
To Previous Page IconTo Previous Page
To Previous Page IconTo Previous Page
Loading...
178
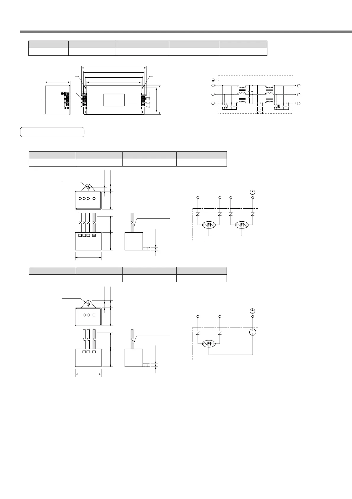
Surge Absorber
Provide a surge absorber for the primary side of noise filter.
<Remarks>
Take off the surge absorber when you execute a dielectric test to the machine or equipment, or it may
damage the surge absorber.
Conformity to EC Directives and UL Standards
Circuit diagram
Circuit diagram
1
ø4.2±0.2
41±1
UL-1015 AWG16
281
5.5±1
11±128.5±1
4.5
±0.5
200
+30
-
0
Option part No.
DV0P1450
3-phase 200V
Manufacturer's part No.
R . A .V-781BXZ-4
Manufacturer
Okaya Electric Ind.
Option part No.
DV0P4190
Single phase 100/200V
Manufacturer's part No.
R . A .V-781BWZ-4
Manufacturer
Okaya Electric Ind.
2 3
ø4.2±0.2
41±1
UL-1015 AWG16
281
5.5±1
11±128.5±1
4.5±0.5
200
+30
-0
1 2
(1)
(2)
(3)
(1)
(2)
Voltage specifications 
for driver
Voltage specifications 
for driver
Option part No.
DV0P3410
3-phase 200V
Applicable driver (frame)
F-frame
Manufacturer's part No.
3SUP-HL50-ER-6B
Manufacturer
Okaya Electric Ind.
Circuit diagram
IN OUT
286±3.0
150
2-ø5.5 x 7
2-ø5.5
6-6M
270
255±1.0
240
120
90±1.0
(18)(13)
Label
1
2
3
4
5
6
Voltage specifications 
for driver

Table of Contents

Other manuals for Panasonic MCDDT3520

Related product manuals