EasyManua.ls Logo

Panasonic SA-PT560E - Page 102

Panasonic SA-PT560E
159 pages
Print Icon
To Next Page IconTo Next Page
To Next Page IconTo Next Page
To Previous Page IconTo Previous Page
To Previous Page IconTo Previous Page
Loading...
A
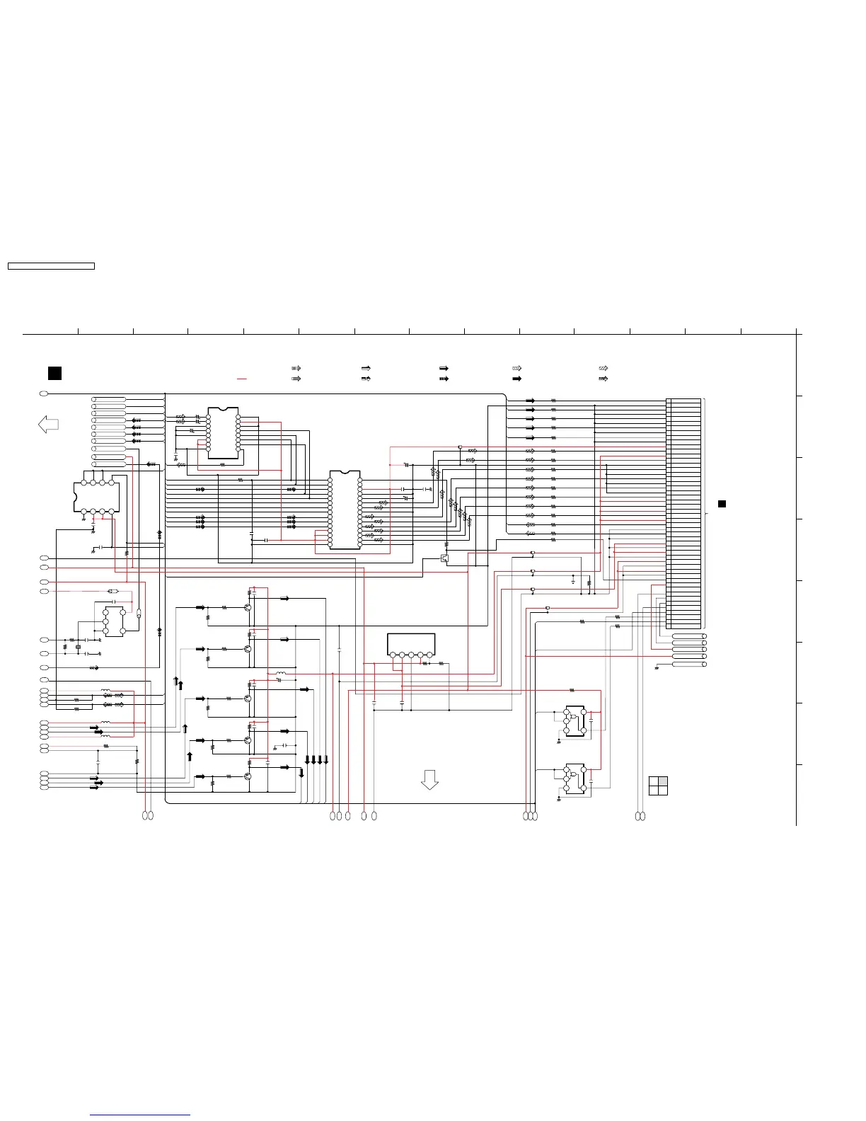
DVD MODULE (DV5) CIRCUIT
SCHEMATIC DIAGRAM - 2
TO DVD MODULE (DV5)
SECTION (4/4)
TO DVD MODULE (DV5)
SECTION (1/4)
B
TO
MAIN CIRCUIT
(CN2001)
IN SCHEMATIC
DIAGRAM - 8
: DVD AUDIO SIGNAL LINE
: DVD VIDEO SIGNAL LINE
: +B SIGNAL LINE : DVD HEAD SIGNAL LINE
: DVD RF SIGNAL LINE
: MOTOR DRIVE SIGNAL LINE
: CD HEAD SIGNAL LINE
: TRACKING ERROR SIGNAL LINE
: FOCUS ERROR SIGNAL LINE
: USB SIGNAL LINE
: MAIN SIGNAL LINE
15 16 17 18 19 20 21 22 23 24 25 26 27 28
A
B
D
E
F
H
G
C
IC8422
C0FBAK000026
98
7
6
11
10
LRCK
SDT0
MCLKVA
VD
DGND
5
4
3
2
1
16
15
14
13
12
PDN
R8404
AIN0
100
DIF
CKS0
CKS2
SCLKAGND
AINL
VCOM
CKS1
AINR
AINL
AINR
K8100
0
AOUT2
AOUT2
AUDIODIGITAL
AOUT0
AOUT0
AOUT1
AOUT1
3
1
2
4
5
C0JBAB000907
IC8701
INVERTER GATE
R8312
1K
R8311
2.4K
L8302
G1C100M00049
L8301
G1C100M00049
C8311
0.1
C8621
10P
G1C100M00049
L8303
OSC27M
H0J270500085
X8621
C8622
10P
R8621
1M
R8622
1K
DGND
DGND
FL8421 1
0LB8428
0LB8427
0LB8429
0LB8421
0LB8426
0LB8422
0LB8425
CB_PB_B
CR_PR_R
Y_PY_G
C
AINL
AINR
Y
0LB8304
0LB8303
0LB8301
0LB8302
0LB8305
0LB8431
0
LB8693
CPU-CMD
0
LB8691
0
LB8692
FL8104 0.1
0LB8424
0LB8423
0LB8430
FL8103
M+9V
M+9V
6
7
5
9
47
44
39
40
35
31
27
24
21
20
22
16
15
18
17
11
13
12
10
14
19
23
26
25
30
28
29
34
32
33
38
36
37
43
41
42
46
45
49
48
8
1
3
4
2
50
FP8101
C8423
6.3V33
C8424
0.1
6.3V220
C8421
0.1
1K
R8154
R8153
620
4213 5
+1.2V REGULATOR
IC8151
C0DBEHG00006
4.7
C8151
UNR521100L
QR8420
2.2K
R8420
7
8
6
5
4
14
12
10
9
11
13
3
2
1
30
29
28
27
26
25
24
23
22
21
20
19
18
17
AUDIO DAC
AUDIO DAC
C0FBBK000044
IC8421
C8152
1
C8330
L8330
G1C100M00049
100R8421
C8426
C8425
15P
0.1
CPU-CLK
CPU-STAT
0.1
C8695
3
1
2
4
5
0.1
C8320
0.1
C8340
C8691
0.1
3
1
2
4
5
AND GATE
C0JBAA000502
IC8691
AND GATE
C0JBAA000502
IC8695
LB8690
0
R8323 33
LB8702
J0JCC0000308
SRCK
LRCK
SRCK
LRCK
DMIXOUT
DMIXOUT
ADAC-CLK
ADAC-CLK
C8701
0.1
LB8701
J0JCC0000308
200
R8321
R8325
200
200
R8331
33R8336
Q8335
2SB1218ARL
33
R8333
R8327
33
0.1
C8428
C8431
C8432
C8433
16V10
16V10
16V10
C
Y
Y_PY_G
Q8321
2SB1218ARL
C8325
0.1
R8328
BUFFER
BUFFER
BUFFER
BUFFER
BUFFER
1K
Q8325
2SB1218ARL
RSTB
AOUT1
AOUT2
LRCK
DMIXOUT
STBDAC
AOUT0
SBT3
SBO3
R8324
1K
C8321
0.1
AMUTE
MUTING
R8334
1K
C8331
0.1
R8337
1K
CB_PB_B
Q8331
2SB1218ARL
C8335
0.1
R8335
200
R8341
200
33R8342
C8341
0.1
R8343
1K
Q8341
2SB1218ARL
CR_PR_R
10K
R9036
USB_OVER
C9006
0.1
C9008
220P
VBUS_EN
SRCK
ADAC-CLK
NSW+6V
OPEN_SW
DGND
DGND
DGND
D+5V
DGND
D+5V
D+2.5V
MGND
M+9V
A_LIN
D+2.5V
A_RIN
AUDIODIGITAL
SW
MGND
ZFLAG&AMUTE
M+9V
Y
VGND
VGND
CR/PR/R
VGND
ADAC5V
C
D+5V
MIX-R
FL
ADGND
FR
SL
SR
ADGND
ADGND
MIX-L
VGND
CNT
DOP_CPU-CLK
DOP_CPU-STAT
CECOUT
LDIN
DOP_CPU-CMD
INNER_SW
CECIN
SDTI1
LRCK
BICK
RSTB
SDTI2
CCLK
SDTI3
CDTI
DVDD
15
DVSS
DEM0
SDTI4
DIF1
CSN
MCLK
GND
VCC
ADJ
VCC
GND
GND
OUT
D
G
ND
D
G
ND
AGND
A+5V
2R5V
AVSS
VCOM
DZF2
AVDD
P/S
CTL
ROUT3
VCC
LOUT4
LOUT3
ROUT4
16
DEM
LOUT2
ROUT2
LOUT1
ROUT1
DZF1
D+5V
ADGND
HD
NSW+6V
HD
CECIN
HD
CEOUT
HD
HD
CB/PB/B
VGND
Y/PY/G
HD
HD
HD
NSW1R2V
HD
HD
HD
HD
HD
HD
HD
INA
VCC
NC
OUT
GND
CP
CY
CX
CN
CO
CQ
CR
CS
CT
CU
CV
CW
14
15
16
17
18
19
20
21
22
23
10
2
3
6
7
8
9
4
5
1
SA-PT560E/EB/EG
1/4 2/4
3/4 4/4
DVD MODULE (DV5) CIRCUIT
6.3V47
VBUS_OUT
67
243
8
1
C0DBZYY00266
IC9005
REGULATOR
OC
OUT
OUT
OUTIN
GND
IN
EN
5
11
12
13
R8318
15K
R8317 15K
D+
D-
TRV_INNER_SW
FL8101 1
1
1FL8102
C8422
HD: DVD MODULE (HDMI): SCHEMATIC DIAGRAM - 5
DV: DVD MODULE (DV5): SCHEMATIC DIAGRAM 1 - 4
SA-PT560E / SA-PT560EB / SA-PT560EG
102

Table of Contents

Related product manuals