EasyManua.ls Logo

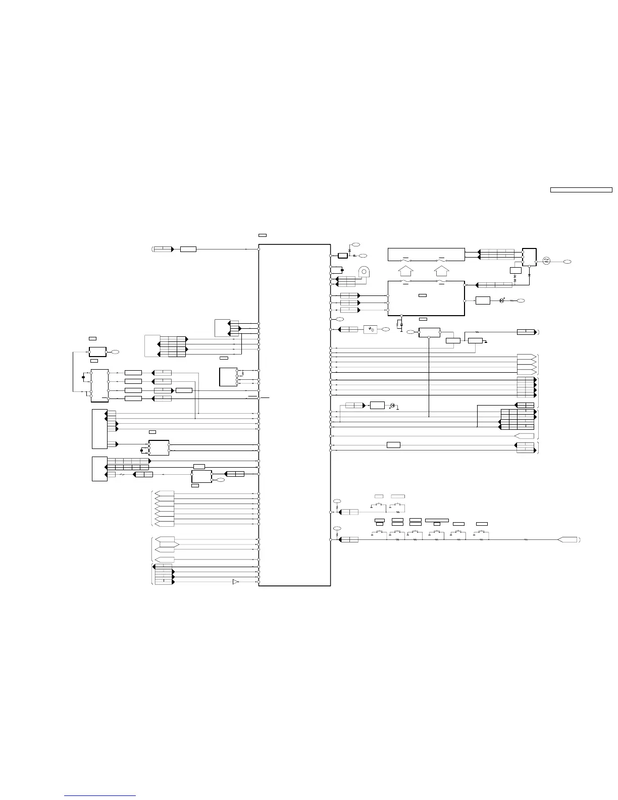
Panasonic SA-PT560E - 17 Block Diagram; System Control

Panasonic SA-PT560E
159 pages
Print Icon
To Next Page IconTo Next Page
To Next Page IconTo Next Page
To Previous Page IconTo Previous Page
To Previous Page IconTo Previous Page
Loading...
17 Block Diagram
17.1. System Control
ECK
24
EDA
23
IC2003
EEPROM
(NOT SUPPLIED)
DO
SK
DI
2
4
5
Q2006
30
DVD CMD
RDS CLK
81
RDS DAT
66
DVD CLK
28
DVD STAT
29
DVD MUTE
42
CENTER POP-UP
88
FROM/TO AUDIO
CENTER POP-UP
SENSE1
93
IPOD DET
82
BATTPCONT
79
SENSE1
VMUTE
VMUTE
TO VIDEO
FROM DVD (SERVO)
ZFLAG
CPU CLOCK
CPU STATUS
CPU CMD
FP8101
49
CN2001
FP8101
CN2001
FP8101
CN2001
RDS DETECT
CN2002
8
50
FP8101
CN2001
40
48
CN2008CN6001CN6003CN1002
11 4 425
CN6003CN1002
87
CN2008CN6001
821
CN1001
30
IPOD ACC
60
CN2008CN6001CN6003CN1002
114 1118
CN1001
13
CN1001
PSW1
DOCK 5V
DOCK 5V SW
8
TO/FROM
DVD (AUDIO)
5
CN1701 CN2014
6
CN1701 CN2014
3
CN1701 CN2014
4
CN1701 CN2014
RGB H
RGB H
70
YC H
YC H
65
WIDE 1
WIDE 1
51
46
VMUTE2
VMUTE2
35
IPOD VIDEO SEL
IPOD VIDEO SEL
VCOMP MUTE VCOMP MUTE
57
72
5.3V
5.3V
C1BB00001008
RDS DEMODULATOR
XO
XI
MUX
RDS DA
2
R CLK
16
4
X2700
13
14
C0CBCDG00003
+5V REGULATOR
VOUT
IC6602
VCC
2
CTL
1
4
C0CBCBC00140
+3.3V REGULATOR
VOUT
IC1702
VIN
15
AV MUTE
AV MUTE
80
MULTIROOM AUX MUTE
MULTIROOM MUTE
58
SYSTEM CONTROL
IC2001
RFKWPT460E
SA-PT560E/EB/EG SYSTEM CONTROL BLOCK DIAGRAM
13
15
TUN CLK
39
IPHONE CPREADY
IPHONE CPREADY
I2C SCL
I2C SDA
1
47
FP8101 CN2001
INNER SW
26
IPHONE RST
IPHONE RST
20
TUN DI
38
TUN SD
49
TUN DO
37
ECS
25
ASP CLK
47
2
TRAY CCW L
TRAY CW H
3
ASP DAT
48
SYNC
19
DC DET2
63
DC DET1
43
78
MODE DA
MUTE F SW
68
PCONT
40
MUTE C S
69
71
KEY2
91
HP MUTE
KEY1
97
HP MUTE
44
SCART MUTE
SCART MUTE
DC DET1
MUTE S
MUTE F
MOD DA
CS
FL DISPLAY
G1
P17
G9
P1
G1
P17
G9
P1
FL6801
FL DRIVER
IC6901
C0HBB0000057
FL CLK
D IN
F-1
1
RESET
I2C SDA
CP READY
I2C SCL
XOUT
XIN
1
2
4
5
3
VCC
1
VCC
40
2
ASP CLK
ASP DAT
TO AUDIO
TO DVD (SERVO)
CEC OUT
73
CEC IN
75
INVERTER
Q2096,Q2097
CEC OUT
CEC IN
87
STB
18
CLK
85
7
8
9
FLD OUT
RMT
OSC
5
30
-VP
-VP
1
LED2
REMOTE CONTROL SENSOR
Z6900
98
86
FL STB
F+1 F+
F+
F-
F-
+18V
5V
D+5V
<SW_+5V>
X IN
X OUT
X2001
D2007
X1701
TUN CLK
TUN DI
TUN SD
TUN DO
TUNER PACK
SYNC
DC DET
DC DET
PCONT
Q2900
D2903
D2908
D2909
CN2002
2
CN2002
CN2002
CN2002
3
4
6
S6807
OPEN/CLOSE
S6801
POWER
HP DETECT
FROM AUDIO
S6905
S6907S6904S6903S6902S6901
SW BOOSTSELECTORTUNE
V
FORWARD
TUNE
V
BACKWARD
STOP
-TUNE MODE/-FM MODE
PLAY
MEMORY
12 6
CN5050
CN2009
67
HOP_DA
FHOP
14 4
CN5050
CN2009
13 5
CN5050
CN2009
17 1
CN5050
CN2009
LDIN
46
FP8101
CN2001
16 2
44
CN2001
45
FP8101
CN2001
FP8101
SWITCHING
TRANSFORMER
T2900
PSAVE
CONTROL
FP2901
8
9
3
1
5
REGULATOR
C0CBCBC00140
51
3
ON/OFF
VIN VOUT
VREF
VREFVREF
VREF
VREF
CN5050CN2009
CN5802CN2004CN6001CN2008
20 109
CN5802CN2004CN6001CN2008
22 117
CN5802CN2004CN6001CN2008
24 15
CN5802CN2004CN6001CN2008
23 46
FROM/TO DIGITAL AUDIO AMP
FROM/TO POWER
FROM/TO DVD (HDMI)
12
RESET
Q2003
RESET
VREF
SYS6V
VR6901
AMBP
AMBP
53
IC2004
CN6904
9
7
8
11
10
CN2007
CN6904CN2007
CN6904CN2007
CN6904
315
CN2007
CN6904
711
CN2007
CN6801
14
CN2013
CN2007
14
CN6904 CN2016
14
CN2015
CN2007
8
CN6904 CN2016
310
CN2015
CN2007
13
CN6904 CN2016
25
CN2015
Q2001
D6821
DRIVE
LED
CN6801
14
CN2013
AC IN LED
Q6910
D6913
DRIVE
LED
Q2005
SWITCH
Q2004
SWITCH
SW BOOST LED
SYNC
Q1702
Q1704
Q2002
Q2003
LEVEL SHIFTER
LEVEL SHIFTER
LEVEL SHIFTER
Q2013
LEVEL SHIFTER
Q2030
Q2007
INVETER
RESET
VOLUME JOG
JOG A
76
JOG B
77
CN6904
CN6904
CN2007
13
CN2007
14
5
4
MFI341S2095
IPOD VIDEO
IC1701
FOR SOFTWARE
TXD
CLOCK
RXD
7
6
5
CN2006
CN2006
CN2006
DIGITAL
TRANSMITTER
15
18
16
CN6301
CN6301
CN6301
17
CN6301
4
1
3
CN6300
CN6300
CN6300
2
CN6300
11
14
12
CN2003
CN2003
CN2003
13
CN2003
IPOD
UART_TX
FX CLK
FX DET1
WM DET
MAIN SET TX (SDO)
MAIN SET RX (SDI)
SCL
FX DO
FX DI
UART_RX
31
33
34
5
7
32
IC2002
LEVEL SHIFTER
SA-PT560E / SA-PT560EB / SA-PT560EG
91

Table of Contents

Related product manuals