EasyManua.ls Logo

Philips 42PF9731D - Page 80

Philips 42PF9731D
201 pages
Print Icon
To Next Page IconTo Next Page
To Next Page IconTo Next Page
To Previous Page IconTo Previous Page
To Previous Page IconTo Previous Page
Loading...
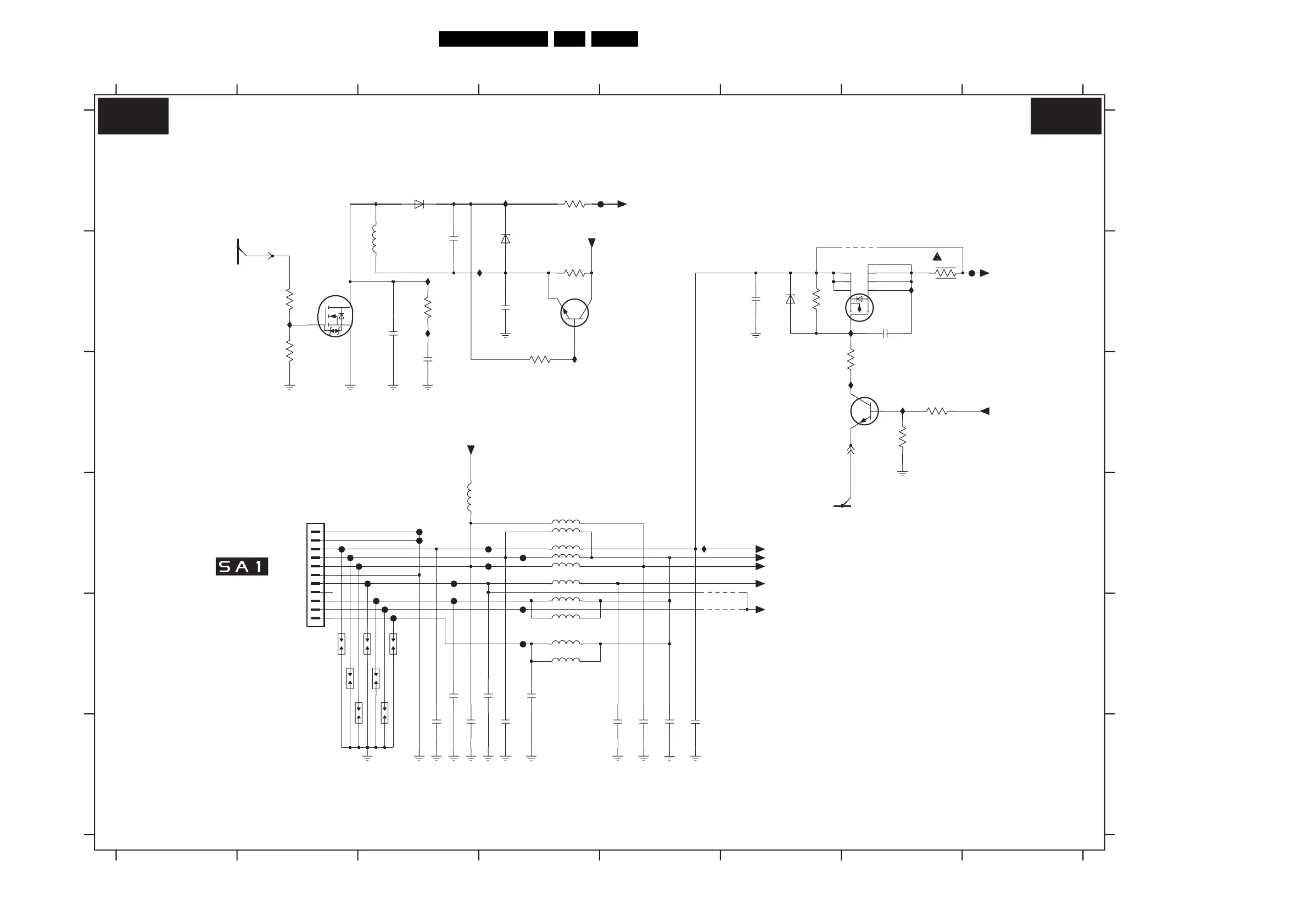
80BJ2.4U/BJ2.5U LA 7.
Circuit Diagrams and PWB Layouts
SSB: DC / DC Connections
9U11 E6
FU12 D2
AUDIO STANDBY
TO 1M46
IU39 D5
IU70 B7
FU60 D4
FU61 D4
FU63 D3
FU64 E3
+8V6 SWITCH
IU89 C6
1V0
FU62 D4
IU73 A4
IU74 B4
0V3
7U08 B7
RES
9U12 B7
FU04 D3
FU10 D3
7U26 B4
9U10 D6
FU20 B8
FU21 A5
FU24 E3
5U09 B3
IU71 B6
IU72 C7
FU65 E4
FU66 E4
IU82 B3
5U14 D3
6U00 A3
0V3
6U25 B6
3U49 C7
1U15 F2
1U16 F3
2U00 F3
2U01 E3
45
7U09 C7
7U24 B2
FU11 D3
IU75 B3
3U57 A4
3U58 B4
3U59 B2
FU17 E3
5U05 D4
5U06 D4
FU22 E3
5U08 E4
A
DC/DC CONNECTIONS
RES
2U03 E4
2U06 F5
2U07 F5
2U08 B3
5U10 D4
IU76 B2
IU77 C4
5U13 E4
1M46 D2
2U33 E4
6U01 B4
3U48 B6
1U14 E3
123
2U43 B3
2U44 C3
3U47 B7
8
A
B
C
6
67
3U50 C7
3U51 C7
345
3U60 B3
3U61 B2
FU14 D3
FU16 D3
5U04 D4
8
12
2U02 F3
B
5U07 D4
7
3UA0 C4
5U01 D4
D
E
F
2U34 B4
5U11 E4
5U12 E4
2U39 F4
2U04 F5
2U05 F5
C
1U10 E2
1U11 E3
2U35 B6
2U36 B7
D
E
F
9U10
1U12 E3
1U13 E2
VTUN GENERATOR
5U08
IU39
100n
2U07
IU71
+5V-CON
FU14
2U01
100p
1U15
IU74
FU62
2U39
100p
100n
2U36
BZX384-C27
6U01
1U16
9
5U05
1
10
11
2
3
4
5
6
7
8
1M46
B11B-PH-K
6U00
BAS316
FU63
100p
2U00
FU10
FU04
BZX384-C12
6U25
5U13
FU11
9U11
FU12
IU75
5U07
FU16
100p
2U33
9U12
BC847BW
7U26
1U12
2U35
1u0
3U60
33R
3U57
100R
5U11
FU65
2U04
100n
100p
2U02
1U11
FU60
1u0
IU70
2U34
5U06
FU22
2U08
100n
+8V6
+8V6-SW
5U04
+12VSW
3U47
1R0
7U08
SI4835BDY
3U48
100K
IU89
2U44
220p
2U43
33p
47u
5U09
BSH112
7U24
+12VS
5U10
FU66
2U03
100p
FU17
1U10
3U61
10K
3U58
2K2
3U59
1K0
5U01
3U50
47K
1U14
2U06
100n
2U05
IU72
100n
47K
BC847BW
7U09
3U51
3U49
47K
+VTUN
IU73
FU21
FU24
IU76
+5V2-STBY
+5V
FU20
+5V
5U14
3UA0
100K
IU82
FU61
FU64
1U13
IU77
5U12
ON-MODE
+5V2-STBY_9V-STBY
VSW
B1B B1B
3104 313 6145.2
G_15930_022.eps
120606

Table of Contents

Other manuals for Philips 42PF9731D

Related product manuals