EasyManua.ls Logo

Pioneer PDP-5010FD

Pioneer PDP-5010FD
187 pages
To Next Page IconTo Next Page
To Next Page IconTo Next Page
To Previous Page IconTo Previous Page
To Previous Page IconTo Previous Page
Loading...
PDP-5010FD
63
5678
56
7
8
C
D
F
A
B
E
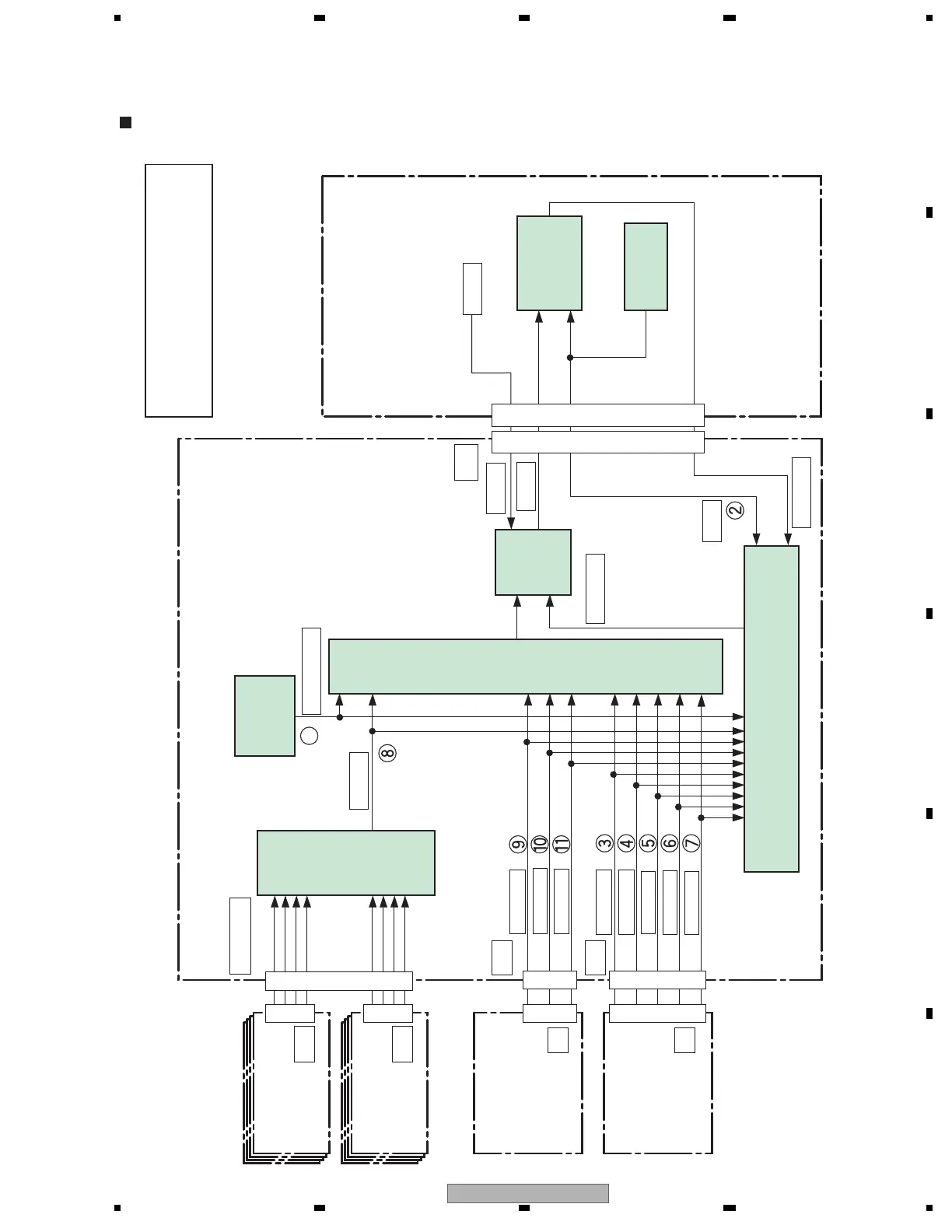
5.3 DIAGNOSIS OF PD (POWER-DOWN)
5.3.1 BLOCK DIAGRAM OF THE POWER-DOWN SIGNAL
Block Diagram of the Power-Down Signal
S
S
S
OR
ADDRESS S
ASSY
DIGITAL ASSY
POWER SUPPLY UNIT
X DRIVE
ASSY
Y DRIVE
ASSY
Relay
Control
Protection
Circuit
Module Microcomputer
PD
MUTE
Circuit
YSUS_PD
YDD_PD
YDRV_PD
SCN5V_PD
SCAN_PD
XDRV_PD
XDD_PD
XSUS_PD
ADR_PD1
DIGI_DCDC_PD
DRF_SW
DRF_SW
PD_MUTE_B
PS_PD
EXT_PD
PD_TRIG_B
D23
IC3604
12
IC3801
DCDC
Converter
IC3601
D3601
to
D3605,
D3608,
D3612
D3501
to
D3504
D13 to D20
D22
D21
Y1Y1
X1
AD1AD1
Note:
The figures to indicate the number of
times the LED flashes when power-down
occurs in the corresponding route.
OR
S
S
ADDRESS L
ASSY
AD1AD1

Table of Contents

Other manuals for Pioneer PDP-5010FD

Related product manuals