EasyManua.ls Logo

Ricoh Aficio MP 3350B - Punch Unit; Paper Position Detection

Ricoh Aficio MP 3350B
1153 pages
Print Icon
To Next Page IconTo Next Page
To Next Page IconTo Next Page
To Previous Page IconTo Previous Page
To Previous Page IconTo Previous Page
Loading...
Punch Unit
SM 57 B793
Booklet
Finisher
B793
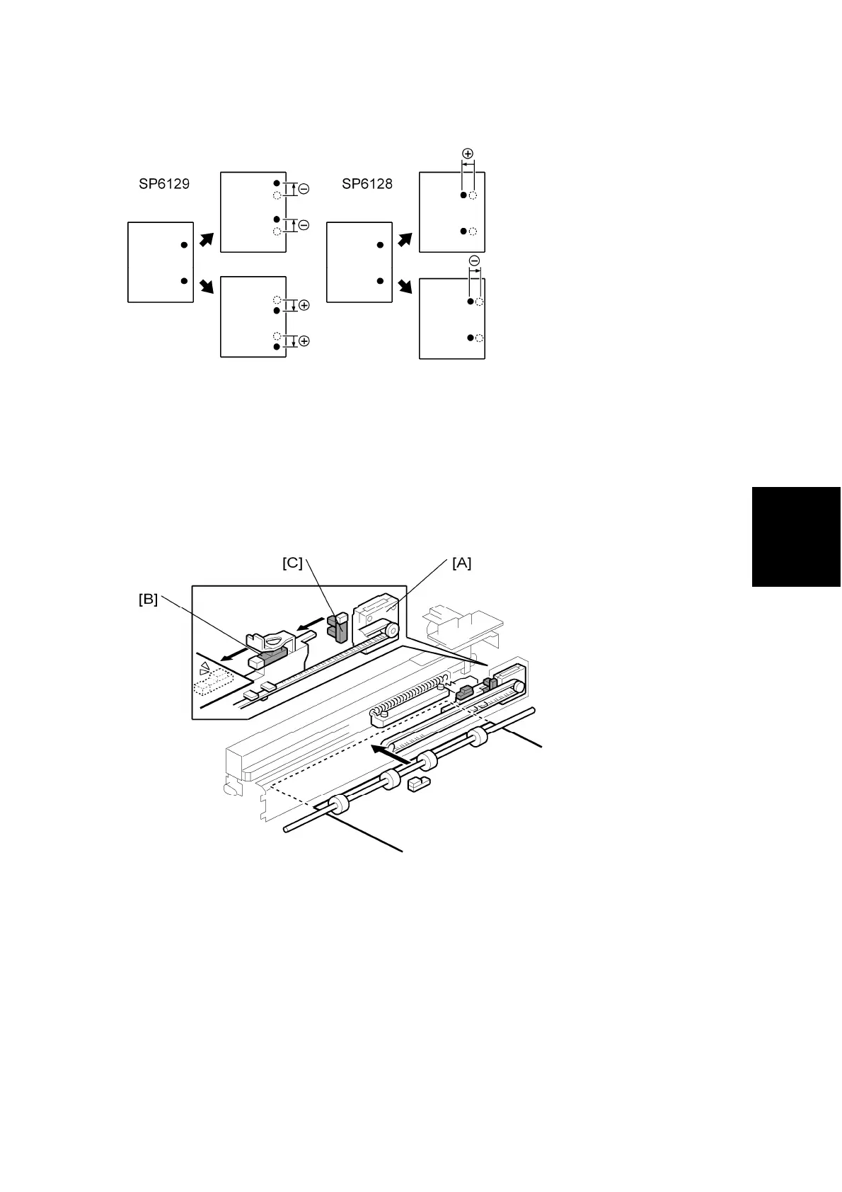
These SP codes adjust the punch hole alignment:
SP6128 Adjusts the punch positions in the direction of paper feed.
SP6129 Adjusts the punch position perpendicular to the direction of feed.
For more, see Section "5. Service Tables".
2.12.2 PAPER POSITION DETECTION
The paper position sensor slide motor [A] extends and retracts the paper position slide that
holds the paper position sensor [B].
The paper position sensor detects the position of the paper edge. The detected position of
the paper is used to move the punch unit across to the correct position for punching.
When the paper position slide is retracted, the paper position slide HP sensor [C] detects
when the slider is at home position and stops paper position slide motor.

Table of Contents

Related product manuals