EasyManua.ls Logo

Rinnai Linear Series - Troubleshooting Flame and Error Codes; Abnormal Flame Patterns and Warning Signs

Rinnai Linear Series
48 pages
To Next Page IconTo Next Page
To Next Page IconTo Next Page
To Previous Page IconTo Previous Page
To Previous Page IconTo Previous Page
Loading...
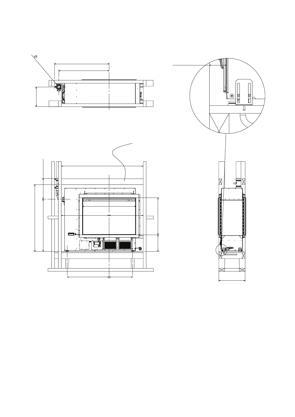
Linear installation guide 13563-B 02-19 | 13
520 Min 730 Min
1250 min.
1020 Min
~800
640 360
300 **
566 *
257 ±5 *
816 *
Recommended that lintel
is left until fire is installed
so minimum clearances
can be maintained
403
300
770
833
80**
** Maintain 25 mm clearance
to combustibles for first 300mm
of flue
39 Assumes
10 mm wallboard
* Wallboard cutout
403 mm assumes a 10 mm wallboard
on both sides of a double-sided unit.
415 mm is the min. for a single-sided
unit to maintain 50 mm clearance to
the back of the fire.
Glass centreline
All dimensions are assuming a 10 mm wallboard
Studs and joist are required directly below the support feet of the re
Framing shown is 90 x 45 mm
Fire platform shown is 18 mm plywood
Allow room underneath the appliance for the gas supply to enter the re cavity (min. 100 mm)
Linear 800 framing dimensions

Other manuals for Rinnai Linear Series

Related product manuals