EasyManua.ls Logo

Rockwell Automation ics triplex AADvance - Recommended Circuit for Analogue Outputs

Rockwell Automation ics triplex AADvance
130 pages
Print Icon
To Next Page IconTo Next Page
To Next Page IconTo Next Page
To Previous Page IconTo Previous Page
To Previous Page IconTo Previous Page
Loading...
Document: 553632
(ICSTT-RM448_EN_P) Issue: 08:
3-21
Connections to T9851/T9852 Digital Output TA
Connections to T9851/T9852 Digital Output TA Connections to T9851/T9852 Digital Output TA
Connections to T9851/T9852 Digital Output TA —
8 Channel Simplex/Dual
8 Channel Simplex/Dual8 Channel Simplex/Dual
8 Channel Simplex/Dual
Apply a minimum tightening torque of 0.5 Nm (0.37 ft lb) to the terminal screws.
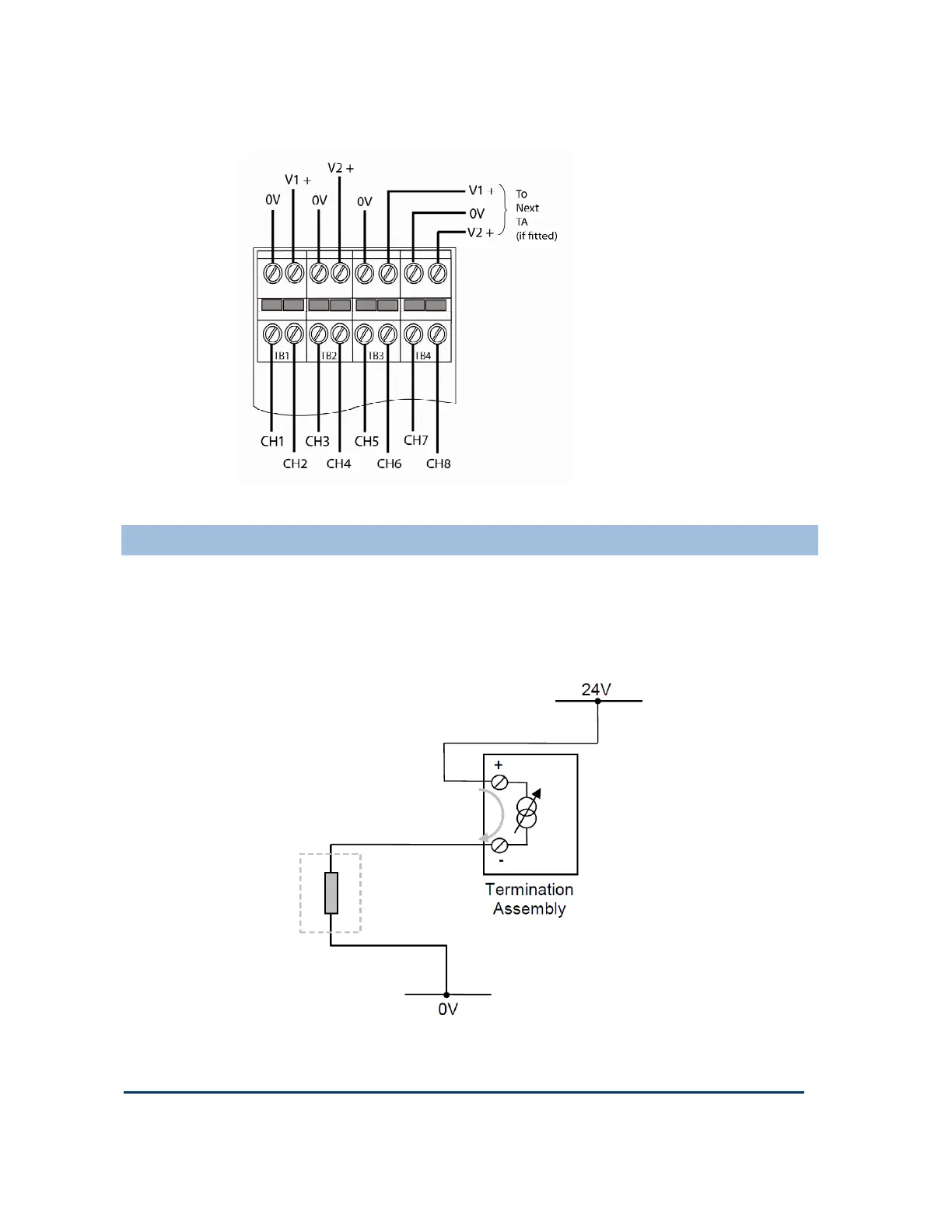
Recommended Circuit for Analogue Outputs
Recommended Circuit for Analogue OutputsRecommended Circuit for Analogue Outputs
Recommended Circuit for Analogue Outputs
These circuits are suitable for simplex and dual configurations of analogue output
modules. All channels are isolated from each other but may be bridged at the '+'
terminal if fed by a common system mounted supply.
System powered devices
System powered devicesSystem powered devices
System powered devices

Table of Contents

Related product manuals