EasyManua.ls Logo

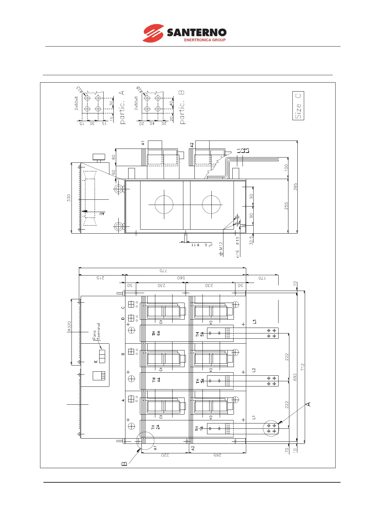
Santerno DCREG4.150 - Dcreg Modular.s Size C Power Section Overall Dimensions

Santerno DCREG4.150
200 pages
Print Icon
To Next Page IconTo Next Page
To Next Page IconTo Next Page
To Previous Page IconTo Previous Page
To Previous Page IconTo Previous Page
Loading...
15P0059B3 DCREG2
USER MANUAL DCREG4
40/200
3.10 DCREG MODULAR.S SIZE C POWER SECTION OVERALL
DIMENSIONS

Table of Contents

Related product manuals